MENU close

SEARCH

物件検索

福井市開発4丁目 A棟

啓蒙小学校まで徒歩8分。開放感と温もりを演出する、羽目板×高天井。

建築中分譲物件 SUSTAINA
  • 外観予想図(左B棟/右A棟)外観は、ブラックの外壁に木目サイディングがアクセントを添えるモダンスタイル。

    外観予想図(左B棟/右A棟)外観は、ブラックの外壁に木目サイディングがアクセントを添えるモダンスタイル。

  • 外観予想図(左B棟/右A棟)外観は、ブラックの外壁に木目サイディングがアクセントを添えるモダンスタイル。

    外観予想図(左B棟/右A棟)外観は、ブラックの外壁に木目サイディングがアクセントを添えるモダンスタイル。

  • 内観予想図①羽目板×高天井のあるリビング

    内観予想図①羽目板×高天井のあるリビング

  • 内観予想図②羽目板×高天井のあるリビング

    内観予想図②羽目板×高天井のあるリビング

  • 内観予想図③羽目板×高天井のあるリビング

    内観予想図③羽目板×高天井のあるリビング

  • 内観予想図②I字型LDKでキッチンからリビング全体を見渡せます

    内観予想図②I字型LDKでキッチンからリビング全体を見渡せます

  • 建築中写真(2026.1撮影)

    建築中写真(2026.1撮影)

  • 建築中写真(2026.1撮影)

    建築中写真(2026.1撮影)

  • 前面道路(北向き)

    前面道路(北向き)

  • 前面道路(南向き)

    前面道路(南向き)

  • 耐震等級3相当

    耐震等級3相当

  • 断熱等性能等級5

    断熱等性能等級5

  • 充実の保証内容&アフターサービス

    充実の保証内容&アフターサービス

  • 緊急駆けつけサービス

    緊急駆けつけサービス

  • 【早期成約特典】建物完成前のご成約で20万円引き!

    【早期成約特典】建物完成前のご成約で20万円引き!

  • 外観予想図(左B棟/右A棟)外観は、ブラックの外壁に木目サイディングがアクセントを添えるモダンスタイル。
  • 外観予想図(左B棟/右A棟)外観は、ブラックの外壁に木目サイディングがアクセントを添えるモダンスタイル。
  • 内観予想図①羽目板×高天井のあるリビング
  • 内観予想図②羽目板×高天井のあるリビング
  • 内観予想図③羽目板×高天井のあるリビング
  • 内観予想図②I字型LDKでキッチンからリビング全体を見渡せます
  • 建築中写真(2026.1撮影)
  • 建築中写真(2026.1撮影)
  • 前面道路(北向き)
  • 前面道路(南向き)
  • 耐震等級3相当
  • 断熱等性能等級5
  • 充実の保証内容&アフターサービス
  • 緊急駆けつけサービス
  • 【早期成約特典】建物完成前のご成約で20万円引き!

福井市開発4丁目 A棟

啓蒙小学校まで徒歩8分。開放感と温もりを演出する、羽目板×高天井。

建築中分譲物件 SUSTAINA
住所 福井市開発4丁目101番2
学区 啓蒙小学校(600m)/進明中学校(2,000m)
アクセス えちぜん鉄道勝山永平寺線 越前開発駅から950m
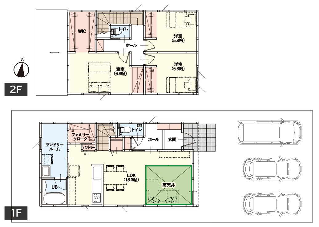
間取り 3LDK+ファミリークローク・ランドリールーム・WIC
駐車スペース 3台
販売価格 3,490万円
(月々支払い:7.8万円〜)

POINT POINTポイント

福井市開発4丁目に誕生する新築分譲住宅。
イオンスタイル福井開発(そよら福井)まで約250m、フレンドタウン福井まで約500mと、
大型商業施設をはじめにスーパーやコンビニ、ドラッグストアが近隣に充実し、買い物がしやすい住環境です。主要道路が近く、市街地へのアクセスも◎
1km圏内に小学校と保育園が位置しており、教育環境も整っていて安心です。

外観は、ブラックの外壁に木目サイディングがアクセントを添えるモダンスタイル。
18.3帖のLDKには羽目板張りの高天井を採用し、木のぬくもりを感じるおしゃれで落ち着いた空間を演出します。
水回りを集約した動線計画と、ランドリールーム・ファミリークロークを隣接させた間取りで毎日の家事もスムーズに。
パントリーやWICなど収納計画も充実しており、暮らしの快適さを支えます。

■住宅性能
 断熱性能:等級5(ZEH基準を満たす省エネ仕様)
 耐震性能:等級3相当(建築基準法の1.5倍の耐震性能)

■保証関連
 建物保証:初期20年保証+最長60年まで延長可能
 地盤保証:20年保証
 住宅設備保証:10年保証
 しろあり保証:10年保証

■キャンペーン
 エアコン付き
 早期成約特典として、本体価格20万円値引き

この物件のお支払い例

販売価格 3,490万円(税込)
月々支払 7.8万円~(税込)

※頭金なし、諸費用別、借入期間40年、2年固定金利、金利0.40%の場合

PLAN

間取図

■羽目板 × 高天井のあるリビング
 リビングの一部に羽目板張りの高天井を設けました。空間に広がりと抜け感をもたらし、木の温もりがあふれる上質な雰囲気に仕上げています。

■家事ラク動線
 物干しスペースを備えた大型ランドリールームで洗濯をスムーズに。
 さらにファミリークローク併設で、干した洗濯物をそのまま短い動線で収納することができます。水回りを一箇所に集約した間取りで、家事ラクを叶えました。

■豊富な収納スペース
 家族みんなで使いやすいファミリークロークをはじめ、パントリーや大型ウォークインクローゼット、オープンクロークなどの収納を各所に配置。
 場所に合わせた収納ができ、居住空間をすっきりと保つことができます。

EQUIPMENT

設備・仕様

  • PanasonicリビングステーションV-style

    PanasonicリビングステーションV-style

    手前スペース広々!トリプルワイドIH/タッチレス水栓/食器洗い乾燥機(深型タイプ)/お手入れ簡単!スキマレスシンク/静かに閉まるソフトクロージング仕様の収納

  • Panasonic バスルームオフローラ

    Panasonic バスルームオフローラ

    美しいツヤでキレイ長持ち「スゴピカ浴槽」/水垢が残りにくい新素材でできた「スゴピカ水栓」/W水流シャワー/フラットラインLED照明/暖房換気乾燥機

  • Panasonic 洗面ドレッシングシーライン D530タイプ

    Panasonic 洗面ドレッシングシーライン D530タイプ

    マルチシングルレバーシャワー水栓/フロートオープンタイプキャビネット/使いやすくお手入れが楽なカウンター/ヒーターレスでくもりにくいミラー/ツインラインLED3面鏡

  • PanasonicアラウーノZ160シリーズ

    PanasonicアラウーノZ160シリーズ

    アラウーノ手洗い付/自動洗浄機能/トリプル汚れガードの便器・便座/お掃除が楽なスキマレス設計/汚れにくいステンレスノズル/劇落ちスパイラル水流でキレイ

  • PanasonicトイレNewアラウーノV

    PanasonicトイレNewアラウーノV

    手洗い付き/3Dツイスター水流で節水/お手入れ簡単!スゴピカ素材

  • 高気密高断熱

    高気密高断熱

    【ウレタン吹付断熱 アクアフォーム】
    発泡することでぴったりと密着し気密性の高い施工/事故接着力により末永く断熱性能を維持/シックハウスの原因となる素材がほぼゼロ

  • 高性能樹脂窓

    高性能樹脂窓

    【YKKAP APW330】
    国内最高基準の断熱性で省エネ効果を発揮/樹脂と複層ガラスによるハイレベルな断熱性/熱の出入りを抑え、夏も冬もいつも快適

  • ピタットキー

    ピタットキー

    タグキーを近づけるだけで、サッと施開錠できるから、面倒なカギの操作を省いてスマートに出入りできます。

  • 省エネ性能ラベル

    省エネ性能ラベル

    ZEH水準の省エネ住宅はエネルギーの使用量を削減でき、日々の光熱費を抑えることができます

ACCESS

立地・アクセス

AROUND

周辺環境

  • 福井市立啓蒙保育園

    福井市立啓蒙保育園

    1000m/徒歩12分

  • 福井市啓蒙小学校

    福井市啓蒙小学校

    600m/徒歩8分

  • 福井市進明中学校

    福井市進明中学校

    2000m/徒歩24分

  • イオンスタイル福井開発

    イオンスタイル福井開発

    250m/徒歩3分

  • フレンドタウン福井

    フレンドタウン福井

    500m/徒歩8分

  • セブンイレブン福井開発3丁目店

    セブンイレブン福井開発3丁目店

    350m/徒歩1分

  • 緑ヶ丘公園

    緑ヶ丘公園

    200m/徒歩2分

  • えちぜん鉄道勝山永平寺線 越前開発駅

    えちぜん鉄道勝山永平寺線 越前開発駅

    950m/徒歩12分

  • SHOPPING買い物施設
    • イオンスタイル福井開発 …250m/徒歩3分
    • セブンイレブン福井開発3丁目店 …350m/徒歩1分
    • フレンドタウン福井 …500m/徒歩8分
    • V・drug開発店 …500m/徒歩7分
    • ヤスサキワイプラザグルメ館新保店 …1500m/車4分
  • EDUCATION教育施設
    • 福井市立啓蒙保育園 …1000m/徒歩12分
    • 育友福祉会 三心わくわく認定こども園 …1300m/徒歩17分
    • 福井市啓蒙小学校 …600m/徒歩8分
    • 福井市進明中学校 …2000m/徒歩24分
  • HOSPITAL病院
    • はまだ内科クリニック …650m/徒歩9分
    • 開発整形外科・眼科 …650m/徒歩8分
    • 松田小児科クリニック …1500m/車4分
    • 福井愛育病院 …2000m/車5分
    • 福井県立病院 …2000m/車7分
  • CONVENIENCE生活便利施設
    • 緑ヶ丘公園  …200m/徒歩2分
    • えちぜん鉄道勝山永平寺線 越前開発駅 …950m/徒歩12分
    • はなまるうどん福井開発店 …300m/徒歩4分
    • すき家416号福井開発店 …350m/徒歩5分
    • 極楽湯福井店 …900m/徒歩11分

ABOUT

物件概要

住所 福井市開発4丁目101番2
交通 えちぜん鉄道勝山永平寺線 越前開発駅から950m
販売価格 3,490万円(税込) 間取り 3LDK+ファミリークローク・ランドリールーム・WIC
土地面積 151.88㎡(45.94坪) 建物面積 99.75㎡(30.17坪)
建ぺい率 60% 容積率 200%
接道状況 東側公道【幅員】8.05m、【間口】7.50m 土地権利 所有権
都市計画 市街化区域 地目 宅地
構造・工法 木造2階建て(軸組工法) 用途地域 準工業地域
電気 北陸電力 屋根 ガルバリウム鋼板
ガス オール電化の為なし 上水道 公営水道
下水道 本下水 取引態様 売主
完成時期 令和8年3月末完成予定 入居時期 建物完成後1カ月
見学可能時期 令和8年3月末予定 建築確認番号 第R07確認建築福井住セ00443号
小学校区 啓蒙小学校(600m) 中学校区 進明中学校(2,000m)
その他 -
情報更新日 2026年02月27日 情報更新予定日 2026年03月27日
住所 福井市開発4丁目101番2
交通 えちぜん鉄道勝山永平寺線 越前開発駅から950m
販売価格 3,490万円(税込)
間取り 3LDK+ファミリークローク・ランドリールーム・WIC
土地面積 151.88㎡(45.94坪)
建物面積 99.75㎡(30.17坪)
建ぺい率 60%
容積率 200%
接道状況 東側公道【幅員】8.05m、【間口】7.50m
土地権利 所有権
都市計画 市街化区域
地目 宅地
構造・工法 木造2階建て(軸組工法)
用途地域 準工業地域
電気 北陸電力
屋根 ガルバリウム鋼板
ガス オール電化の為なし
上水道 公営水道
下水道 本下水
取引態様 売主
完成時期 令和8年3月末完成予定
入居時期 建物完成後1カ月
見学可能
時期
令和8年3月末予定
建築
確認番号
第R07確認建築福井住セ00443号
小学校区 啓蒙小学校(600m)
中学校区 進明中学校(2,000m)
その他 -
情報
更新日
2026年02月27日
情報更新
予定日
2026年03月27日

同じエリアの他物件もCHECK! 同じエリアの他物件も
CHECK!

この物件を見学予約する

お問い合わせフォーム

CONTACT

下記フォームをご入力いただき、
確認するボタンを押してください。

  • 入力

  • 確認

  • 完了

お問い合わせ内容必須
お名前必須
ふりがな必須
ご年齢必須
電話番号必須

※携帯またはご自宅どちらでもかまいません。

メールアドレス必須

※必ず半角英数字でご入力ください。

ご住所必須
来場人数必須

お子様がいらっしゃる
場合、人数と年齢を
教えてください任意
リビングスペースを
どこで知りましたか?必須
来場内容
(ご質問・ご相談等)任意
個人情報について必須

·自動返信メールの後、担当者からのご予約対応のご返信を以って受付完了とさせていただきます。また、弊社定休日や担当者がお休みをいただいている場合は翌営業日以降のご連絡となる場合がございます。
·メールアドレスを登録された方には、自動で確認メールを送信しております。メールアドレスの誤入力、携帯電話のドメイン指定受信の設定などにより確認メールを受信出来ない場合がございます。迷惑メールなどに入っている場合もございますので、再度受信設定をご確認ください。確認メールが届かない場合は、当社からの返信を受信出来ない可能性がございますので、お手数ですが、メール以外の連絡方法を追記の上、再度お問い合わせいただきますようお願い致します。

入力内容を確認する