MENU close

SEARCH

物件検索

福井市開発4丁目 B棟

爽やかな朝日が差し込む吹抜けリビング。子育て世帯にうれしい立地で、心地よい日常を。

建築中分譲物件 SUSTAINA
  • 東側吹抜けから朝日が差し込む、明るく開放感のあるLDK。

    東側吹抜けから朝日が差し込む、明るく開放感のあるLDK。

  • リビングの一部にはエコカラットウォールを採用。優れた調湿・脱臭機能で室内の空気環境を整え、快適で上質な住空間を実現します。

    リビングの一部にはエコカラットウォールを採用。優れた調湿・脱臭機能で室内の空気環境を整え、快適で上質な住空間を実現します。

  • 明るいグレーをベースに整えられたシンプルモダンな空間。

    明るいグレーをベースに整えられたシンプルモダンな空間。

  • 18.7帖のLDK。吹抜けにより、帖数以上の広がりと開放感を感じられます。

    18.7帖のLDK。吹抜けにより、帖数以上の広がりと開放感を感じられます。

  • シンプルにまとめられた内装に、上質なエコカラットが映える空間です。

    シンプルにまとめられた内装に、上質なエコカラットが映える空間です。

  • キッチン横には便利なパントリーを配置。さらに奥にはサニタリーへアクセスできる動線で、毎日の家事がスムーズに。

    キッチン横には便利なパントリーを配置。さらに奥にはサニタリーへアクセスできる動線で、毎日の家事がスムーズに。

  • おしゃれなペンダント照明が空間にアクセントを添えてくれます。

    おしゃれなペンダント照明が空間にアクセントを添えてくれます。

  • 物干しスペース、独立洗面台、収納を備えたゆとりあるサニタリールーム。ガス衣類乾燥機「乾太くん」設置予定です♪

    物干しスペース、独立洗面台、収納を備えたゆとりあるサニタリールーム。ガス衣類乾燥機「乾太くん」設置予定です♪

  • キッチン→洗面→廊下→リビング をぐるっと回れる回遊動線を実現。

    キッチン→洗面→廊下→リビング をぐるっと回れる回遊動線を実現。

  • 落ち着いた雰囲気の主寝室。

    落ち着いた雰囲気の主寝室。

  • 主寝室には広々としたWICを備えており、家族みんなの衣類のほかにも嵩張るスーツケースやシーズンオフの布団などまで仕舞うことができます。

    主寝室には広々としたWICを備えており、家族みんなの衣類のほかにも嵩張るスーツケースやシーズンオフの布団などまで仕舞うことができます。

  • 主寝室のほかに、洋室を二部屋設けています。

    主寝室のほかに、洋室を二部屋設けています。

  • 建築中写真(B棟:左)2026.4撮影

    建築中写真(B棟:左)2026.4撮影

  • 建築中写真(B棟:左)2026.4撮影

    建築中写真(B棟:左)2026.4撮影

  • 前面道路(北向き)

    前面道路(北向き)

  • 断熱等性能等級5

    断熱等性能等級5

  • 耐震等級3相当

    耐震等級3相当

  • 充実の保証内容&アフターサービス

    充実の保証内容&アフターサービス

  • 緊急駆けつけサービス

    緊急駆けつけサービス

  • 【ご成約特典】ReFa FINE BUBBLE U+をプレゼント!

    【ご成約特典】ReFa FINE BUBBLE U+をプレゼント!

  • 東側吹抜けから朝日が差し込む、明るく開放感のあるLDK。
  • リビングの一部にはエコカラットウォールを採用。優れた調湿・脱臭機能で室内の空気環境を整え、快適で上質な住空間を実現します。
  • 明るいグレーをベースに整えられたシンプルモダンな空間。
  • 18.7帖のLDK。吹抜けにより、帖数以上の広がりと開放感を感じられます。
  • シンプルにまとめられた内装に、上質なエコカラットが映える空間です。
  • キッチン横には便利なパントリーを配置。さらに奥にはサニタリーへアクセスできる動線で、毎日の家事がスムーズに。
  • おしゃれなペンダント照明が空間にアクセントを添えてくれます。
  • 物干しスペース、独立洗面台、収納を備えたゆとりあるサニタリールーム。ガス衣類乾燥機「乾太くん」設置予定です♪
  • キッチン→洗面→廊下→リビング をぐるっと回れる回遊動線を実現。
  • 落ち着いた雰囲気の主寝室。
  • 主寝室には広々としたWICを備えており、家族みんなの衣類のほかにも嵩張るスーツケースやシーズンオフの布団などまで仕舞うことができます。
  • 主寝室のほかに、洋室を二部屋設けています。
  • 建築中写真(B棟:左)2026.4撮影
  • 建築中写真(B棟:左)2026.4撮影
  • 前面道路(北向き)
  • 断熱等性能等級5
  • 耐震等級3相当
  • 充実の保証内容&アフターサービス
  • 緊急駆けつけサービス
  • 【ご成約特典】ReFa FINE BUBBLE U+をプレゼント!

福井市開発4丁目 B棟

爽やかな朝日が差し込む吹抜けリビング。子育て世帯にうれしい立地で、心地よい日常を。

建築中分譲物件 SUSTAINA
住所 福井市開発4丁目101番1
学区 啓蒙小学校(600m)/進明中学校(2000m)
アクセス えちぜん鉄道勝山永平寺線 越前開発駅から950m
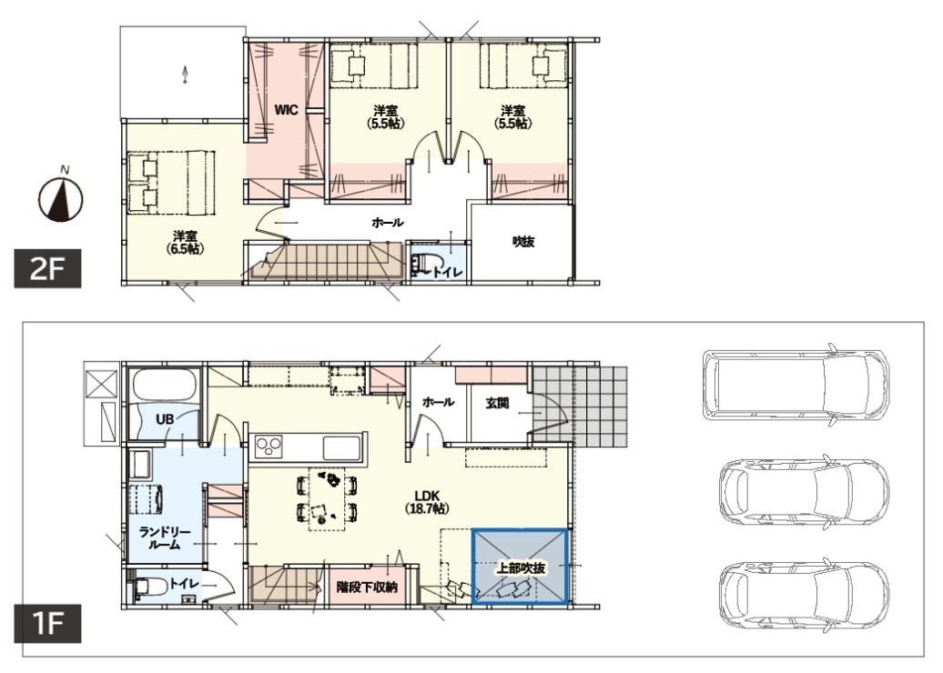
間取り 3LDK+吹抜け・パントリー・ランドリールーム・WIC
駐車スペース 3台
販売価格 3,490万円
(月々支払い:7.8万円〜)

POINT POINTポイント

福井市開発4丁目に新たに誕生する新築分譲住宅。
イオンスタイル福井開発(そよら福井)まで約250m、フレンドタウン福井まで約500mと、買い物施設が近隣に充実。
主要道路へのアクセスも良好で、市街地への移動もスムーズです。
さらに、1km圏内には小学校や保育園が位置しており、子育てや教育環境も整っているため、安心して暮らせる住環境となっています。

天然杉板と石目調サイディングが絶妙に調和し、街並みに映えるナチュラルモダンな外観デザイン。
東側に面して吹抜けを設けることで、窓から朝日がたっぷりと差し込みLDK全体を明るく爽やかに照らします。
家事楽ランドリールームにはガス衣類乾燥機「乾太くん」設置で、毎日の家事をサポート。洗濯物干しの負担が一気に軽減されます。
ウォークインクローゼットオープンクローク、階段下収納などの大型収納も充実し、暮らしやすさを高めます。

■住宅性能
 断熱性能:等級5(ZEH基準を満たす省エネ仕様)
 耐震性能:等級3相当(建築基準法の1.5倍の耐震性能)

■保証関連
 建物保証:初期20年保証+最長60年まで延長可能
 地盤保証:20年保証
 住宅設備保証:10年保証
 しろあり保証:10年保証


■キャンペーン
 ガス衣類乾燥機「乾太くん」付き
 エアコン付き
 ReFa FINE BUBBLE U+ をプレゼント

この物件のお支払い例

販売価格 3,490万円(税込)
月々支払 7.8万円~(税込)

※頭金なし、諸費用別、借入期間40年、2年固定金利、金利0.40%の場合

PLAN

間取図

■リビング吹抜け
 東側に面して吹抜けを配置することで、窓から陽光を採り込み明るい空間に。
 抜け感・開放感とともに、空間のアクセントとしても魅力的です。

■エコカラット
 リビングの一部にエコカラットを採用。デザイン性に優れ、調湿機能で快適な湿度を保ち、においや有害物質も低減します。光の加減で表情を変えるタイルの質感が、落ち着きと高級感を演出し、家族の時間を豊かに彩ります。

■ガス衣類乾燥機「乾太くん」
 ガス衣類乾燥機として人気の「乾太くん」を設置しました。
 ガスを使うことで、短時間で効率的に衣類を乾かすことができる点が特徴です。大容量の衣類や厚手の衣類もしっかり乾かすことができ、特に大量の洗濯物を一度に乾かしたい場合にとても便利です。

VR

バーチャル見学

EQUIPMENT

設備・仕様

  • PanasonicリビングステーションV-style

    PanasonicリビングステーションV-style

    手前スペース広々!トリプルワイドIH/タッチレス水栓/食器洗い乾燥機(深型タイプ)/お手入れ簡単!スキマレスシンク/静かに閉まるソフトクロージング仕様の収納

  • Panasonic バスルームオフローラ

    Panasonic バスルームオフローラ

    美しいツヤでキレイ長持ち「スゴピカ浴槽」/水垢が残りにくい新素材でできた「スゴピカ水栓」/W水流シャワー/フラットラインLED照明/暖房換気乾燥機

  • Panasonic 洗面ドレッシングシーライン D530タイプ

    Panasonic 洗面ドレッシングシーライン D530タイプ

    マルチシングルレバーシャワー水栓/フロートオープンタイプキャビネット/使いやすくお手入れが楽なカウンター/ヒーターレスでくもりにくいミラー/ツインラインLED3面鏡

  • PanasonicアラウーノZ160シリーズ

    PanasonicアラウーノZ160シリーズ

    アラウーノ手洗い付/自動洗浄機能/トリプル汚れガードの便器・便座/お掃除が楽なスキマレス設計/汚れにくいステンレスノズル/劇落ちスパイラル水流でキレイ

  • PanasonicトイレNewアラウーノV

    PanasonicトイレNewアラウーノV

    手洗い付き/3Dツイスター水流で節水/お手入れ簡単!スゴピカ素材

  • ガス衣類乾燥機「乾太くん」

    ガス衣類乾燥機「乾太くん」

    大容量の洗濯物をスピード乾燥/パワフル恩風で生乾き臭やウイルスを除去/シンプルで使いやすい操作部

  • 高気密高断熱

    高気密高断熱

    【ウレタン吹付断熱 アクアフォーム】
    発泡することでぴったりと密着し気密性の高い施工/事故接着力により末永く断熱性能を維持/シックハウスの原因となる素材がほぼゼロ

  • ピタットキー

    ピタットキー

    タグキーを近づけるだけで、サッと施開錠できるから、面倒なカギの操作を省いてスマートに出入りできます。

  • 高性能樹脂窓

    高性能樹脂窓

    【YKKAP APW330】
    国内最高基準の断熱性で省エネ効果を発揮/樹脂と複層ガラスによるハイレベルな断熱性/熱の出入りを抑え、夏も冬もいつも快適

  • 省エネ性能ラベル

    省エネ性能ラベル

    ZEH水準の省エネ住宅はエネルギーの使用量を削減でき、日々の光熱費を抑えることができます

ACCESS

立地・アクセス

AROUND

周辺環境

  • 福井市立啓蒙保育園

    福井市立啓蒙保育園

    1000m/徒歩12分

  • 福井市啓蒙小学校

    福井市啓蒙小学校

    600m/徒歩8分

  • 福井市進明中学校

    福井市進明中学校

    2000m/徒歩24分

  • イオンスタイル福井開発

    イオンスタイル福井開発

    250m/徒歩3分

  • フレンドタウン福井

    フレンドタウン福井

    500m/徒歩8分

  • セブンイレブン福井開発3丁目店

    セブンイレブン福井開発3丁目店

    350m/徒歩5分

  • 緑ヶ丘公園

    緑ヶ丘公園

    200m/徒歩2分

  • えちぜん鉄道勝山永平寺線 越前開発駅

    えちぜん鉄道勝山永平寺線 越前開発駅

    950m/徒歩12分

  • SHOPPING買い物施設
    • イオンスタイル福井開発 …250m/徒歩3分
    • セブンイレブン福井開発3丁目店 …350m/徒歩1分
    • フレンドタウン福井 …500m/徒歩8分
    • V・drug開発店 …500m/徒歩7分
    • ヤスサキワイプラザグルメ館新保店 …1500m/車4分
  • EDUCATION教育施設
    • 福井市立啓蒙保育園 …1000m/徒歩12分
    • 育友福祉会 三心わくわく認定こども園 …1300m/徒歩17分
    • 福井市啓蒙小学校 …600m/徒歩8分
    • 福井市進明中学校 …2000m/徒歩24分
  • HOSPITAL病院
    • はまだ内科クリニック …650m/徒歩9分
    • 開発整形外科・眼科 …650m/徒歩8分
    • 松田小児科クリニック …1500m/車4分
    • 福井愛育病院 …2000m/車5分
    • 福井県立病院 …2000m/車7分
  • CONVENIENCE生活便利施設
    • 緑ヶ丘公園 …200m/徒歩2分
    • えちぜん鉄道勝山永平寺線 越前開発駅 …950m/徒歩12分
    • はなまるうどん福井開発店 …300m/徒歩4分
    • すき家416号福井開発店 …350m/徒歩5分
    • 極楽湯福井店 …900m/徒歩11分

ABOUT

物件概要

住所 福井市開発4丁目101番1
交通 えちぜん鉄道勝山永平寺線 越前開発駅から950m
販売価格 3,490万円(税込) 間取り 3LDK+吹抜け・パントリー・ランドリールーム・WIC
土地面積 151.88㎡(45.94坪) 建物面積 99.75㎡(30.17坪)
建ぺい率 60% 容積率 200%
接道状況 東側公道【幅員】8.05m、【間口】7.50m 土地権利 所有権
都市計画 市街化区域 地目 宅地
構造・工法 木造2階建て(軸組工法) 用途地域 準工業地域
電気 北陸電力 屋根 ガルバリウム鋼板
ガス プロパンガス 上水道 公営水道
下水道 本下水 取引態様 売主
完成時期 令和8年3月末完成予定 入居時期 建物完成後1カ月
見学可能時期 令和8年3月予定 建築確認番号 第R07確認建築福井住セ00444号
小学校区 啓蒙小学校(600m) 中学校区 進明中学校(2000m)
その他 -
情報更新日 2026年04月22日 情報更新予定日 2026年05月22日
住所 福井市開発4丁目101番1
交通 えちぜん鉄道勝山永平寺線 越前開発駅から950m
販売価格 3,490万円(税込)
間取り 3LDK+吹抜け・パントリー・ランドリールーム・WIC
土地面積 151.88㎡(45.94坪)
建物面積 99.75㎡(30.17坪)
建ぺい率 60%
容積率 200%
接道状況 東側公道【幅員】8.05m、【間口】7.50m
土地権利 所有権
都市計画 市街化区域
地目 宅地
構造・工法 木造2階建て(軸組工法)
用途地域 準工業地域
電気 北陸電力
屋根 ガルバリウム鋼板
ガス プロパンガス
上水道 公営水道
下水道 本下水
取引態様 売主
完成時期 令和8年3月末完成予定
入居時期 建物完成後1カ月
見学可能
時期
令和8年3月予定
建築
確認番号
第R07確認建築福井住セ00444号
小学校区 啓蒙小学校(600m)
中学校区 進明中学校(2000m)
その他 -
情報
更新日
2026年04月22日
情報更新
予定日
2026年05月22日

同じエリアの他物件もCHECK! 同じエリアの他物件も
CHECK!

この物件を見学予約する

お問い合わせフォーム

CONTACT

下記フォームをご入力いただき、
確認するボタンを押してください。

  • 入力

  • 確認

  • 完了

お問い合わせ内容必須
お名前必須
ふりがな必須
ご年齢必須
電話番号必須

※携帯またはご自宅どちらでもかまいません。

メールアドレス必須

※必ず半角英数字でご入力ください。

ご住所必須
来場人数必須

お子様がいらっしゃる
場合、人数と年齢を
教えてください任意
リビングスペースを
どこで知りましたか?必須
来場内容
(ご質問・ご相談等)任意
個人情報について必須

·自動返信メールの後、担当者からのご予約対応のご返信を以って受付完了とさせていただきます。また、弊社定休日や担当者がお休みをいただいている場合は翌営業日以降のご連絡となる場合がございます。
·メールアドレスを登録された方には、自動で確認メールを送信しております。メールアドレスの誤入力、携帯電話のドメイン指定受信の設定などにより確認メールを受信出来ない場合がございます。迷惑メールなどに入っている場合もございますので、再度受信設定をご確認ください。確認メールが届かない場合は、当社からの返信を受信出来ない可能性がございますので、お手数ですが、メール以外の連絡方法を追記の上、再度お問い合わせいただきますようお願い致します。

入力内容を確認する