MENU close

SEARCH

物件検索

福井市北四ツ居町A棟

円山小学校まで約170m。親子の安心とゆとりを育む、洗練されたアーバンモダンの家。

建築中分譲物件 SUSTAINA
  • 【完成予想図】木目のサイディングがアクセントになった、モダンな外観デザイン。※外構・植栽はイメージです。

    【完成予想図】木目のサイディングがアクセントになった、モダンな外観デザイン。※外構・植栽はイメージです。

  • 【完成予想図】モノトーンを基調とした配色で、都会的で洗練された、シンプルかつ高級感のあるアーバンモダンテイストの内装です。

    【完成予想図】モノトーンを基調とした配色で、都会的で洗練された、シンプルかつ高級感のあるアーバンモダンテイストの内装です。

  • 【完成予想図】リビングの一部に高天井を設けることで、開放感と抜け感のある空間になっています。

    【完成予想図】リビングの一部に高天井を設けることで、開放感と抜け感のある空間になっています。

  • 【完成予想図】テレビ背面には、空間全体の印象を引き締めるアクセントウォールとしてエコカラットを採用しました。機能性・デザイン性に優れています。

    【完成予想図】テレビ背面には、空間全体の印象を引き締めるアクセントウォールとしてエコカラットを採用しました。機能性・デザイン性に優れています。

  • 【完成予想図】ホテルのラウンジのような洗練された雰囲気で、日々の暮らしに大人の落ち着いた時間を演出します。

    【完成予想図】ホテルのラウンジのような洗練された雰囲気で、日々の暮らしに大人の落ち着いた時間を演出します。

  • 現地写真(2026.4撮影)

    現地写真(2026.4撮影)

  • 前面道路含む現地写真(2026.4撮影)

    前面道路含む現地写真(2026.4撮影)

  • 前面道路含む現地写真(2026.4撮影)

    前面道路含む現地写真(2026.4撮影)

  • 現地写真(2026.4撮影)

    現地写真(2026.4撮影)

  • みらいエコ住宅2026事業 補助金対象です!

    みらいエコ住宅2026事業 補助金対象です!

  • 耐震等級3相当

    耐震等級3相当

  • 断熱等性能等級5

    断熱等性能等級5

  • 充実の保証内容&アフターサービス

    充実の保証内容&アフターサービス

  • 緊急駆けつけサービス

    緊急駆けつけサービス

  • 【早期ご成約特典】建物完成前のご成約で、ReFa ULTRA FINE BUBBLE SUIGEN をお付けいたします。

    【早期ご成約特典】建物完成前のご成約で、ReFa ULTRA FINE BUBBLE SUIGEN をお付けいたします。

  • 【完成予想図】木目のサイディングがアクセントになった、モダンな外観デザイン。※外構・植栽はイメージです。
  • 【完成予想図】モノトーンを基調とした配色で、都会的で洗練された、シンプルかつ高級感のあるアーバンモダンテイストの内装です。
  • 【完成予想図】リビングの一部に高天井を設けることで、開放感と抜け感のある空間になっています。
  • 【完成予想図】テレビ背面には、空間全体の印象を引き締めるアクセントウォールとしてエコカラットを採用しました。機能性・デザイン性に優れています。
  • 【完成予想図】ホテルのラウンジのような洗練された雰囲気で、日々の暮らしに大人の落ち着いた時間を演出します。
  • 現地写真(2026.4撮影)
  • 前面道路含む現地写真(2026.4撮影)
  • 前面道路含む現地写真(2026.4撮影)
  • 現地写真(2026.4撮影)
  • みらいエコ住宅2026事業 補助金対象です!
  • 耐震等級3相当
  • 断熱等性能等級5
  • 充実の保証内容&アフターサービス
  • 緊急駆けつけサービス
  • 【早期ご成約特典】建物完成前のご成約で、ReFa ULTRA FINE BUBBLE SUIGEN をお付けいたします。

福井市北四ツ居町A棟

円山小学校まで約170m。親子の安心とゆとりを育む、洗練されたアーバンモダンの家。

建築中分譲物件 SUSTAINA
住所 福井市北四ツ居町30-110
学区 円山小学校(170m)/大東中学校(1300m)
アクセス えちぜん鉄道勝山永平寺線 越前開発駅から1400m
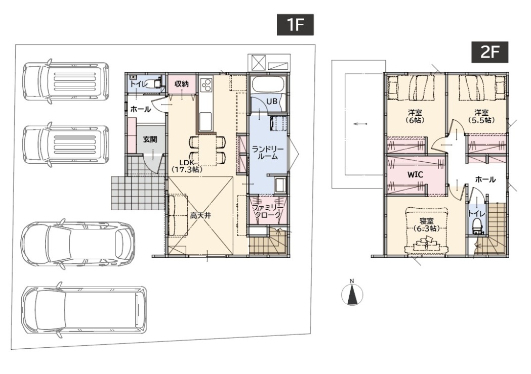
間取り 3LDK+ランドリールーム・ファミリークローク・WIC
駐車スペース 4台
販売価格 3,390万円

POINT POINTポイント

小学校が約170m、こども園が約800mの子育て世帯に安心の環境。閑静な住宅街である福井市北四ツ居町に、新築建売住宅が誕生します。
保育・教育環境だけでなく、日常に便利なスーパー・ドラッグストア・コンビニなどの買い物施設や、飲食店、医療施設も充実した利便性の高い立地です。
国道8号線へのアクセスも良好で、毎日の通勤やお出かけもスムーズ◎

アースカラーの外観は、落ち着いた色合いで周囲の環境に溶け込みながらも、さりげない個性が光るデザイン。
LDKには、天井高を活かした伸びやかな空間美が、ただの開放感だけではなく、光の広がり・空気のゆとりを演出します。
浴室・ランドリー・洗面・ファミクロが一直線に配置された間取りは、子育て世代の家事時短を叶える、理想的な設計。毎日の家事負担を軽減します。
さらに駐車は3台以上確保。ご家族分+来客用として、駐車場の悩みを解消します。

■住宅性能
 断熱性能:等級5(ZEH基準を満たす省エネ仕様)
 耐震性能:等級3相当(建築基準法の1.5倍の耐震性能)

■保証関連
 建物保証:初期20年保証+最長60年まで延長可能
 地盤保証:20年保証
 住宅設備保証:10年保証
 しろあり保証:10年保証

■補助金関連
 国の「みらいエコ住宅2026事業」により最大35万円の補助金利用可(ZEH水準住宅)

■キャンペーン
 エアコン付き
 早期成約特典 ReFa ULTRA FINE BUBBLE SUIGEN

PLAN

間取図

■ リビング高天井
リビングの一部に高天井を設けることで、開放感あふれる空間を創出しました。一般的な天井高よりも高く設計されたこの空間は、縦方向への広がりと心地よい抜け感をもたらし、圧迫感を軽減しています。

■ リビングを格上げするエコカラット
テレビ背面には、空間全体の印象を引き締めるアクセントウォールとしてエコカラットを採用しました。デザイン性に優れているのはもちろん、調湿機能や脱臭効果、さらに有害物質低減機能まで備えており、機能性も抜群です。

■ アーバンモダンな内装
モノトーンを基調とした配色で、都会的で洗練された、シンプルかつ高級感のあるアーバンモダンテイストの内装に仕上げました。ホテルのラウンジのような洗練された雰囲気で、日々の暮らしに大人の落ち着いた時間を演出します。

■ 家事ラク動線
物干しスペースを備えた大型ランドリールームで洗濯をスムーズに。浴室・ランドリールーム・ファミリークロークを一直線上に配置することで、干した洗濯物を短い動線で収納することができます。水回りを一箇所に集約した間取りで、家事ラク動線を叶えました。

EQUIPMENT

設備・仕様

  • PanasonicリビングステーションV-style

    PanasonicリビングステーションV-style

    手前スペース広々!トリプルワイドIH/タッチレス水栓/食器洗い乾燥機(深型タイプ)/お手入れ簡単!スキマレスシンク/静かに閉まるソフトクロージング仕様の収納

  • Panasonic バスルームオフローラ

    Panasonic バスルームオフローラ

    美しいツヤでキレイ長持ち「スゴピカ浴槽」/水垢が残りにくい新素材でできた「スゴピカ水栓」/W水流シャワー/フラットラインLED照明/暖房換気乾燥機

  • PanasonicアラウーノZ160シリーズ

    PanasonicアラウーノZ160シリーズ

    アラウーノ手洗い付/自動洗浄機能/トリプル汚れガードの便器・便座/お掃除が楽なスキマレス設計/汚れにくいステンレスノズル/劇落ちスパイラル水流でキレイ

  • PanasonicトイレNewアラウーノV

    PanasonicトイレNewアラウーノV

    手洗い付き/3Dツイスター水流で節水/お手入れ簡単!スゴピカ素材

  • Panasonic 洗面ドレッシングシーライン D530タイプ

    Panasonic 洗面ドレッシングシーライン D530タイプ

    マルチシングルレバーシャワー水栓/フロートオープンタイプキャビネット/使いやすくお手入れが楽なカウンター/ヒーターレスでくもりにくいミラー/ツインラインLED3面鏡

  • ピタットキー

    ピタットキー

    タグキーを近づけるだけで、サッと施開錠。面倒なカギの操作を省いてスマートに出入りできます。

  • 高性能樹脂窓 APW330

    高性能樹脂窓 APW330

    国内最高基準の断熱性で省エネ効果を発揮/樹脂と複層ガラスによるハイレベルな断熱性/熱の出入りを抑え、夏も冬もいつも快適

  • ウレタンの吹き付け断熱

    ウレタンの吹き付け断熱

    断熱性能の高さはもちろん、発泡することにより現場の形状にぴったりと密着し気密性が高く、自己接着力により断熱性能を維持します

  • 省エネ性能ラベル

    省エネ性能ラベル

    ZEH水準の省エネ住宅はエネルギーの使用量を削減でき、日々の光熱費を抑えることができます。

ACCESS

立地・アクセス

AROUND

周辺環境

  • 三心えんざん認定こども園

    三心えんざん認定こども園

    800m/徒歩10分

  • 福井市円山小学校

    福井市円山小学校

    170m/徒歩3分

  • 福井市大東中学校

    福井市大東中学校

    1300m/徒歩14分

  • ファミリーマート福井北四ツ居店

    ファミリーマート福井北四ツ居店

    300m/徒歩4分

  • バロー米松 

    バロー米松 

    1000m/徒歩12分

  • 福井北四ツ居郵便局

    福井北四ツ居郵便局

    250m/徒歩4分

  • 福井福井県立病院

    福井福井県立病院

    1000m/徒歩15分

  • 丸山公園

    丸山公園

    10m/徒歩1分

  • SHOPPING買い物施設
    • ファミリーマート福井北四ツ居店 …300m/徒歩4分
    • バロー米松店 …1000m/徒歩15分
    • ウエルシア福井北四ツ居店 …900m/徒歩12分
    • ハニー食彩館四ツ居店 …1200m/徒歩15分
    • マクドナルド8号線福井店 …750m/徒歩9分
  • EDUCATION教育施設
    • 三心えんざん認定こども園 …800m/徒歩10分
    • 町屋福祉会 認定こども園木の実 …650m/徒歩9分
    • 福井市円山小学校 …170m/徒歩2分
    • 福井市大東中学校 …1300m/徒歩14分
    • 福井自動車学校 …1100m/徒歩11分
  • HOSPITAL病院
    • 平谷こども発達クリニック …300m/徒歩5分
    • すすき耳鼻咽喉科 …650m/徒歩9分
    • 三船内科クリニック …650m/徒歩9分
    • 福井県立病院 …1000m/徒歩15分
  • CONVENIENCE生活便利施設
    • 福井北四ツ居郵便局 …250m/徒歩4分
    • そらとあお …210m/徒歩3分
    • JA福井県 喜ね舎愛菜館 …1100m/車3分
    • 丸山公園 …10m/徒歩1分
    • 越前信用金庫 福井支店 …850m/徒歩12分

ABOUT

物件概要

住所 福井市北四ツ居町30-110
交通 えちぜん鉄道勝山永平寺線 越前開発駅から1400m
販売価格 3,390万円(税込) 間取り 3LDK+ランドリールーム・ファミリークローク・WIC
土地面積 178.76㎡(54.07坪) 建物面積 96.05㎡(29.05坪)
建ぺい率 60% 容積率 200%
接道状況 【西側】道路幅員5.9m、接面13.67m 土地権利 所有権
都市計画 市街化区域 地目 宅地
構造・工法 木造2階建て(軸組工法) 用途地域 第1種中高層住居専用地域
電気 北陸電力 屋根 ガルバリウム鋼板
ガス オール電化の為なし 上水道 公営水道
下水道 本下水 取引態様 売主
完成時期 令和8年6月完成予定 入居時期 建物完成後1カ月
見学可能時期 令和8年6月予定 建築確認番号 第R07確認建築福井住セ00571号
小学校区 円山小学校(170m) 中学校区 大東中学校(1300m)
その他 本物件の内覧予約や住宅ローン・資金計画のご相談はもちろん、新築住宅購入に関するご質問や補助金制度についてもご相談を承っております。住まい探しを始めたばかりの方にも分かりやすくご案内いたしますので、どうぞ安心してお気軽にお問い合わせください。
情報更新日 2026年04月22日 情報更新予定日 2026年05月22日
住所 福井市北四ツ居町30-110
交通 えちぜん鉄道勝山永平寺線 越前開発駅から1400m
販売価格 3,390万円(税込)
間取り 3LDK+ランドリールーム・ファミリークローク・WIC
土地面積 178.76㎡(54.07坪)
建物面積 96.05㎡(29.05坪)
建ぺい率 60%
容積率 200%
接道状況 【西側】道路幅員5.9m、接面13.67m
土地権利 所有権
都市計画 市街化区域
地目 宅地
構造・工法 木造2階建て(軸組工法)
用途地域 第1種中高層住居専用地域
電気 北陸電力
屋根 ガルバリウム鋼板
ガス オール電化の為なし
上水道 公営水道
下水道 本下水
取引態様 売主
完成時期 令和8年6月完成予定
入居時期 建物完成後1カ月
見学可能
時期
令和8年6月予定
建築
確認番号
第R07確認建築福井住セ00571号
小学校区 円山小学校(170m)
中学校区 大東中学校(1300m)
その他 本物件の内覧予約や住宅ローン・資金計画のご相談はもちろん、新築住宅購入に関するご質問や補助金制度についてもご相談を承っております。住まい探しを始めたばかりの方にも分かりやすくご案内いたしますので、どうぞ安心してお気軽にお問い合わせください。
情報
更新日
2026年04月22日
情報更新
予定日
2026年05月22日

同じエリアの他物件もCHECK! 同じエリアの他物件も
CHECK!

この物件を見学予約する

お問い合わせフォーム

CONTACT

下記フォームをご入力いただき、
確認するボタンを押してください。

  • 入力

  • 確認

  • 完了

お問い合わせ内容必須
お名前必須
ふりがな必須
ご年齢必須
電話番号必須

※携帯またはご自宅どちらでもかまいません。

メールアドレス必須

※必ず半角英数字でご入力ください。

ご住所必須
来場人数必須

お子様がいらっしゃる
場合、人数と年齢を
教えてください任意
リビングスペースを
どこで知りましたか?必須
来場内容
(ご質問・ご相談等)任意
個人情報について必須

·自動返信メールの後、担当者からのご予約対応のご返信を以って受付完了とさせていただきます。また、弊社定休日や担当者がお休みをいただいている場合は翌営業日以降のご連絡となる場合がございます。
·メールアドレスを登録された方には、自動で確認メールを送信しております。メールアドレスの誤入力、携帯電話のドメイン指定受信の設定などにより確認メールを受信出来ない場合がございます。迷惑メールなどに入っている場合もございますので、再度受信設定をご確認ください。確認メールが届かない場合は、当社からの返信を受信出来ない可能性がございますので、お手数ですが、メール以外の連絡方法を追記の上、再度お問い合わせいただきますようお願い致します。

入力内容を確認する