MENU close

SEARCH

物件検索

福井市新田塚2丁目B棟

南向きの開放感に包まれて。広々間口と駅近の立地が、ゆとりを創る家。

建築中分譲物件 SUSTAINA
  • 【完成予想図】外観は、ブラックを基調に石目調サイディングと木目が映えるスタイリッシュモダンスタイル。

    【完成予想図】外観は、ブラックを基調に石目調サイディングと木目が映えるスタイリッシュモダンスタイル。

  • 【完成予想図】外観・内観ともにスタイリッシュデザインで統一。ブラックが空間を引き締めます。

    【完成予想図】外観・内観ともにスタイリッシュデザインで統一。ブラックが空間を引き締めます。

  • 【完成予想図】南向きの吹抜けから陽光を採り込み、明るく開放感のある17.1帖のLDK。

    【完成予想図】南向きの吹抜けから陽光を採り込み、明るく開放感のある17.1帖のLDK。

  • 【完成予想図】リビングの主役となるテレビ背面には、エコカラットウォールを採用♪LDK全体が洗練された印象になります。

    【完成予想図】リビングの主役となるテレビ背面には、エコカラットウォールを採用♪LDK全体が洗練された印象になります。

  • 【完成予想図】家族の食卓を華やかに彩る、おしゃれなペンダントライト。

    【完成予想図】家族の食卓を華やかに彩る、おしゃれなペンダントライト。

  • B棟建築中写真(2026.5)

    B棟建築中写真(2026.5)

  • B棟建築中写真(2026.5)

    B棟建築中写真(2026.5)

  • B棟建築中写真(2026.5)

    B棟建築中写真(2026.5)

  • 断熱等性能等級5

    断熱等性能等級5

  • みらいエコ住宅2026事業 補助金対象!(ZEH水準住宅)

    みらいエコ住宅2026事業 補助金対象!(ZEH水準住宅)

  • 耐震等級3相当

    耐震等級3相当

  • 充実の保証内容&アフターサービス

    充実の保証内容&アフターサービス

  • 緊急駆けつけサービス

    緊急駆けつけサービス

  • 【早期ご契約特典】建物完成前のご成約で、ReFa ULTRA FINE BUBBLE SUIGEN をお付けします。

    【早期ご契約特典】建物完成前のご成約で、ReFa ULTRA FINE BUBBLE SUIGEN をお付けします。

  • 【完成予想図】外観は、ブラックを基調に石目調サイディングと木目が映えるスタイリッシュモダンスタイル。
  • 【完成予想図】外観・内観ともにスタイリッシュデザインで統一。ブラックが空間を引き締めます。
  • 【完成予想図】南向きの吹抜けから陽光を採り込み、明るく開放感のある17.1帖のLDK。
  • 【完成予想図】リビングの主役となるテレビ背面には、エコカラットウォールを採用♪LDK全体が洗練された印象になります。
  • 【完成予想図】家族の食卓を華やかに彩る、おしゃれなペンダントライト。
  • B棟建築中写真(2026.5)
  • B棟建築中写真(2026.5)
  • B棟建築中写真(2026.5)
  • 断熱等性能等級5
  • みらいエコ住宅2026事業 補助金対象!(ZEH水準住宅)
  • 耐震等級3相当
  • 充実の保証内容&アフターサービス
  • 緊急駆けつけサービス
  • 【早期ご契約特典】建物完成前のご成約で、ReFa ULTRA FINE BUBBLE SUIGEN をお付けします。

福井市新田塚2丁目B棟

南向きの開放感に包まれて。広々間口と駅近の立地が、ゆとりを創る家。

建築中分譲物件 SUSTAINA
住所 福井市新田塚2丁目5025番地2
学区 明新小学校(850m)・附属小学校(950m)/藤島中学校(1000m)
アクセス えちぜん鉄道三国芦原線 新田塚駅から160m
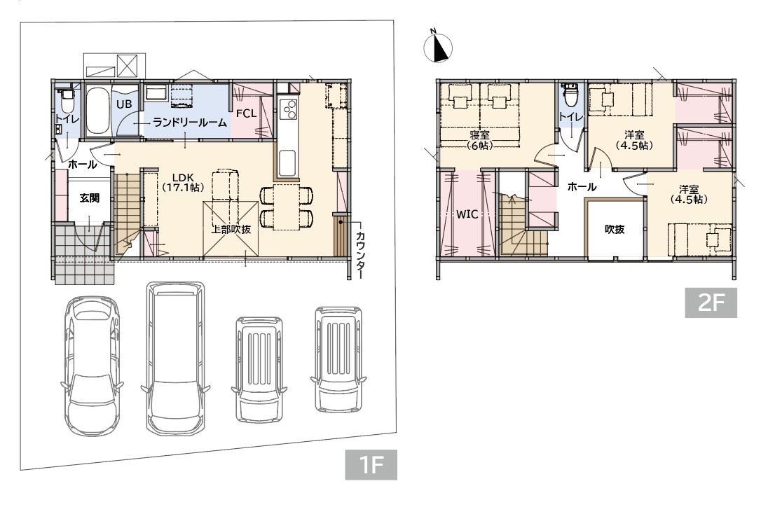
間取り 3LDK+ランドリールーム・ファミリクローク・WIC
駐車スペース 4台(車種によっては4台駐車できない場合があります)
販売価格 2,990万円
(月々支払い:6.7万円〜)

POINT POINTポイント

福井市新田塚2丁目の落ち着いた住宅街に、新しく分譲住宅が誕生。
新田塚駅が約160mと交通利便性が高く、さらに芦原街道や明里橋通りへのアクセスも良好で通勤・通学も◎
新田塚こども園まで270m、明新小学校まで850mと、保育・教育施設が近くに揃っており、子育て世帯にも安心の環境です。
そのほか近隣にはスーパーやコンビニ、飲食店、医療機関などの生活施設が揃う、利便性の高い立地です。

外観は、ブラックを基調に石目調サイディングと木目が映える外観で、洗練された雰囲気を。
LDKは南向きの吹抜けから陽光を採り込み、明るく開放感のある空間に。
一角に設けたリビングカウンターは、PC作業やお子様の宿題スペース等マルチな活用が可能です。
家事動線は収納力を備えたランドリールームで洗濯から片付けまでをスムーズに。
さらに随所に収納を配置し、2階ホール収納など使いやすさにも配慮しました。

利便も、開放感も、使い心地も。すべてを叶えたこの場所で、新しい暮らしを始めませんか。

■住宅性能
 断熱性能:等級5(ZEH基準を満たす省エネ仕様)
 耐震性能:等級3相当(建築基準法の1.5倍の耐震性能)

■保証関連
 建物保証:初期20年保証+最長60年まで延長可能
 地盤保証:20年保証
 住宅設備保証:10年保証
 しろあり保証:10年保証

■補助金関連
 国の「みらいエコ住宅2026事業」により最大35万円の補助金利用可(ZEH水準住宅)

■キャンペーン
 エアコン付き
 早期成約特典 ReFa ULTRA FINE BUBBLE SUIGEN

この物件のお支払い例

販売価格 2,990万円(税込)
月々支払 6.7万円~(税込)

※※頭金なし、諸費用別、借入期間40年、2年固定金利、金利0.40%の場合

PLAN

間取図

■ 空気も整う、エコカラット
リビングの主役となるテレビ台背面にはエコカラットを採用。LDK全体にメリハリが生まれ、洗練された印象になります。クロスや照明との相性も良く、映画鑑賞や家族の団らんを、より上質な空気とデザインで包み込みます。

■ リビングカウンター
家事をしながらでも目が届きやすい位置にカウンターデスクを配置しました。適度に家族とコミュニケーションを取りながらも集中しやすい環境で、お子様の宿題や読書、デスクワークなど、マルチに活用することができます。

■ ランドリールーム+ファミリクローク
天候や時間帯を気にせずにいつでも洗濯物を干すことができる、洗面脱衣室兼ランドリールーム。クロークを併設することで、干した洗濯物を掛けたまま収納することができ、毎日の家事がスムーズに。家事動線が短縮される間取りは、共働き世帯にも嬉しい設計です。

EQUIPMENT

設備・仕様

  • PanasonicリビングステーションV-style

    PanasonicリビングステーションV-style

    手前スペース広々!トリプルワイドIH/タッチレス水栓/食器洗い乾燥機(深型タイプ)/お手入れ簡単!スキマレスシンク/静かに閉まるソフトクロージング仕様の収納

  • Panasonic バスルームオフローラ

    Panasonic バスルームオフローラ

    美しいツヤでキレイ長持ち「スゴピカ浴槽」/水垢が残りにくい新素材でできた「スゴピカ水栓」/W水流シャワー/フラットラインLED照明/暖房換気乾燥機

  • Panasonic 洗面ドレッシングシーライン D530タイプ

    Panasonic 洗面ドレッシングシーライン D530タイプ

    マルチシングルレバーシャワー水栓/フロートオープンタイプキャビネット/使いやすくお手入れが楽なカウンター/ヒーターレスでくもりにくいミラー/ツインラインLED3面鏡

  • PanasonicアラウーノZ160シリーズ

    PanasonicアラウーノZ160シリーズ

    アラウーノ手洗い付/自動洗浄機能/トリプル汚れガードの便器・便座/お掃除が楽なスキマレス設計/汚れにくいステンレスノズル/劇落ちスパイラル水流でキレイ

  • PanasonicトイレNewアラウーノV

    PanasonicトイレNewアラウーノV

    手洗い付き/3Dツイスター水流で節水/お手入れ簡単!スゴピカ素材

  • 高性能樹脂窓 APW330

    高性能樹脂窓 APW330

    国内最高基準の断熱性で省エネ効果を発揮/樹脂と複層ガラスによるハイレベルな断熱性/熱の出入りを抑え、夏も冬もいつも快適

  • ピタットキー

    ピタットキー

    タグキーを近づけるだけで、サッと施開錠できるから、面倒なカギの操作を省いてスマートに出入りできます。

  • ウレタンの吹き付け断熱

    ウレタンの吹き付け断熱

    断熱性能の高さはもちろん、発泡することにより現場の形状にぴったりと密着し気密性が高く、自己接着力により断熱性能を維持します。

  • 省エネ性能ラベル

    省エネ性能ラベル

    ZEH水準の省エネ住宅はエネルギーの使用量を削減でき、日々の光熱費を抑えることができます。

ACCESS

立地・アクセス

AROUND

周辺環境

  • 新田塚こども園 

    新田塚こども園 

    270m(徒歩4分)

  • 明新小学校

    明新小学校

    850m(徒歩12分)

  • 藤島中学校

    藤島中学校

    1000m(徒歩14分)

  • セブンイレブン福井灯明寺1丁目店 

    セブンイレブン福井灯明寺1丁目店 

    650m(徒歩9分)

  • クスリのアオキ新田塚店 

    クスリのアオキ新田塚店 

    450m(徒歩6分)

  • スーパーマーケットバロー新田塚 

    スーパーマーケットバロー新田塚 

    650m(徒歩9分)

  • 福井総合クリニック

    福井総合クリニック

    240m(徒歩3分)

  • えちぜん鉄道三国芦原線-新田塚駅 

    えちぜん鉄道三国芦原線-新田塚駅 

    160m(徒歩2分)

  • SHOPPING買い物施設
    • スーパーマーケットバロー新田塚 …650m/徒歩9分
    • セブンイレブン福井灯明寺1丁目店 …650m/徒歩9分
    • ゲンキー福井新田塚店 …700m/徒歩10分
    • クスリのアオキ新田塚店 …450m/徒歩6分
    • スーパーカボスプラスゲオ二の宮本店 …650m/徒歩9分
  • EDUCATION教育施設
    • 白寿院 新田塚こども園 …270m/徒歩4分
    • 新田塚幼稚園 …600m/徒歩8分
    • 明新小学校 …850m/徒歩12分
    • 明道中学校 …1200m/徒歩17分
    • 福井大学付属小中学校 …950m/徒歩13分
  • HOSPITAL病院
    • 福井総合クリニック …240m/徒歩3分
    • むらきた内科 …600m/徒歩8分
    • たかしま皮膚科クリニック …1500m/車6分
    • すなが耳鼻咽喉科 …1400m/車5分
  • CONVENIENCE生活便利施設
    • えちぜん鉄道三国芦原線 新田塚駅 …160m/徒歩2分
    • 新田塚ふれあい公園 …200m/徒歩3分
    • 福井新田塚郵便局 …600m/徒歩8分
    • マクドナルド福井新田塚店 …650m/徒歩9分
    • 福邦銀行 新田塚中央支店 …650m/徒歩9分

ABOUT

物件概要

住所 福井市新田塚2丁目5025番地2
交通 えちぜん鉄道三国芦原線 新田塚駅から160m
販売価格 2,990万円(税込) 間取り 3LDK+ランドリールーム・ファミリクローク・WIC
土地面積 152.17㎡(46.03坪) 建物面積 94.09㎡(28.46坪)
建ぺい率 60% 容積率 100%
接道状況 【南側】幅員4.67m、接面11.60m 土地権利 所有権
都市計画 市街化区域 地目 宅地
構造・工法 木造2階建て(軸組工法) 用途地域 第1種低層住居専用地域
電気 北陸電力 屋根 ガルバリウム鋼板
ガス オール電化の為なし 上水道 公営水道
下水道 本下水 取引態様 売主
完成時期 令和8年7月末完成予定 入居時期 建物完成後1カ月
見学可能時期 令和8年7月末 予定 建築確認番号 第R06確認建築福井住セ00655号
小学校区 明新小学校(850m)・附属小学校(950m) 中学校区 藤島中学校(1000m)
その他 -
情報更新日 2026年05月18日 情報更新予定日 2026年06月18日
住所 福井市新田塚2丁目5025番地2
交通 えちぜん鉄道三国芦原線 新田塚駅から160m
販売価格 2,990万円(税込)
間取り 3LDK+ランドリールーム・ファミリクローク・WIC
土地面積 152.17㎡(46.03坪)
建物面積 94.09㎡(28.46坪)
建ぺい率 60%
容積率 100%
接道状況 【南側】幅員4.67m、接面11.60m
土地権利 所有権
都市計画 市街化区域
地目 宅地
構造・工法 木造2階建て(軸組工法)
用途地域 第1種低層住居専用地域
電気 北陸電力
屋根 ガルバリウム鋼板
ガス オール電化の為なし
上水道 公営水道
下水道 本下水
取引態様 売主
完成時期 令和8年7月末完成予定
入居時期 建物完成後1カ月
見学可能
時期
令和8年7月末 予定
建築
確認番号
第R06確認建築福井住セ00655号
小学校区 明新小学校(850m)・附属小学校(950m)
中学校区 藤島中学校(1000m)
その他 -
情報
更新日
2026年05月18日
情報更新
予定日
2026年06月18日

同じエリアの他物件もCHECK! 同じエリアの他物件も
CHECK!

この物件を見学予約する

お問い合わせフォーム

CONTACT

下記フォームをご入力いただき、
確認するボタンを押してください。

  • 入力

  • 確認

  • 完了

お問い合わせ内容必須
お名前必須
ふりがな必須
ご年齢必須
電話番号必須

※携帯またはご自宅どちらでもかまいません。

メールアドレス必須

※必ず半角英数字でご入力ください。

ご住所必須
来場人数必須

お子様がいらっしゃる
場合、人数と年齢を
教えてください任意
リビングスペースを
どこで知りましたか?必須
来場内容
(ご質問・ご相談等)任意
個人情報について必須

·自動返信メールの後、担当者からのご予約対応のご返信を以って受付完了とさせていただきます。また、弊社定休日や担当者がお休みをいただいている場合は翌営業日以降のご連絡となる場合がございます。
·メールアドレスを登録された方には、自動で確認メールを送信しております。メールアドレスの誤入力、携帯電話のドメイン指定受信の設定などにより確認メールを受信出来ない場合がございます。迷惑メールなどに入っている場合もございますので、再度受信設定をご確認ください。確認メールが届かない場合は、当社からの返信を受信出来ない可能性がございますので、お手数ですが、メール以外の連絡方法を追記の上、再度お問い合わせいただきますようお願い致します。

入力内容を確認する