MENU close

SEARCH

物件検索

福井市和田中2丁目 B棟

高天井の抜け×エコカラットの表情。19.2帖が“空気まで澄む”くつろぎを描く。

建築中分譲物件 SUSTAINA
  • TV背面にはエコカラットを採用。質感と調湿性により、上質で心地よいリビング時間を演出します。

    TV背面にはエコカラットを採用。質感と調湿性により、上質で心地よいリビング時間を演出します。

  • 高天井がもたらす伸びやかな開放感が魅力の、19.2帖のLDK。

    高天井がもたらす伸びやかな開放感が魅力の、19.2帖のLDK。

  • エコカラットや高天井が調和する、スタイリッシュな内装。モダンで落ち着きのある空間に仕上げました。

    エコカラットや高天井が調和する、スタイリッシュな内装。モダンで落ち着きのある空間に仕上げました。

  • キッチンからリビング全体を見渡せる安心設計。お料理中も、お子様の様子を常に見守れます。

    キッチンからリビング全体を見渡せる安心設計。お料理中も、お子様の様子を常に見守れます。

  • 高い調湿・脱臭機能による「1年中快適な空気環境」と、意匠性の高いデザインが叶える「おしゃれで上質な空間」を両立するエコカラット。

    高い調湿・脱臭機能による「1年中快適な空気環境」と、意匠性の高いデザインが叶える「おしゃれで上質な空間」を両立するエコカラット。

  • 高天井による高天井が叶える、圧倒的な開放感。日常の中に伸びやかな広がりをもたらします。

    高天井による高天井が叶える、圧倒的な開放感。日常の中に伸びやかな広がりをもたらします。

  • 豊富な可動棚の収納スペース。リビングでよく使うアイテムをすっきり整理するのに便利です。

    豊富な可動棚の収納スペース。リビングでよく使うアイテムをすっきり整理するのに便利です。

  • LDKからランドリールームへの動線に収納を配置。

    LDKからランドリールームへの動線に収納を配置。

  • LDKからランドリールームへの動線に収納を配置。家族みんなで使いやすいファミリークロークです。

    LDKからランドリールームへの動線に収納を配置。家族みんなで使いやすいファミリークロークです。

  • 2階主寝室にはWICを完備しています。

    2階主寝室にはWICを完備しています。

  • オープンクローク付きの洋室1(5.3帖)

    オープンクローク付きの洋室1(5.3帖)

  • オープンクローク付きの洋室2(5.3帖)

    オープンクローク付きの洋室2(5.3帖)

  • 建築中写真(2026.4月撮影)

    建築中写真(2026.4月撮影)

  • B棟右(2026.4月撮影)

    B棟右(2026.4月撮影)

  • B棟左:東側より撮影(2026.4月撮影)

    B棟左:東側より撮影(2026.4月撮影)

  • 断熱性能:等級5(ZEH基準を満たす省エネ仕様)

    断熱性能:等級5(ZEH基準を満たす省エネ仕様)

  • 耐震性能:等級3相当(建築基準法の1.5倍の耐震性能)

    耐震性能:等級3相当(建築基準法の1.5倍の耐震性能)

  • 充実の保証内容&アフターサービス

    充実の保証内容&アフターサービス

  • 緊急駆けつけサービス

    緊急駆けつけサービス

  • 【ご成約特典】ReFa FINE BUBBLE U+をプレゼント!

    【ご成約特典】ReFa FINE BUBBLE U+をプレゼント!

  • TV背面にはエコカラットを採用。質感と調湿性により、上質で心地よいリビング時間を演出します。
  • 高天井がもたらす伸びやかな開放感が魅力の、19.2帖のLDK。
  • エコカラットや高天井が調和する、スタイリッシュな内装。モダンで落ち着きのある空間に仕上げました。
  • キッチンからリビング全体を見渡せる安心設計。お料理中も、お子様の様子を常に見守れます。
  • 高い調湿・脱臭機能による「1年中快適な空気環境」と、意匠性の高いデザインが叶える「おしゃれで上質な空間」を両立するエコカラット。
  • 高天井による高天井が叶える、圧倒的な開放感。日常の中に伸びやかな広がりをもたらします。
  • 豊富な可動棚の収納スペース。リビングでよく使うアイテムをすっきり整理するのに便利です。
  • LDKからランドリールームへの動線に収納を配置。
  • LDKからランドリールームへの動線に収納を配置。家族みんなで使いやすいファミリークロークです。
  • 2階主寝室にはWICを完備しています。
  • オープンクローク付きの洋室1(5.3帖)
  • オープンクローク付きの洋室2(5.3帖)
  • 建築中写真(2026.4月撮影)
  • B棟右(2026.4月撮影)
  • B棟左:東側より撮影(2026.4月撮影)
  • 断熱性能:等級5(ZEH基準を満たす省エネ仕様)
  • 耐震性能:等級3相当(建築基準法の1.5倍の耐震性能)
  • 充実の保証内容&アフターサービス
  • 緊急駆けつけサービス
  • 【ご成約特典】ReFa FINE BUBBLE U+をプレゼント!

福井市和田中2丁目 B棟

高天井の抜け×エコカラットの表情。19.2帖が“空気まで澄む”くつろぎを描く。

建築中分譲物件 SUSTAINA
住所 福井市和田中2丁目2601番2
学区 和田小学校(1,100m)/成和中学校(2,300m)
アクセス JR福井駅から3400m
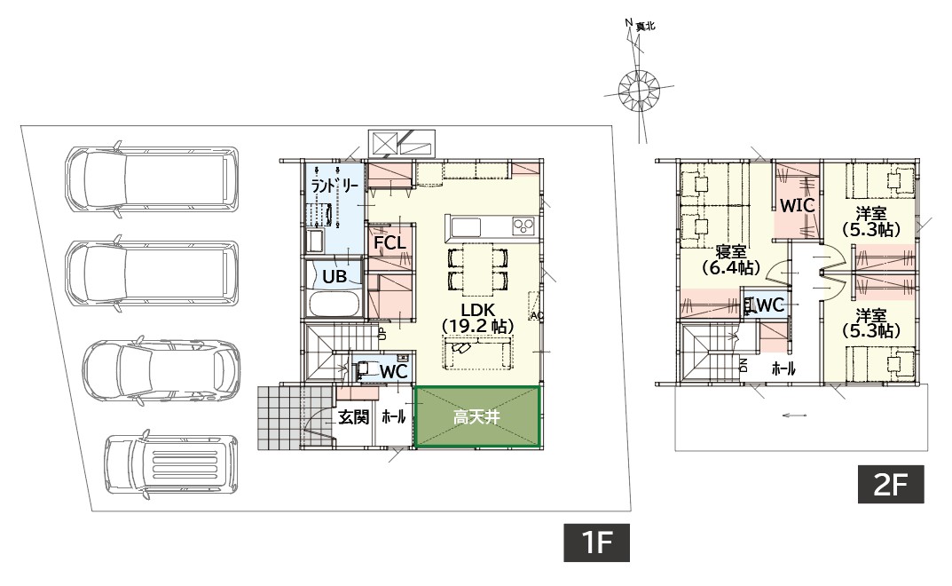
間取り 3LDK+パントリー・ファミリークローク・ランドリールーム・ウォークインクローゼット
駐車スペース 3台以上
販売価格 3,290万円
(月々支払い:7.4万円〜)

POINT POINTポイント

福井市和田中2丁目に誕生する新しい住まい。
閑静な住宅地でありながら、国道8号線・158号線や福井ICへ軽快にアクセスでき、通勤も週末の移動もスムーズです。
学区は和田小学校。近隣にスーパーやドラッグストア、総合病院がそろい、日々の暮らしに安心が広がります。

外観デザインは、陰影の出るタイル風サイディングの表情と、フラットデザインパネルの直線美が調和。
間取りは3LDK。19.2帖のLDKは高天井がもたらす伸びやかな開放感が魅力で、TV背面にはエコカラットを採用。質感と調湿性により、上質で心地よいリビング時間を演出します。
水回りを1か所に集約し、パントリーとファミリークロークを動線上に併設。料理・洗濯・片付けが“行き止まりなく”つながる家事動線は、忙しい日常を軽やかに支えます。
必要な場所に必要な収納があることで、片付けの手間が減り、居室の広さをそのまま体感できます。日々の送り迎えや週末の買い出し、来客の多い日も動線にも余裕が生まれます。
敷地内は4台以上の駐車に対応しており、2台並列+来客用など柔軟な使い分けが可能。
閑静な街並みと利便性のバランスに優れた立地と、暮らしに寄り添う設計で、家時間がいっそう豊かになる住まいです。

■住宅性能
 断熱性能:等級5(ZEH基準を満たす省エネ仕様)
 耐震性能:等級3相当(建築基準法の1.5倍の耐震性能)

■保証関連
 建物保証:初期20年保証+最長60年まで延長可能
 地盤保証:20年保証
 住宅設備保証:10年保証
 しろあり保証:10年保証

■キャンペーン
 家具・エアコン付き
 ReFa FINE BUBBLE U+ をプレゼント

この物件のお支払い例

販売価格 3,290万円(税込)
月々支払 7.4万円~(税込)

※頭金なし、諸費用別、借入期間40年、2年固定金利、金利0.40%の場合

PLAN

間取図

■リビング高天井
LDKを一部高天井にすることで、リビングとキッチン&ダイニングを緩やかにゾーニング。空間にアクセントと開放感を添えてくれます。

■エコカラット
リビングの一部にエコカラットを採用。デザイン性に優れているのはもちろん、快適な湿度に保とうとする調湿機能を持ち、気になるにおいや有害な物質も低減してくれます。光の加減で表情を変えるタイルの質感が、落ち着きと高級感を演出し、家族の時間をより豊かに彩ります。

■豊富なリビング収納
ファミリークロークやパントリーのほかにも、LDKには豊富な収納スペースを設計。小物や書籍・雑誌、子供やペットのおもちゃなど、あらゆるアイテムをすっきりと片付けられます。

VR

バーチャル見学

EQUIPMENT

設備・仕様

  • PanasonicリビングステーションV-style

    PanasonicリビングステーションV-style

    ・手前スペース広々!トリプルワイドIH
    ・タッチレス水栓
    ・食器洗い乾燥機(深型タイプ)
    ・お手入れ簡単!スキマレスシンク
    ・静かに閉まるソフトクロージング仕様の収納

  • Panasonic バスルームオフローラ

    Panasonic バスルームオフローラ

    ・美しいツヤでキレイ長持ち「スゴピカ浴槽」
    ・水垢が残りにくい新素材でできた「スゴピカ水栓」
    ・W水流シャワー
    ・フラットラインLED照明
    ・暖房換気乾燥機

  • PanasonicアラウーノZ160シリーズ

    PanasonicアラウーノZ160シリーズ

    ・アラウーノ手洗い付
    ・自動洗浄機能
    ・トリプル汚れガードの便器・便座
    ・お掃除が楽なスキマレス設計
    ・汚れにくいステンレスノズル
    ・劇落ちスパイラル水流でキレイ

  • PanasonicトイレNewアラウーノV

    PanasonicトイレNewアラウーノV

    ・手洗い付き
    ・3Dツイスター水流で節水
    ・お手入れ簡単!スゴピカ素材

  • Panasonic 洗面ドレッシングシーライン D530タイプ

    Panasonic 洗面ドレッシングシーライン D530タイプ

    ・マルチシングルレバーシャワー水栓
    ・フロートオープンタイプキャビネット
    ・使いやすくお手入れが楽なカウンター
    ・ヒーターレスでくもりにくいミラー
    ・ツインラインLED3面鏡

  • 高性能樹脂窓 APW330

    高性能樹脂窓 APW330

    国内最高基準の断熱性で省エネ効果を発揮/樹脂と複層ガラスによるハイレベルな断熱性/熱の出入りを抑え、夏も冬もいつも快適

  • ピタットキー

    ピタットキー

    タグキーを近づけるだけで、サッと施開錠できるから、面倒なカギの操作を省いてスマートに出入りできます。

  • ウレタンの吹き付け断熱

    ウレタンの吹き付け断熱

    断熱性能の高さはもちろん、発泡することにより現場の形状にぴったりと密着し気密性が高く、自己接着力により断熱性能を維持します。

  • 省エネ性能ラベル

    省エネ性能ラベル

    ZEH水準の省エネ住宅はエネルギーの使用量を削減でき、日々の光熱費を抑えることができます

ACCESS

立地・アクセス

AROUND

周辺環境

  • 和田こども園

    和田こども園

    500m/徒歩7分

  • 福井市和田小学校

    福井市和田小学校

    1100m/徒歩16分

  • 福井市成和中学校

    福井市成和中学校

    2300m/徒歩33分

  • ローソン福井和田中店

    ローソン福井和田中店

    550m/徒歩7分

  • ハニー食彩館東部店

    ハニー食彩館東部店

    950m/徒歩14分

  • 福井県済生会病院

    福井県済生会病院

    700m/徒歩10分

  • 清水整形外科クリニック

    清水整形外科クリニック

    500m/徒歩2分

  • 和田中西公園

    和田中西公園

    280m/徒歩4分

  • SHOPPING買い物施設
    • ローソン福井和田中店 …550m/徒歩7分
    • セブンイレブン福井和田東店 …900m/徒歩13分
    • ファミリーマート福井和田一丁目店 …1500m/徒歩16分
    • ハニー食彩館東部店 …950m/徒歩14分
    • スギドラッグ …500m/徒歩7分
  • EDUCATION教育施設
    • 和田こども園 …500m/徒歩7分
    • あさひこども園 …1500m/車4分
    • 福井市和田小学校 …1100m/徒歩16分
    • 福井市成和中学校 …2300m/徒歩33分
    • 福井県立高志高等学校・高志中学校 …2700m/徒歩38分
  • HOSPITAL病院
    • 福井県済生会病院 …700m/徒歩10分
    • ふじさわ小児科医院 …500m/徒歩8分
    • 清水整形外科クリニック …500m/徒歩2分
    • 森本歯科医院 …750m/徒歩10分
  • CONVENIENCE生活便利施設
    • 福井信用金庫和田中中央支店 …650m/徒歩9分
    • ユトリ珈琲店 福井和田店 …900m/徒歩12分
    • きょうや …400m/徒歩6分
    • 海鮮アトム和田店 …650m/徒歩10分
    • 和田中西公園 …280m/徒歩4分

ABOUT

物件概要

住所 福井市和田中2丁目2601番2
交通 JR福井駅から3400m
販売価格 3,290万円(税込) 間取り 3LDK+パントリー・ファミリークローク・ランドリールーム・ウォークインクローゼット
土地面積 177.43㎡(53.67坪) 建物面積 97.71㎡(29.55坪)
建ぺい率 60% 容積率 200%
接道状況 【西側】幅員6.00m、間口11.17m 土地権利 所有権
都市計画 市街化区域 地目 宅地
構造・工法 木造2階建て(軸組工法) 用途地域 第1種住居地域
電気 北陸電力 屋根 ガルバリウム鋼板
ガス オール電化の為なし 上水道 公営上水道
下水道 公共下水道 取引態様 売主
完成時期 令和8年4月完成予定 入居時期 建物完成後1カ月
見学可能時期 令和8年4月予定 建築確認番号 第R07確認建築福井住セ00371号
小学校区 和田小学校(1,100m) 中学校区 成和中学校(2,300m)
その他 本物件の内覧予約や住宅ローン・資金計画のご相談はもちろん、新築住宅購入に関するご質問や補助金制度についてもご相談を承っております。住まい探しを始めたばかりの方にも分かりやすくご案内いたしますので、どうぞ安心してお気軽にお問い合わせください。
情報更新日 2026年04月22日 情報更新予定日 2026年05月22日
住所 福井市和田中2丁目2601番2
交通 JR福井駅から3400m
販売価格 3,290万円(税込)
間取り 3LDK+パントリー・ファミリークローク・ランドリールーム・ウォークインクローゼット
土地面積 177.43㎡(53.67坪)
建物面積 97.71㎡(29.55坪)
建ぺい率 60%
容積率 200%
接道状況 【西側】幅員6.00m、間口11.17m
土地権利 所有権
都市計画 市街化区域
地目 宅地
構造・工法 木造2階建て(軸組工法)
用途地域 第1種住居地域
電気 北陸電力
屋根 ガルバリウム鋼板
ガス オール電化の為なし
上水道 公営上水道
下水道 公共下水道
取引態様 売主
完成時期 令和8年4月完成予定
入居時期 建物完成後1カ月
見学可能
時期
令和8年4月予定
建築
確認番号
第R07確認建築福井住セ00371号
小学校区 和田小学校(1,100m)
中学校区 成和中学校(2,300m)
その他 本物件の内覧予約や住宅ローン・資金計画のご相談はもちろん、新築住宅購入に関するご質問や補助金制度についてもご相談を承っております。住まい探しを始めたばかりの方にも分かりやすくご案内いたしますので、どうぞ安心してお気軽にお問い合わせください。
情報
更新日
2026年04月22日
情報更新
予定日
2026年05月22日

同じエリアの他物件もCHECK! 同じエリアの他物件も
CHECK!

この物件を見学予約する

お問い合わせフォーム

CONTACT

下記フォームをご入力いただき、
確認するボタンを押してください。

  • 入力

  • 確認

  • 完了

お問い合わせ内容必須
お名前必須
ふりがな必須
ご年齢必須
電話番号必須

※携帯またはご自宅どちらでもかまいません。

メールアドレス必須

※必ず半角英数字でご入力ください。

ご住所必須
来場人数必須

お子様がいらっしゃる
場合、人数と年齢を
教えてください任意
リビングスペースを
どこで知りましたか?必須
来場内容
(ご質問・ご相談等)任意
個人情報について必須

·自動返信メールの後、担当者からのご予約対応のご返信を以って受付完了とさせていただきます。また、弊社定休日や担当者がお休みをいただいている場合は翌営業日以降のご連絡となる場合がございます。
·メールアドレスを登録された方には、自動で確認メールを送信しております。メールアドレスの誤入力、携帯電話のドメイン指定受信の設定などにより確認メールを受信出来ない場合がございます。迷惑メールなどに入っている場合もございますので、再度受信設定をご確認ください。確認メールが届かない場合は、当社からの返信を受信出来ない可能性がございますので、お手数ですが、メール以外の連絡方法を追記の上、再度お問い合わせいただきますようお願い致します。

入力内容を確認する