MENU close

SEARCH

物件検索

金沢市粟崎町2丁目分譲住宅A棟

見学予約受付中【子育てグリーン住宅支援事業対象40万円予約済のため、ご契約者で補助金対象条件に当てはまる方は補助金の交付を受けれます。】※予算上限額に達した場合は終了します。

完成済み物件 SUSTAINA
  • ハイサッシのコンビネーションと木目調の外壁がアクセントのコンセプト住宅

    ハイサッシのコンビネーションと木目調の外壁がアクセントのコンセプト住宅

  • LDKは18.6帖の大空間で、天井高も2.5mのため圧迫感なく過ごせます。さらに吹抜があることで、LDKが明るく開放的な空間になり、帖数以上の開放感を感じられます。

    LDKは18.6帖の大空間で、天井高も2.5mのため圧迫感なく過ごせます。さらに吹抜があることで、LDKが明るく開放的な空間になり、帖数以上の開放感を感じられます。

  • キッチン・ダイニングの天井を下げて、空間にアクセントを付けました。ダイニングにはペンダント照明を灯し、LDK空間にメリハリを感じられます♪

    キッチン・ダイニングの天井を下げて、空間にアクセントを付けました。ダイニングにはペンダント照明を灯し、LDK空間にメリハリを感じられます♪

  • LDKの配置が奥行きを感じられて広く魅せる住まいになっています♪

    LDKの配置が奥行きを感じられて広く魅せる住まいになっています♪

  • 床表面の無垢材とナチュラルテイストの家具が相まって、落ち着く空間を演出しています♪

    床表面の無垢材とナチュラルテイストの家具が相まって、落ち着く空間を演出しています♪

  •  キッチンの横から洗面脱衣室への家事動線も確保し、周遊できるサーキュレーションプランです♪

    キッチンの横から洗面脱衣室への家事動線も確保し、周遊できるサーキュレーションプランです♪

  • キッチン前面にカウンターが設置されているので、お子さんの勉強姿を見守りながらご飯の支度ができますよ♪

    キッチン前面にカウンターが設置されているので、お子さんの勉強姿を見守りながらご飯の支度ができますよ♪

  • キッチン横にうれしい大容量のパントリーがあります♪

    キッチン横にうれしい大容量のパントリーがあります♪

  • 2階のカウンタースペースでは、趣味やワークスペースを共有できます♪

    2階のカウンタースペースでは、趣味やワークスペースを共有できます♪

  • 優しい色合いの、落ち着いた寝室です♪

    優しい色合いの、落ち着いた寝室です♪

  • 落ち着いた雰囲気の寝室に大きなウォークインクローゼットを完備しています。

    落ち着いた雰囲気の寝室に大きなウォークインクローゼットを完備しています。

  • 玄関横のにシューズクロークは、フロアから靴の出入れが可能です。

    玄関横のにシューズクロークは、フロアから靴の出入れが可能です。

  • 高性能住宅で吹抜けがあると家全体が快適にすごせます♪

    高性能住宅で吹抜けがあると家全体が快適にすごせます♪

  • 【ZEH水準住宅】40万円の補助金対象物件です!

    【ZEH水準住宅】40万円の補助金対象物件です!

  • 断熱性能:等級5(ZEH基準を満たす省エネ仕様)

    断熱性能:等級5(ZEH基準を満たす省エネ仕様)

  • 耐震性能:等級3相当(建築基準法の1.5倍の耐震性能)

    耐震性能:等級3相当(建築基準法の1.5倍の耐震性能)

  • ハイサッシのコンビネーションと木目調の外壁がアクセントのコンセプト住宅
  • LDKは18.6帖の大空間で、天井高も2.5mのため圧迫感なく過ごせます。さらに吹抜があることで、LDKが明るく開放的な空間になり、帖数以上の開放感を感じられます。
  • キッチン・ダイニングの天井を下げて、空間にアクセントを付けました。ダイニングにはペンダント照明を灯し、LDK空間にメリハリを感じられます♪
  • LDKの配置が奥行きを感じられて広く魅せる住まいになっています♪
  • 床表面の無垢材とナチュラルテイストの家具が相まって、落ち着く空間を演出しています♪
  •  キッチンの横から洗面脱衣室への家事動線も確保し、周遊できるサーキュレーションプランです♪
  • キッチン前面にカウンターが設置されているので、お子さんの勉強姿を見守りながらご飯の支度ができますよ♪
  • キッチン横にうれしい大容量のパントリーがあります♪
  • 2階のカウンタースペースでは、趣味やワークスペースを共有できます♪
  • 優しい色合いの、落ち着いた寝室です♪
  • 落ち着いた雰囲気の寝室に大きなウォークインクローゼットを完備しています。
  • 玄関横のにシューズクロークは、フロアから靴の出入れが可能です。
  • 高性能住宅で吹抜けがあると家全体が快適にすごせます♪
  • 【ZEH水準住宅】40万円の補助金対象物件です!
  • 断熱性能:等級5(ZEH基準を満たす省エネ仕様)
  • 耐震性能:等級3相当(建築基準法の1.5倍の耐震性能)

金沢市粟崎町2丁目分譲住宅A棟

見学予約受付中【子育てグリーン住宅支援事業対象40万円予約済のため、ご契約者で補助金対象条件に当てはまる方は補助金の交付を受けれます。】※予算上限額に達した場合は終了します。

完成済み物件 SUSTAINA
住所 金沢市粟崎町2丁目282番1
学区 粟崎小学校/港中学校
アクセス -
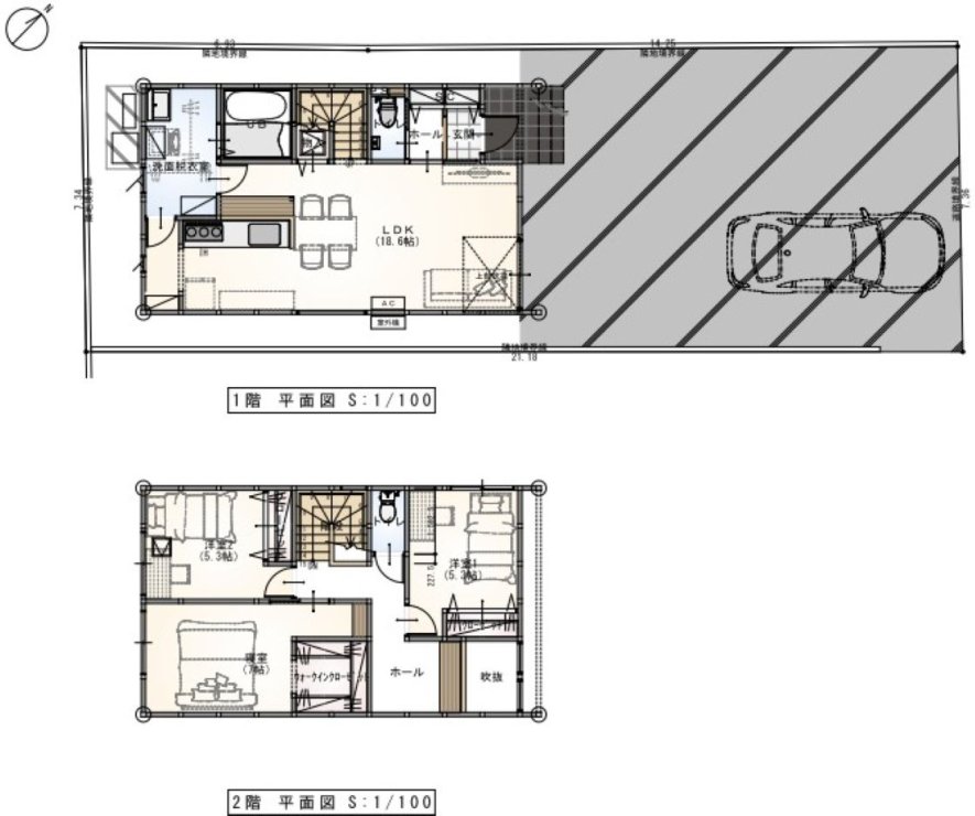
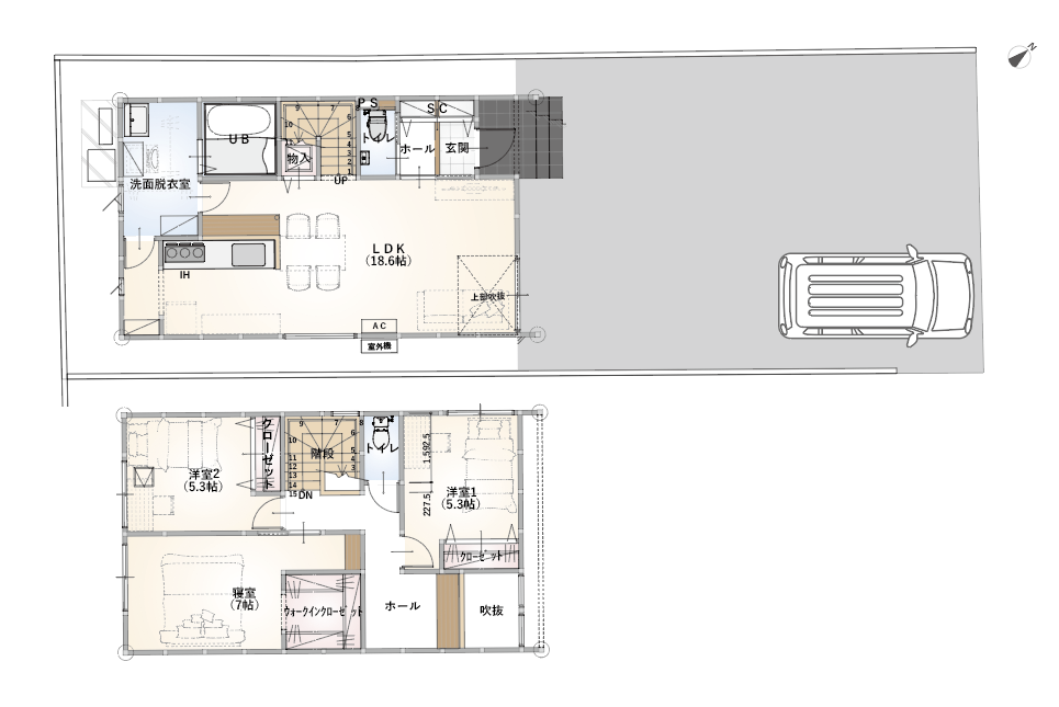
間取り 3LDK+シューズクローク+ウォークインクローゼット
駐車スペース 4台
販売価格 3,230万円

POINT POINTポイント

金沢市粟崎町2丁目に誕生したおしゃれな住まい。
保育施設やドラッグストアが徒歩10分以内!利便性が高く、自然環境が豊かな立地です!
あかしあこども園や粟崎こども園まで徒歩10分以内、粟崎中央公園も徒歩3分と近くお子様と安心して暮らせるエリア。

外観デザインは、ハイサッシのコンビネーションと木目調の外壁がアクセントのコンセプトデザイン住宅です。

間取りは3LDK。18.6帖のLDKは高天井(天井高2.5m)がもたらす伸びやかな空間が魅力で、さらに吹抜設計により帖数以上の広がりと開放感を感じられます。
また、キッチン・ダイニングの天井を下げて、空間にアクセントをつけた“下がり天井”がアクセントとなり、LDK空間にメリハリと奥行を感じられる演出がなされています。

洗面脱衣室を3.5帖と広く設け、キッチンからもLDKからも動線が確保されていて家事がスムーズです。

キッチン横のパントリーや階段下収納など分散型の収納もモノがしっかりと仕舞えて便利です。

敷地内は車4台分の駐車スペースを確保しており、2台並列+2台縦列で、柔軟な使い分けが可能です。


閑静な街並みと利便性のバランスに優れた立地と、暮らしに寄り添う設計で、家時間がいっそう豊かになる住まいです。

金沢市内で注文住宅を建てる場合には、5000万円以上は当然必要です。借入5000万円の場合は月112,739円(3年固定、金利0.40%の場合)となります。当社の分譲住宅であれば3400万円程になり、借入3400万円の場合は月々76,662円で月々の支払いも抑える事ができます。また、分譲建売住宅の良さは立地条件が良く、将来的に資産として運用しやすいのが大きなメリットです。樹脂サッシ標準採用、ウレタン吹付断熱による高気密・高断熱住宅、ZEH基準の高い省エネ性能、耐震等級3相当の性能も兼ね備え、無理しない価格帯で快適な暮らしをご提供します。

■住宅性能
 断熱性能:等級5(ZEH基準を満たす省エネ仕様)
 耐震性能:等級3相当(建築基準法の1.5倍の耐震性能)

■補助金関連
 国の「子育てエコホーム支援事業」により最大40万円の補助金利用可(ZEH水準住宅)

■標準仕様
 LDKエアコン付き、照明器具付き

PLAN

間取図

キッチンを中心に水周りを回遊できることに加えて、18帖以上のLDKによる解放感が家族の暮らしを穏やかに支えてくれます。

■ 吹抜があることで明るく開放的なLDKになり、帖数以上の広がりを感じる【吹抜設計】
■ 3.5帖の洗面脱衣室は洗濯物を干していても十分な脱衣スペースがあります【広々ランドリールーム】
■ キッチンを中心に水廻りを周遊できて家事もスムーズです【家事ラク動線】
■ 樹脂フレームとLow-E複層ガラスで国内最高レベルの断熱性能を実現した【高性能樹脂サッシAPW330】
■ ウィルス、菌、汚れ、匂いを除去するエアーウォッシュ機能付きの【エアーウォッシュフローリング】
■ EXハイパーで地震や台風の力を壁全体で受け止め優れた耐震性を発揮【耐震等級3相当】
■ 玄関ドアのノブに触れるだけで簡単開閉が可能な【スマートコントロールキー】

VR

バーチャル見学

EQUIPMENT

設備・仕様

  • Panasonic リビングステーションVスタイル

    Panasonic リビングステーションVスタイル

    ・トリプルワイドIH
     3口IHヒーター(グリルなし)
    ・浄水器内蔵タッチレス水栓
    ・食器洗い乾燥機(深型)

  • Panasonic オフローラ

    Panasonic オフローラ

    ・1616サイズ
    ・スゴピカ浴槽、スゴピカ水栓
    ・暖房換気乾燥機
    ・フラットラインLED照明

  • Panasonic 洗面ドレッシング シーライン

    Panasonic 洗面ドレッシング シーライン

    ・フロートオープンタイプ
    ・ツインラインLED三面鏡

  • Panasonic アラウーノ Z160シリーズ(1Fトイレ)

    Panasonic アラウーノ Z160シリーズ(1Fトイレ)

    ・自動洗浄機能
    ・激落ちバブル洗浄機能
    ・ハネ、タレ、モレのトリプル汚れガード設計

  • Panasonic アラウーノ V(2Fトイレ)

    Panasonic アラウーノ V(2Fトイレ)

    ・ステンレスノズル
    ・スゴピカ素材
    ・手洗い付

  • 耐震等級3相当

    耐震等級3相当

    【EXハイパー】
    地震や台風の力が端部集中するのを壁全体で力を受け止め一部にかかる負担が軽減されます。さらに、せっこうできている無機質系面材のEXハイパーは火に強く、燃えない建材です。

  • ウレタンの吹付け断熱

    ウレタンの吹付け断熱

    断熱性能の高さはもちろん、発泡することにより現場の形状にぴったりと密着し気密性が高く、自己接着力により断熱性能を維持します。

  • 高性能樹脂サッシAPW330

    高性能樹脂サッシAPW330

    樹脂フレームとLow-E複層ガラスで国内最高レベルの断熱性を実現しています。熱の出入りを抑え、快適な室内環境を保てます。

  • ポケットキー

    ポケットキー

    ドアノブに触れるだけで簡単開閉が可能です。毎日の事なので非常に便利です♪

  • 省エネ性能ラベル

    省エネ性能ラベル

    ZEH Oriented仕様
    ・断熱等性能等級5
    ZEH水準の省エネ住宅はエネルギーの使用量を削減でき、日々の光熱費を抑えることができます。

ACCESS

立地・アクセス

AROUND

周辺環境

  • あかしあこども園

    あかしあこども園

    650m(徒歩9分)

  • 粟崎こども園

    粟崎こども園

    650m(徒歩9分)

  • 金沢市立粟崎小学校

    金沢市立粟崎小学校

    1200m(徒歩15分)

  • 金沢市立港中学校

    金沢市立港中学校

    2600m(徒歩33分)

  • ドラッグストア コスモス内灘店

    ドラッグストア コスモス内灘店

    400m(徒歩5分)

  • クスリのアオキ 粟崎店

    クスリのアオキ 粟崎店

    550m(徒歩7分)

  • ローソン 金沢市粟崎店

    ローソン 金沢市粟崎店

    550m(徒歩7分

  • 粟崎中央公園

    粟崎中央公園

    230m(徒歩3分)

  • SHOPPING買い物施設
    • マックスバリュ内灘店 …1500m(徒歩19分)
  • CONVENIENCE生活便利施設
    • 北陸鉄道「粟崎四丁目」バス停 …230m(徒歩3分)
    • 粟崎郵便局 …500m(徒歩7分)

ABOUT

物件概要

住所 金沢市粟崎町2丁目282番1
交通 -
販売価格 3,230万円(税込) 間取り 3LDK+シューズクローク+ウォークインクローゼット
土地面積 154.99㎡(46.88坪) 建物面積 101.27㎡(30.63坪)
建ぺい率 60% 容積率 200%
接道状況 前面道路:(北東側)5.22m、間口:7.36m 土地権利 所有権
都市計画 市街化区域 地目 宅地
構造・工法 木造在来工法2階建 用途地域 第2種中高層住居専用地域
電気 北陸電力(他の小売電力事業者の選択可能) 屋根 ガルバリウム鋼板
ガス オール電化の為なし 上水道 市営水道
下水道 公共下水道 取引態様 売主
完成時期 令和7年7月 入居時期 令和7年8月
見学可能時期 令和7年7月 建築確認番号 第IKJC24-1637号
小学校区 粟崎小学校 中学校区 港中学校
その他 -
情報更新日 2026年01月10日 情報更新予定日 2026年02月10日
住所 金沢市粟崎町2丁目282番1
交通 -
販売価格 3,230万円(税込)
間取り 3LDK+シューズクローク+ウォークインクローゼット
土地面積 154.99㎡(46.88坪)
建物面積 101.27㎡(30.63坪)
建ぺい率 60%
容積率 200%
接道状況 前面道路:(北東側)5.22m、間口:7.36m
土地権利 所有権
都市計画 市街化区域
地目 宅地
構造・工法 木造在来工法2階建
用途地域 第2種中高層住居専用地域
電気 北陸電力(他の小売電力事業者の選択可能)
屋根 ガルバリウム鋼板
ガス オール電化の為なし
上水道 市営水道
下水道 公共下水道
取引態様 売主
完成時期 令和7年7月
入居時期 令和7年8月
見学可能
時期
令和7年7月
建築
確認番号
第IKJC24-1637号
小学校区 粟崎小学校
中学校区 港中学校
その他 -
情報
更新日
2026年01月10日
情報更新
予定日
2026年02月10日

同じエリアの他物件もCHECK! 同じエリアの他物件も
CHECK!

この物件を見学予約する

お問い合わせフォーム

CONTACT

下記フォームをご入力いただき、
確認するボタンを押してください。

  • 入力

  • 確認

  • 完了

お問い合わせ内容必須
お名前必須
ふりがな必須
ご年齢必須
電話番号必須

※携帯またはご自宅どちらでもかまいません。

メールアドレス必須

※必ず半角英数字でご入力ください。

ご住所必須
来場人数必須

お子様がいらっしゃる
場合、人数と年齢を
教えてください任意
リビングスペースを
どこで知りましたか?任意
来場内容
(ご質問・ご相談等)任意
個人情報について必須

·自動返信メールの後、担当者からのご予約対応のご返信を以って受付完了とさせていただきます。また、弊社定休日や担当者がお休みをいただいている場合は翌営業日以降のご連絡となる場合がございます。
·メールアドレスを登録された方には、自動で確認メールを送信しております。メールアドレスの誤入力、携帯電話のドメイン指定受信の設定などにより確認メールを受信出来ない場合がございます。迷惑メールなどに入っている場合もございますので、再度受信設定をご確認ください。確認メールが届かない場合は、当社からの返信を受信出来ない可能性がございますので、お手数ですが、メール以外の連絡方法を追記の上、再度お問い合わせいただきますようお願い致します。

入力内容を確認する