MENU close

SEARCH

物件検索

金沢市山科2丁目分譲住宅A棟

見学予約受付中!

完成済み分譲物件 SUSTAINA
  • 小幅の板を重ね張りしたような外壁をベースに柔らかなグレイッシュの吹付とシャープなハイサッシが映える上質なモダンデザイン住宅。

    商談中

    小幅の板を重ね張りしたような外壁をベースに柔らかなグレイッシュの吹付とシャープなハイサッシが映える上質なモダンデザイン住宅。

  • LDKは17.7帖の大空間で、天井高も2.5mのため圧迫感なく過ごせます。さらに吹抜があることで、LDKが明るく開放的な空間になり、帖数以上の開放感を感じられます。

    商談中

    LDKは17.7帖の大空間で、天井高も2.5mのため圧迫感なく過ごせます。さらに吹抜があることで、LDKが明るく開放的な空間になり、帖数以上の開放感を感じられます。

  • フローリングを斜め張りにし、個性溢れるLDKになっています♪

    商談中

    フローリングを斜め張りにし、個性溢れるLDKになっています♪

  • 床表面の無垢材とナチュラルテイストの家具が相まって、落ち着く空間を演出しています♪

    商談中

    床表面の無垢材とナチュラルテイストの家具が相まって、落ち着く空間を演出しています♪

  • キッチンからLDK全体を見渡せる間取りですので、お料理しながらもお子様の学習の様子に目が届きます♪

    商談中

    キッチンからLDK全体を見渡せる間取りですので、お料理しながらもお子様の学習の様子に目が届きます♪

  • 玄関横のにシューズクロークは、フロアから靴の出入れが可能です。

    商談中

    玄関横のにシューズクロークは、フロアから靴の出入れが可能です。

  • キッチン横にうれしい大容量のパントリーがあります♪

    商談中

    キッチン横にうれしい大容量のパントリーがあります♪

  •  階段下には奥行きのある階段下物入を完備しています♪

    商談中

    階段下には奥行きのある階段下物入を完備しています♪

  •  洗面室兼ランドリールームは洗濯物も干せる上に、浴室には乾燥暖房換気扇が完備されているため早く乾かしたい洗濯物も干せます。

    商談中

    洗面室兼ランドリールームは洗濯物も干せる上に、浴室には乾燥暖房換気扇が完備されているため早く乾かしたい洗濯物も干せます。

  • 洗面脱衣スペースにも収納を完備♪

    商談中

    洗面脱衣スペースにも収納を完備♪

  • 2階のカウンタースペースでは、趣味やワークスペースを共有できます♪

    商談中

    2階のカウンタースペースでは、趣味やワークスペースを共有できます♪

  • 優しい色合いの落ち着いた寝室(6帖)

    商談中

    優しい色合いの落ち着いた寝室(6帖)

  • 落ち着いた雰囲気の寝室に大きなウォークインクローゼットを完備しています。

    商談中

    落ち着いた雰囲気の寝室に大きなウォークインクローゼットを完備しています。

  • 高性能住宅で吹抜けがあると家全体が快適にすごせます♪

    商談中

    高性能住宅で吹抜けがあると家全体が快適にすごせます♪

  • 【断熱等性能等級】 等級5(ZEH基準を満たす省エネ仕様)

    商談中

    【断熱等性能等級】 等級5(ZEH基準を満たす省エネ仕様)

  • 【耐震等級3相当】 大地震が来ても安心して住み続けられる強さと安心を備えた住まいを実現します。

    商談中

    【耐震等級3相当】 大地震が来ても安心して住み続けられる強さと安心を備えた住まいを実現します。

  • 小幅の板を重ね張りしたような外壁をベースに柔らかなグレイッシュの吹付とシャープなハイサッシが映える上質なモダンデザイン住宅。
  • LDKは17.7帖の大空間で、天井高も2.5mのため圧迫感なく過ごせます。さらに吹抜があることで、LDKが明るく開放的な空間になり、帖数以上の開放感を感じられます。
  • フローリングを斜め張りにし、個性溢れるLDKになっています♪
  • 床表面の無垢材とナチュラルテイストの家具が相まって、落ち着く空間を演出しています♪
  • キッチンからLDK全体を見渡せる間取りですので、お料理しながらもお子様の学習の様子に目が届きます♪
  • 玄関横のにシューズクロークは、フロアから靴の出入れが可能です。
  • キッチン横にうれしい大容量のパントリーがあります♪
  •  階段下には奥行きのある階段下物入を完備しています♪
  •  洗面室兼ランドリールームは洗濯物も干せる上に、浴室には乾燥暖房換気扇が完備されているため早く乾かしたい洗濯物も干せます。
  • 洗面脱衣スペースにも収納を完備♪
  • 2階のカウンタースペースでは、趣味やワークスペースを共有できます♪
  • 優しい色合いの落ち着いた寝室(6帖)
  • 落ち着いた雰囲気の寝室に大きなウォークインクローゼットを完備しています。
  • 高性能住宅で吹抜けがあると家全体が快適にすごせます♪
  • 【断熱等性能等級】 等級5(ZEH基準を満たす省エネ仕様)
  • 【耐震等級3相当】 大地震が来ても安心して住み続けられる強さと安心を備えた住まいを実現します。

金沢市山科2丁目分譲住宅A棟

見学予約受付中!

完成済み分譲物件 SUSTAINA
住所 金沢市山科2丁目68番2
学区 富樫小学校/高尾台中学校
アクセス -
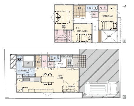
間取り 3LDK+シューズクローク+ウォークインクローゼット
駐車スペース 2台(車種により3台も可)
販売価格 3,280万円

POINT POINTポイント

金沢市山科2丁目に誕生した南向きの住まい。
金沢外環状道路にアクセスしやすく、周辺の商業施設も充実しています。冨樫中央こども園まで徒歩5分以内、大乗寺丘陵公園も近くお子様と安心して暮らせるエリア。

外観デザインは、小幅の板を重ね張りしたような外壁をベースに柔らかなグレイッシュの吹付とシャープなハイサッシが映える上質なモダンデザイン住宅。

間取りは3LDK。17.7帖のLDKは高天井(天井高2.5m)がもたらす伸びやかな空間が魅力で、さらに吹抜設計により帖数以上の広がりと開放感を感じられます。
斜め張りした個性あるおしゃれなLDKは飽きのこない住空間を演出します。
キッチン横のパントリーや大容量の階段下収納、各個室のクローゼットなど分散型の収納もモノがしっかりと仕舞えて便利です。必要な場所に必要な収納があることで、片付けの手間が減り、居室の広さをそのまま体感できます。日々の送り迎えや週末の買い出し、来客の多い日も動線にも余裕が生まれます。
閑静な街並みと利便性のバランスに優れた立地、暮らしに寄り添う設計で、家時間がいっそう豊かになる住まいです。

金沢市内で注文住宅を建てる場合には、5000万円以上は当然必要です。借入5000万円の場合は月々112,739円(3年固定、金利0.40%の場合)となります。当社の分譲住宅であれば3500万円程になり、借入3500万円の場合は月々78,917円で月々の支払いも抑える事ができます。また、分譲建売住宅の良さは立地条件が良く、将来的に資産として運用しやすいのが大きなメリットです。樹脂サッシ標準採用、ウレタン吹付断熱による高気密・高断熱住宅、ZEH基準の高い省エネ性能、耐震等級3相当の性能も兼ね備え、無理しない価格帯で快適な暮らしをご提供します。

■住宅性能
 断熱性能:等級5(ZEH基準を満たす省エネ仕様)
 耐震性能:等級3相当(建築基準法の1.5倍の耐震性能)

■標準仕様
 LDKエアコン付き、照明器具付き

PLAN

間取図

ライフタイルに合わせて最適な収納を備えた家事・育児を支える家

■ 南側の吹抜から自然光がたっぷり差し込み、暮らしに心地よい解放感をもたらしてくれる【吹抜設計】
■ パントリーや脱衣室の収納棚、階段下の収納で片付けしやすい暮らしを実現【分散収納充実スタイル】
■ フローリングを斜め張りした個性溢れる空間設計【おしゃれな内装デザイン】
■ 樹脂フレームとLow-E複層ガラスで国内最高レベルの断熱性能を実現した【高性能樹脂サッシAPW330】
■ ウィルス、菌、汚れ、匂いを除去するエアーウォッシュ機能付きの【エアーウォッシュフローリング】
■ 大地震がきても安心して住み続けられる強さと安心を備えた住まい【耐震等級3相当】
■ 玄関ドアのノブに触れるだけで簡単開閉が可能な【ポケットキー】

VR

バーチャル見学

EQUIPMENT

設備・仕様

  • Panasonic リビングステーションVスタイル

    Panasonic リビングステーションVスタイル

    ・トリプルワイドIH
     3口IHヒーター(グリルなし)
    ・浄水器内蔵タッチレス水栓
    ・食器洗い乾燥機(深型)

  • Panasonic オフローラ

    Panasonic オフローラ

    ・1616サイズ
    ・スゴピカ浴槽、スゴピカ水栓
    ・暖房換気乾燥機
    ・フラットラインLED照明

  • Panasonic 洗面ドレッシング シーライン

    Panasonic 洗面ドレッシング シーライン

    ・フロートオープンタイプ
    ・ツインラインLED三面鏡

  • Panasonic アラウーノ Z160シリーズ(1Fトイレ)

    Panasonic アラウーノ Z160シリーズ(1Fトイレ)

    ・自動洗浄機能
    ・激落ちバブル洗浄機能
    ・ハネ、タレ、モレのトリプル汚れガード設計

  • Panasonic アラウーノ V(2Fトイレ)

    Panasonic アラウーノ V(2Fトイレ)

    ・ステンレスノズル
    ・スゴピカ素材
    ・手洗い付

  • ウレタンの吹付け断熱

    ウレタンの吹付け断熱

    断熱性能の高さはもちろん、発泡することにより現場の形状にぴったりと密着し気密性が高く、自己接着力により断熱性能を維持します。

  • 高性能樹脂サッシAPW330

    高性能樹脂サッシAPW330

    ・国内最高基準の断熱性で省エネ効果を発揮
    ・樹脂と複層ガラスによるハイレベルな断熱性
    ・熱の出入りを抑え、夏も冬もいつも快適

  • ポケットキー

    ポケットキー

    ・リモコンキーを携帯して簡単施解錠
    ・ドアから離れていてもリモコンキーでもボタン操作が可能
    ・スマートフォンアプリを使ってリモコン操作
    ・非常用収納カギ標準装備

  • 省エネ性能ラベル

    省エネ性能ラベル

    ZEH Oriented仕様

ACCESS

立地・アクセス

AROUND

周辺環境

  • 富樫中央こども園

    富樫中央こども園

    350m(徒歩5分)

  • 金沢市立富樫小学校

    金沢市立富樫小学校

    550m(徒歩7分)

  • 金沢市立高尾台中学校

    金沢市立高尾台中学校

    2000m(徒歩25分)

  • ファミリーマート 金沢山科一丁目店

    ファミリーマート 金沢山科一丁目店

    500m(徒歩7分)

  • アルビス 泉が丘サンピア店

    アルビス 泉が丘サンピア店

    800m(徒歩10分)

  • クスリのアオキ 泉野出町店

    クスリのアオキ 泉野出町店

    850m(徒歩11分)

  • 北國銀行 円光寺支店

    北國銀行 円光寺支店

    500m(徒歩7分)

  • 大乗寺丘陵公園

    大乗寺丘陵公園

    230m(徒歩3分)

  • SHOPPING買い物施設
    • カジマート長坂店 …1400m(徒歩18分)
    • むつぼしマーケット金沢長坂店 …1400m(徒歩18分)
    • ニュー三久伏見台店 …1300m(徒歩17分)
    • コスモス金沢窪店 …1400m(徒歩18分)
  • CONVENIENCE生活便利施設
    • 北鉄バス 円光寺バス停 …650m(徒歩9分)
    • 北鉄バス 増泉一丁目バス停 …240m(徒歩3分)

ABOUT

物件概要

住所 金沢市山科2丁目68番2
交通 -
販売価格 3,280万円(税込) 間取り 3LDK+シューズクローク+ウォークインクローゼット
土地面積 119.37㎡(36.10坪) 建物面積 101.01㎡(30.55坪)
建ぺい率 60% 容積率 200%
接道状況 前面道路:(南側)幅員:6.78m、間口:7.10m 土地権利 所有権
都市計画 市街化区域 地目 宅地
構造・工法 木造在来工法2階建 用途地域 第1種中高層住居専用地域
電気 北陸電力(他の小売電力事業者の選択可能) 屋根 ガルバリウム鋼板
ガス オール電化の為なし 上水道 市営水道
下水道 公共下水道 取引態様 売主
完成時期 令和8年3月 入居時期 令和8年4月
見学可能時期 令和8年3月 建築確認番号 第IKJC25-0411号
小学校区 富樫小学校 中学校区 高尾台中学校
その他 -
情報更新日 2026年05月16日 情報更新予定日 2026年06月16日
住所 金沢市山科2丁目68番2
交通 -
販売価格 3,280万円(税込)
間取り 3LDK+シューズクローク+ウォークインクローゼット
土地面積 119.37㎡(36.10坪)
建物面積 101.01㎡(30.55坪)
建ぺい率 60%
容積率 200%
接道状況 前面道路:(南側)幅員:6.78m、間口:7.10m
土地権利 所有権
都市計画 市街化区域
地目 宅地
構造・工法 木造在来工法2階建
用途地域 第1種中高層住居専用地域
電気 北陸電力(他の小売電力事業者の選択可能)
屋根 ガルバリウム鋼板
ガス オール電化の為なし
上水道 市営水道
下水道 公共下水道
取引態様 売主
完成時期 令和8年3月
入居時期 令和8年4月
見学可能
時期
令和8年3月
建築
確認番号
第IKJC25-0411号
小学校区 富樫小学校
中学校区 高尾台中学校
その他 -
情報
更新日
2026年05月16日
情報更新
予定日
2026年06月16日

同じエリアの他物件もCHECK! 同じエリアの他物件も
CHECK!

この物件を見学予約する

お問い合わせフォーム

CONTACT

下記フォームをご入力いただき、
確認するボタンを押してください。

  • 入力

  • 確認

  • 完了

お問い合わせ内容必須
お名前必須
ふりがな必須
ご年齢必須
電話番号必須

※携帯またはご自宅どちらでもかまいません。

メールアドレス必須

※必ず半角英数字でご入力ください。

ご住所必須
来場人数必須

お子様がいらっしゃる
場合、人数と年齢を
教えてください任意
リビングスペースを
どこで知りましたか?必須
来場内容
(ご質問・ご相談等)任意
個人情報について必須

·自動返信メールの後、担当者からのご予約対応のご返信を以って受付完了とさせていただきます。また、弊社定休日や担当者がお休みをいただいている場合は翌営業日以降のご連絡となる場合がございます。
·メールアドレスを登録された方には、自動で確認メールを送信しております。メールアドレスの誤入力、携帯電話のドメイン指定受信の設定などにより確認メールを受信出来ない場合がございます。迷惑メールなどに入っている場合もございますので、再度受信設定をご確認ください。確認メールが届かない場合は、当社からの返信を受信出来ない可能性がございますので、お手数ですが、メール以外の連絡方法を追記の上、再度お問い合わせいただきますようお願い致します。

入力内容を確認する