MENU close

SEARCH

物件検索

金沢市上荒屋2丁目分譲住宅B棟

令和8年7月完成予定(B棟:画像右側)

建築中分譲物件 SUSTAINA
  • (B棟:画像右側)グレージュの塗壁に天然木のアクセントを組み合わせたシンプルながらも奥行きを感じさせる外観デザインです。

    (B棟:画像右側)グレージュの塗壁に天然木のアクセントを組み合わせたシンプルながらも奥行きを感じさせる外観デザインです。

  • LDKは18.2帖で、天井高も2.5mのため圧迫感なく過ごせます。さらに吹抜があることで、帖数以上の開放感を感じられます。

    LDKは18.2帖で、天井高も2.5mのため圧迫感なく過ごせます。さらに吹抜があることで、帖数以上の開放感を感じられます。

  • 南側前面道路(西側から撮影)幅員:5.95m

    南側前面道路(西側から撮影)幅員:5.95m

  • 西側前面道路(南側から撮影)幅員:4.88m

    西側前面道路(南側から撮影)幅員:4.88m

  • 帰宅後に靴を片づけ、制服やランドセルをしまってからリビングへ向かえるので、自然と「片づく習慣」が身につきます。

    帰宅後に靴を片づけ、制服やランドセルをしまってからリビングへ向かえるので、自然と「片づく習慣」が身につきます。

  • 敷地全体(西側から撮影)

    敷地全体(西側から撮影)

  • 敷地全体(南西側から撮影)

    敷地全体(南西側から撮影)

  • 断熱性能:等級5(ZEH基準を満たす省エネ仕様)

    断熱性能:等級5(ZEH基準を満たす省エネ仕様)

  • 耐震性能:等級3相当(建築基準法の1.5倍の耐震性能)

    耐震性能:等級3相当(建築基準法の1.5倍の耐震性能)

  • (B棟:画像右側)グレージュの塗壁に天然木のアクセントを組み合わせたシンプルながらも奥行きを感じさせる外観デザインです。
  • LDKは18.2帖で、天井高も2.5mのため圧迫感なく過ごせます。さらに吹抜があることで、帖数以上の開放感を感じられます。
  • 南側前面道路(西側から撮影)幅員:5.95m
  • 西側前面道路(南側から撮影)幅員:4.88m
  • 帰宅後に靴を片づけ、制服やランドセルをしまってからリビングへ向かえるので、自然と「片づく習慣」が身につきます。
  • 敷地全体(西側から撮影)
  • 敷地全体(南西側から撮影)
  • 断熱性能:等級5(ZEH基準を満たす省エネ仕様)
  • 耐震性能:等級3相当(建築基準法の1.5倍の耐震性能)

金沢市上荒屋2丁目分譲住宅B棟

令和8年7月完成予定(B棟:画像右側)

建築中分譲物件 SUSTAINA
住所 金沢市上荒屋2丁目133番2
学区 三和小学校/西南部中学校
アクセス -
間取り 3LDK+シューズクローク+ファミリークローゼット+ウォークインクローゼット
駐車スペース -
販売価格 3,590万円

POINT POINTポイント

金沢市上荒屋2丁目。大型商業施設のアークスクエアからも近く、買い物・郵便局・コンビニなど生活に必要な施設が近くにそろっていて便利なエリアです。 IRいしかわ鉄道「野々市駅」にも近く日々の通勤・通学・お出かけにも便利でバランスの取れた立地が魅力です♪

外観デザインは、グレージュの塗壁に天然木のアクセントを組み合わせたシンプルながらも奥行きを感じさせるデザインです。

間取りは3LDK。LDKは18.2帖で、天井高も2.5mのため圧迫感なく過ごせます。さらに吹抜があることで、帖数以上の開放感を感じられます。吹抜の上部には2階の多目的スペースが隣接し家族とのつながりを感じながらも、程よい距離感でリモートワークや読書スペースに活用できます。
玄関からシューズクローク、ファミリークローゼットを通ってLDKへとつながるスムーズな動線で帰宅後に靴を片づけ、制服やランドセルをしまってからリビングへ向かえるので、自然と「片づく習慣」が身につきます。お子さまとの外出や帰宅も、毎日がもっと快適になります。


敷地内は車3台分の駐車スペースを確保しており、2台並列+来客用など柔軟な使い分けが可能です。
閑静な街並みと利便性のバランスに優れた立地と、暮らしに寄り添う設計で、家時間がいっそう豊かになる住まいです。

上荒屋エリアで注文住宅を建てる場合には、4800万円以上は当然必要です。借入4800万円の場合は月々108,229円(3年固定、金利0.40%の場合)となります。当社の分譲住宅であれば3800万円程になり、借入3800万円の場合は月々85,681円で月々の支払いも抑える事ができます。また、分譲建売住宅の良さは立地条件が良く、将来的に資産として運用しやすいのが大きなメリットです。樹脂サッシ標準採用、ウレタン吹付断熱による高気密・高断熱住宅、ZEH基準の高い省エネ性能、耐震等級3相当の性能も兼ね備え、無理しない価格帯で快適な暮らしをご提供します。

■住宅性能
 断熱性能:等級5(ZEH基準を満たす省エネ仕様)
 耐震性能:等級3相当(建築基準法の1.5倍の耐震性能)

■標準仕様
 LDKエアコン付き、照明器具付き

PLAN

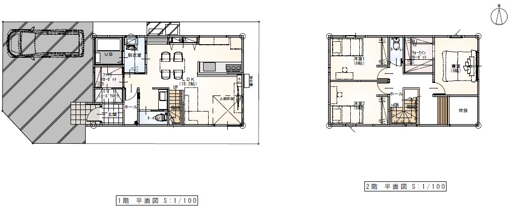
間取図

【3LDK+シューズクローク+ファミリークローゼット+ウォークインクローゼット】

■ 玄関からシューズクローク、ファミリークローゼットを通ってLDKへとつながる【ただいま動線】
■ 吹抜があることで明るく開放的なLDKになり、帖数以上の広がりを感じる【吹抜設計】
■ 樹脂フレームとLow-E複層ガラスで国内最高レベルの断熱性能を実現した【高性能樹脂サッシAPW330】
■ ウィルス、菌、汚れ、匂いを除去するエアーウォッシュ機能付きの【エアーウォッシュフローリング】
■ 大地震が来ても安心して住み続けられる強さと安心を備えた住まいを実現【耐震等級3相当】
■ 玄関ドアのノブに触れるだけで簡単開閉が可能な【ポケットキー】

EQUIPMENT

設備・仕様

  • PanasonicリビングステーションV スタイル(※画像は建築事例です)

    PanasonicリビングステーションV スタイル(※画像は建築事例です)

    ・3つ横並びで手前スペースもひろびろ使える【トリプルワイドIH(グリルなし)】
    ・ストレスフリーな操作性で節水効果も抜群【浄水器内蔵タッチレス水栓】
    ・ストリーム除菌洗浄で、洗うと同時に除菌もできる【食器洗い乾燥機(深型)】
    ・引き出しを閉める時に静かでスムーズ!調理効率も向上【ソフトクロージング機構】
    ・シンクの排水部分は継ぎ目がない一体成型でお掃除ラクラク【スキマレスシンク】

  • Panasonicオフローラ(※画像は建築事例です)

    Panasonicオフローラ(※画像は建築事例です)

    ・暖房に、湿気カビ対策に、一年中大活躍【浴室暖房乾燥機】
    ・断熱材で浴槽を包み高い保温効果を発揮【保温浴槽】
    ・水や汚れをはじきスゴく汚れにくい【スゴピカ浴槽】
    ・水アカが付きにくくお掃除がしやすい【スゴピカ水栓】
    ・空間全体をすっきり美しく照らす【フラットラインLED

  • Panasonicシーライン(※画像は建築事例です)

    Panasonicシーライン(※画像は建築事例です)

    ・ヒーターを使わないから電気代ゼロ【くもりシャット!】
    ・どの高さでもしっかり照らす【ツインラインLED】
    ・魅せる収納でスタイリッシュに【フロートオープンタイプ】
    ・のびのび使える【ワイドカウンター】

  • Panasonicアラウーノ Z160 シリーズ(※画像は建築事例です)

    Panasonicアラウーノ Z160 シリーズ(※画像は建築事例です)

    ・センサーが検知して自動で便器を洗浄【自動洗浄機能】
    ・流すたび泡と水流でしっかりお掃除【激落ちバブル洗浄機能】
    ・汚れが付きにくく落ちやすい【スゴピカ素材】
    ・使いやすくトイレ内を清潔に保てる【独立手洗器】

  • PanasonicアラウーノV(※画像は建築事例です)

    PanasonicアラウーノV(※画像は建築事例です)

    ・洗浄力と節水の両立を実現【3D ツイスター水流】
    ・汚れが付きにくく落ちやすい【スゴピカ素材】
    ・手がさっと届く傾斜したボールでスムーズに手洗い【手洗器付き】

  • 高性能樹脂サッシAPW330

    高性能樹脂サッシAPW330

    樹脂フレームとLow-E複層ガラスで国内最高レベルの断熱性を実現しています。熱の出入りを抑え、快適な室内環境を保てます。

  • ポケットキー

    ポケットキー

    ドアノブに触れるだけで簡単開閉が可能です。毎日の事なので非常に便利です♪

  • ウレタンの吹付け断熱

    ウレタンの吹付け断熱

    断熱性能の高さはもちろん、発泡することにより現場の形状にぴったりと密着し気密性が高く、自己接着力により断熱性能を維持します。

  • 省エネ性能ラベル

    省エネ性能ラベル

    ZEH Oriented仕様
    ・断熱等性能等級5
    ZEH水準の省エネ住宅はエネルギーの使用量を削減でき、日々の光熱費を抑えることができます。

ACCESS

立地・アクセス

AROUND

周辺環境

  • 金沢市立三和小学校

    金沢市立三和小学校

    1100m(徒歩14分)

  • 金沢市立西南部中学校

    金沢市立西南部中学校

    1500m(徒歩19分)

  • 上荒屋福祉会こまどりこども園

    上荒屋福祉会こまどりこども園

    500m(徒歩7分)

  • 矢木保育所

    矢木保育所

    600m(徒歩8分)

  • ゲンキー上荒屋店

    ゲンキー上荒屋店

    450m(徒歩6分)

  • ローソン御経塚北店

    ローソン御経塚北店

    450m(徒歩6分)

  • ダイソーヤスサキ御経塚店

    ダイソーヤスサキ御経塚店

    500m(徒歩7分)

  • アークスクエア御経塚

    アークスクエア御経塚

    700m(徒歩9分)

  • SHOPPING買い物施設
    • セブンイレブン金沢矢木2丁目店 …550m(徒歩7分)
  • CONVENIENCE生活便利施設
    • 上荒屋郵便局 …300m(徒歩4分)
    • IRいしかわ野々市駅 …1300m(徒歩17分)

ABOUT

物件概要

住所 金沢市上荒屋2丁目133番2
交通 -
販売価格 3,590万円(税込) 間取り 3LDK+シューズクローク+ファミリークローゼット+ウォークインクローゼット
土地面積 115.11㎡(34.82坪) 建物面積 101.22㎡(30.61坪)
建ぺい率 60% 容積率 200%
接道状況 前面道路:(西側)4.88m、(南側)5.95m/間口:8.18m(隅切部分含む) 土地権利 所有権
都市計画 市街化区域 地目 宅地
構造・工法 木造在来工法2階建 用途地域 第1種中高層住居専用地域
電気 北陸電力(他の小売電力事業者の選択可能) 屋根 ガルバリウム鋼板
ガス オール電化の為なし 上水道 市営水道
下水道 公共下水道 取引態様 売主
完成時期 令和8年7月 入居時期 令和8年8月
見学可能時期 令和8年7月 建築確認番号 第IKJC25-0892号
小学校区 三和小学校 中学校区 西南部中学校
その他 -
情報更新日 2026年05月02日 情報更新予定日 2026年06月02日
住所 金沢市上荒屋2丁目133番2
交通 -
販売価格 3,590万円(税込)
間取り 3LDK+シューズクローク+ファミリークローゼット+ウォークインクローゼット
土地面積 115.11㎡(34.82坪)
建物面積 101.22㎡(30.61坪)
建ぺい率 60%
容積率 200%
接道状況 前面道路:(西側)4.88m、(南側)5.95m/間口:8.18m(隅切部分含む)
土地権利 所有権
都市計画 市街化区域
地目 宅地
構造・工法 木造在来工法2階建
用途地域 第1種中高層住居専用地域
電気 北陸電力(他の小売電力事業者の選択可能)
屋根 ガルバリウム鋼板
ガス オール電化の為なし
上水道 市営水道
下水道 公共下水道
取引態様 売主
完成時期 令和8年7月
入居時期 令和8年8月
見学可能
時期
令和8年7月
建築
確認番号
第IKJC25-0892号
小学校区 三和小学校
中学校区 西南部中学校
その他 -
情報
更新日
2026年05月02日
情報更新
予定日
2026年06月02日

同じエリアの他物件もCHECK! 同じエリアの他物件も
CHECK!

  • NEW

    金沢市松村5丁目分譲住宅A棟

    商談中

    金沢市松村5丁目分譲住宅A棟

    令和8年6月完成予定(A棟:画像右側)

    建築中分譲物件 SUSTAINA
    間取り 3LDK+シューズクローク+ウォークインクローゼット+ファミリークローゼット
    学 区 大徳小学校・大徳中学校

    3,690万円

    (月々支払い:-万円〜)

    金沢市松村5丁目191番3

    詳しく見る
  • NEW

    金沢市桂町新築戸建B棟

    金沢市桂町新築戸建B棟

    完成済み分譲物件
    間取り 3LDK+シューズクローク+ウォークインクローゼット
    学 区 ⾦沢市⽴⽊曳野小学校・⾦沢市⽴⾦⽯中学校

    3,480万円

    (月々支払い:-万円〜)

    ⾦沢市桂町ハ22番1

    詳しく見る
  • NEW

    金沢市上荒屋2丁目分譲住宅A棟

    金沢市上荒屋2丁目分譲住宅A棟

    令和8年7月完成予定(A棟:画像左側)

    建築中分譲物件 SUSTAINA
    間取り 3LDK+シューズクローク+ウォークインクローゼット
    学 区 三和小学校・西南部中学校

    3,590万円

    (月々支払い:-万円〜)

    金沢市上荒屋2丁目133番1

    詳しく見る
  • NEW

    金沢市神谷内町分譲住宅B棟

    金沢市神谷内町分譲住宅B棟

    見学予約受付中

    完成済み分譲物件 SUSTAINA
    間取り 3LDK+シューズクローク+ウォークインクローゼット
    学 区 千坂小学校・北鳴中学校

    3,390万円

    (月々支払い:-万円〜)

    金沢市神谷内町93番2

    詳しく見る
  • NEW

    金沢市山科2丁目分譲住宅A棟

    金沢市山科2丁目分譲住宅A棟

    見学予約受付中!

    完成済み分譲物件 SUSTAINA
    間取り 3LDK+シューズクローク+ウォークインクローゼット
    学 区 富樫小学校・高尾台中学校

    3,280万円

    (月々支払い:-万円〜)

    金沢市山科2丁目68番2

    詳しく見る
  • NEW

    金沢市米泉町5丁目新築住宅A棟

    金沢市米泉町5丁目新築住宅A棟

    令和8年7月完成予定

    建築中分譲物件 SUSTAINA
    間取り 3LDK+シューズクローク+ウォークインクローゼット
    学 区 米泉小学校・清泉中学校

    3,290万円

    (月々支払い:-万円〜)

    金沢市米泉町5丁目32番5

    詳しく見る
この物件を見学予約する

お問い合わせフォーム

CONTACT

下記フォームをご入力いただき、
確認するボタンを押してください。

  • 入力

  • 確認

  • 完了

お問い合わせ内容必須
お名前必須
ふりがな必須
ご年齢必須
電話番号必須

※携帯またはご自宅どちらでもかまいません。

メールアドレス必須

※必ず半角英数字でご入力ください。

ご住所必須
来場人数必須

お子様がいらっしゃる
場合、人数と年齢を
教えてください任意
リビングスペースを
どこで知りましたか?必須
来場内容
(ご質問・ご相談等)任意
個人情報について必須

·自動返信メールの後、担当者からのご予約対応のご返信を以って受付完了とさせていただきます。また、弊社定休日や担当者がお休みをいただいている場合は翌営業日以降のご連絡となる場合がございます。
·メールアドレスを登録された方には、自動で確認メールを送信しております。メールアドレスの誤入力、携帯電話のドメイン指定受信の設定などにより確認メールを受信出来ない場合がございます。迷惑メールなどに入っている場合もございますので、再度受信設定をご確認ください。確認メールが届かない場合は、当社からの返信を受信出来ない可能性がございますので、お手数ですが、メール以外の連絡方法を追記の上、再度お問い合わせいただきますようお願い致します。

入力内容を確認する