MENU close

SEARCH

物件検索

金沢市米泉町5丁目新築住宅A棟

【みらいエコ住宅2026事業(35万円)対象】

建築中分譲物件 SUSTAINA
  • 柔らかな質感の大判タイルのモダンさと、木目調の静かな存在感が融合した外観デザインです。

    柔らかな質感の大判タイルのモダンさと、木目調の静かな存在感が融合した外観デザインです。

  • 限られた住空間を効果的に広く感じるように、オープン階段を採用しました。視線が抜け、LDK全体に心地よい開放感をもたらし、吹抜からの間接光も遮ることなく空間を照らしてくれます。

    限られた住空間を効果的に広く感じるように、オープン階段を採用しました。視線が抜け、LDK全体に心地よい開放感をもたらし、吹抜からの間接光も遮ることなく空間を照らしてくれます。

  • LDKは17帖で、天井高も2.5mのため圧迫感なく過ごせます。さらに吹抜があることで、帖数以上の開放感を感じられます。北向きでも吹抜のハイサッシから安定的な間接光でLDK全体が明るい空間になります。

    LDKは17帖で、天井高も2.5mのため圧迫感なく過ごせます。さらに吹抜があることで、帖数以上の開放感を感じられます。北向きでも吹抜のハイサッシから安定的な間接光でLDK全体が明るい空間になります。

  • 敷地全体(北側から撮影)

    敷地全体(北側から撮影)

  • 敷地全体(北西側から撮影)

    敷地全体(北西側から撮影)

  • 北側前面道路(東側から撮影)幅員:4.92m

    北側前面道路(東側から撮影)幅員:4.92m

  • 北側前面道路(西側から撮影)幅員:4.92m

    北側前面道路(西側から撮影)幅員:4.92m

  • 断熱性能:等級5(ZEH基準を満たす省エネ仕様)

    断熱性能:等級5(ZEH基準を満たす省エネ仕様)

  • 耐震性能:等級3相当(建築基準法の1.5倍の耐震性能)

    耐震性能:等級3相当(建築基準法の1.5倍の耐震性能)

  • 柔らかな質感の大判タイルのモダンさと、木目調の静かな存在感が融合した外観デザインです。
  • 限られた住空間を効果的に広く感じるように、オープン階段を採用しました。視線が抜け、LDK全体に心地よい開放感をもたらし、吹抜からの間接光も遮ることなく空間を照らしてくれます。
  • LDKは17帖で、天井高も2.5mのため圧迫感なく過ごせます。さらに吹抜があることで、帖数以上の開放感を感じられます。北向きでも吹抜のハイサッシから安定的な間接光でLDK全体が明るい空間になります。
  • 敷地全体(北側から撮影)
  • 敷地全体(北西側から撮影)
  • 北側前面道路(東側から撮影)幅員:4.92m
  • 北側前面道路(西側から撮影)幅員:4.92m
  • 断熱性能:等級5(ZEH基準を満たす省エネ仕様)
  • 耐震性能:等級3相当(建築基準法の1.5倍の耐震性能)

金沢市米泉町5丁目新築住宅A棟

【みらいエコ住宅2026事業(35万円)対象】

建築中分譲物件 SUSTAINA
住所 金沢市米泉町5丁目32番5
学区 米泉小学校/清泉中学校
アクセス -
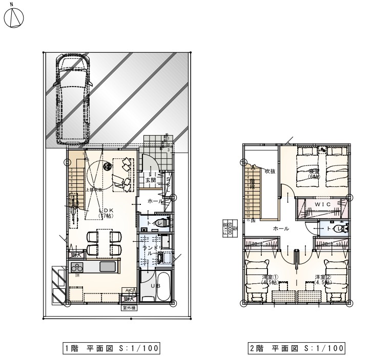
間取り 3LDK+シューズクローク+ウォークインクローゼット
駐車スペース 3台
販売価格 3,290万円

POINT POINTポイント

米泉小学校区で公共交通機関を利用しやすい”米泉町5丁目”に新築住宅が誕生します。
西金沢駅まで徒歩圏内、米泉小学校まで徒歩6分で通勤・通学に便利なエリアです。
国道8号線にもまちなかにもアクセスしやすく、日々の通勤・通学・お出かけにも便利でバランスの取れた立地が魅力です♪

外観デザインは、柔らかな質感の大判タイルのモダンさと、木目調の静かな存在感が融合した外壁デザインです。

間取りは3LDK。17帖のLDKは高天井(天井高2.5m)がもたらす伸びやかな空間が魅力で、さらに吹抜設計により帖数以上の広がりと開放感を感じられます。北向きの土地でも吹抜からの間接光でLDK全体が明るい空間になります。
限られた住空間を効果的に広く感じるようにオープン階段を採用し、視線が抜けて開放感づくりとなっています。
シューズクローク横にコート掛けを設け、外出時も帰宅時も使いやすく、お子様の幼稚園のカバンなどもすぐに掛けておけるので便利です。
敷地内は車3台分の駐車スペースですが、敷地内に電柱があるため車種によっては2台の駐車となります。
閑静な街並みと利便性のバランスに優れた立地と、暮らしに寄り添う設計で、家時間がいっそう豊かになる住まいです。

金沢市内で注文住宅を建てる場合には、5000万円以上は当然必要です。借入5000万円の場合は月々114,951円(3年固定、金利0.50%の場合)となります。当社の分譲住宅であれば3500万円程になり、借入3500万円の場合は月々80,466円で月々の支払いも抑える事ができます。また、分譲建売住宅の良さは立地条件が良く、将来的に資産として運用しやすいのが大きなメリットです。樹脂サッシ標準採用、ウレタン吹付断熱による高気密・高断熱住宅、ZEH基準の高い省エネ性能、耐震等級3相当の性能も兼ね備え、無理しない価格帯で快適な暮らしをご提供します。

■住宅性能
 断熱性能:等級5(ZEH基準を満たす省エネ仕様)
 耐震性能:等級3相当(建築基準法の1.5倍の耐震性能)

■標準仕様
 LDKエアコン付き、照明器具付き

PLAN

間取図

【3LDK+シューズクローク+ウォークインクローゼット】

■ 限られた住空間を効果的に広く感じ、LDK全体に心地よい開放感をもたらす【オープン階段】
■ 吹抜があることで明るく開放的なLDKになり、帖数以上の広がりを感じる【吹抜設計】
■ 樹脂フレームとLow-E複層ガラスで国内最高レベルの断熱性能を実現した【高性能樹脂サッシAPW330】
■ ウィルス、菌、汚れ、匂いを除去するエアーウォッシュ機能付きの【エアーウォッシュフローリング】
■ 大地震が来ても安心して住み続けられる強さと安心を備えた住まいを実現【耐震等級3相当】
■ 玄関ドアのノブに触れるだけで簡単開閉が可能な【ポケットキー】

EQUIPMENT

設備・仕様

  • タカラスタンダード オフェリア(※画像は建築実例です)

    タカラスタンダード オフェリア(※画像は建築実例です)

    ・水なし両面焼きグリル付きでお手入れも◎【IHクッキングヒーター】
    ・ストレスフリーな操作性で節水効果も抜群【浄水器内蔵タッチレス水栓】
    ・大皿も入る大容量【食器洗い乾燥機(深型)】
    ・引出を閉める時に静かでスムーズ!調理効率も向上【ソフトクロージング機能】
    ・壁もレンジフードも収納底板もカンタンお手入れで長持ち【高品位ホーロー】

  • タカラスタンダード リラクシア(※画像は建築実例です)

    タカラスタンダード リラクシア(※画像は建築実例です)

    ・暖房に湿気カビ対策に一年中大活躍【浴室暖房乾燥機】
    ・お手入れ簡単で清潔&傷つきにくく汚れにくい【ホーロークリーン浴室パネル】
    ・浴室全体を保温材で完全防備【パーフェクト保温】
    ・磁器タイルでお手入れ簡単【キープクリーンフロア】
    ・震度6強相当の振動にも負けない【フレーム架台】

  • Panasonic シーライン(※画像は建築実例です)

    Panasonic シーライン(※画像は建築実例です)

    ・ヒーターを使わないから電気代ゼロ【くもりシャット!】
    ・どの高さでもしっかり照らす【ツインラインLED】
    ・魅せる収納でスタイリッシュに【フロートオープンタイプ】

  • Panasonic アラウーノ Z160シリーズ(※画像は建築実例です)

    Panasonic アラウーノ Z160シリーズ(※画像は建築実例です)

    ・センサーが検知して自動で便器を洗浄【自動洗浄機能】
    ・流すたび泡と水流でしっかりお掃除【激落ちバブル洗浄機能】
    ・汚れが付きにくく落ちやすい【スゴピカ素材】
    ・使いやすくトイレ内を清潔に保てる【独立手洗器】

  • Panasonic アラウーノV(※画像は建築実例です)

    Panasonic アラウーノV(※画像は建築実例です)

    ・洗浄力と節水の両立を実現【3Dツイスター水流】
    ・汚れが付きにくく落ちやすい【スゴピカ素材】
    ・手がさっと届く傾斜したボールでスムーズに手洗い【手洗器付き】

  • 高性能樹脂サッシAPW330

    高性能樹脂サッシAPW330

    樹脂フレームとLow-E複層ガラスで国内最高レベルの断熱性を実現しています。熱の出入りを抑え、快適な室内環境を保てます。

  • ポケットキー

    ポケットキー

    ドアノブに触れるだけで簡単開閉が可能です。毎日の事なので非常に便利です♪

  • ウレタンの吹付け断熱

    ウレタンの吹付け断熱

    断熱性能の高さはもちろん、発泡することにより現場の形状にぴったりと密着し気密性が高く、自己接着力により断熱性能を維持します。

  • 省エネ性能ラベル

    省エネ性能ラベル

    ZEH Oriented仕様
    ・一次エネルギー消費量等級3
    ・断熱等性能等級5
    ZEH水準の省エネ住宅はエネルギーの使用量を削減でき、日々の光熱費を抑えることができます。

ACCESS

立地・アクセス

AROUND

周辺環境

  • 伏見かわい幼稚園

    伏見かわい幼稚園

    120m(徒歩2分)

  • 金沢市立米泉小学校

    金沢市立米泉小学校

    450m(徒歩6分)

  • 金沢市立清泉中学校

    金沢市立清泉中学校

    1300m(徒歩17分)

  • セブンイレブン米泉町8丁目店

    セブンイレブン米泉町8丁目店

    400m(徒歩5分)

  • ローソン金沢米泉店

    ローソン金沢米泉店

    640m(徒歩8分)

  • クスリのアオキ米泉店

    クスリのアオキ米泉店

    400m(徒歩5分)

  • はら内科医院

    はら内科医院

    160m(徒歩2分)

  • 大阪屋ショップ西泉店

    大阪屋ショップ西泉店

    1300m(徒歩17分)

  • SHOPPING買い物施設
    • マルエー押野店 …1200m(徒歩15分)
    • キリン堂押野店 …1300m(徒歩17分)
    • MEGAドン・キホーテ …950m(徒歩12分)
  • CONVENIENCE生活便利施設
    • IR西金沢駅 …850m(徒歩11分)

ABOUT

物件概要

住所 金沢市米泉町5丁目32番5
交通 -
販売価格 3,290万円(税込) 間取り 3LDK+シューズクローク+ウォークインクローゼット
土地面積 104.09㎡(31.48坪) 建物面積 89.21㎡(26.98坪)
建ぺい率 60% 容積率 196%
接道状況 前面道路:(北側)4.92m/間口:7.60m 土地権利 所有権
都市計画 市街化区域 地目 宅地
構造・工法 木造在来工法2階建 用途地域 第1種住居地域
電気 北陸電力(他の小売電力事業者の選択可能) 屋根 ガルバリウム鋼板
ガス オール電化の為なし 上水道 市営水道
下水道 公共下水道 取引態様 売主
完成時期 令和8年7月 入居時期 令和8年8月
見学可能時期 令和8年7月 建築確認番号 第IKJC25-0944号
小学校区 米泉小学校 中学校区 清泉中学校
その他 -
情報更新日 2026年05月28日 情報更新予定日 2026年06月28日
住所 金沢市米泉町5丁目32番5
交通 -
販売価格 3,290万円(税込)
間取り 3LDK+シューズクローク+ウォークインクローゼット
土地面積 104.09㎡(31.48坪)
建物面積 89.21㎡(26.98坪)
建ぺい率 60%
容積率 196%
接道状況 前面道路:(北側)4.92m/間口:7.60m
土地権利 所有権
都市計画 市街化区域
地目 宅地
構造・工法 木造在来工法2階建
用途地域 第1種住居地域
電気 北陸電力(他の小売電力事業者の選択可能)
屋根 ガルバリウム鋼板
ガス オール電化の為なし
上水道 市営水道
下水道 公共下水道
取引態様 売主
完成時期 令和8年7月
入居時期 令和8年8月
見学可能
時期
令和8年7月
建築
確認番号
第IKJC25-0944号
小学校区 米泉小学校
中学校区 清泉中学校
その他 -
情報
更新日
2026年05月28日
情報更新
予定日
2026年06月28日

同じエリアの他物件もCHECK! 同じエリアの他物件も
CHECK!

この物件を見学予約する

お問い合わせフォーム

CONTACT

下記フォームをご入力いただき、
確認するボタンを押してください。

  • 入力

  • 確認

  • 完了

お問い合わせ内容必須
お名前必須
ふりがな必須
ご年齢必須
電話番号必須

※携帯またはご自宅どちらでもかまいません。

メールアドレス必須

※必ず半角英数字でご入力ください。

ご住所必須
来場人数必須

お子様がいらっしゃる
場合、人数と年齢を
教えてください任意
リビングスペースを
どこで知りましたか?必須
来場内容
(ご質問・ご相談等)任意
個人情報について必須

·自動返信メールの後、担当者からのご予約対応のご返信を以って受付完了とさせていただきます。また、弊社定休日や担当者がお休みをいただいている場合は翌営業日以降のご連絡となる場合がございます。
·メールアドレスを登録された方には、自動で確認メールを送信しております。メールアドレスの誤入力、携帯電話のドメイン指定受信の設定などにより確認メールを受信出来ない場合がございます。迷惑メールなどに入っている場合もございますので、再度受信設定をご確認ください。確認メールが届かない場合は、当社からの返信を受信出来ない可能性がございますので、お手数ですが、メール以外の連絡方法を追記の上、再度お問い合わせいただきますようお願い致します。

入力内容を確認する