NEWS
新着情報
【金沢市山科2丁目AB棟】工事進捗状況 ※確認前
2026.01.23
こんにちは! 金沢本社です。
いつも弊社HPをご覧いただきありがとうございます。
本日は足場が解体され外観がお披露目になった 【金沢市山科2丁目分譲住宅AB棟】 の最新情報をお届けします!
■ 外観がお披露目になりました!

2棟とも縦長な窓がスタイリッシュな印象を与えるシンプルモダンな外観です。
軒裏には杉板をあしらい、シンプルな中にも温かみを感じる飽きの来ないデザインとなっております。

【A棟】小幅の板を重ね張りしたような外壁をベースに柔らかなグレイッシュの吹付とシャープなハイサッシが映える上質なモダンデザインに。
※玄関ドアは工事中ドアになります。実際の玄関ドアとは異なります。

【B棟】フラットデザインのブラックカラーの外壁を基調に、吹付材と天然木が上質な素材感を織りなすクールモダンなデザインです。
※玄関ドアは工事中ドアになります。実際の玄関ドアとは異なります。
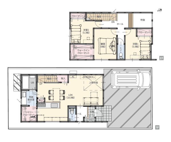
■山科2丁目AB棟の魅力 ①豊富な収納・快適な家事動線を叶えた、永く住みやすい住まい
【A棟】
キッチン横のパントリーや大容量の階段下収納、各個室のクローゼットなど分散型の収納もモノがしっかりと仕舞えて便利です。
必要な場所に必要な収納があることで、片付けの手間が減り、居室の広さをそのまま体感できます。
日々の送り迎えや週末の買い出し、来客の多い日も動線にも余裕が生まれます。

【B棟】
ランドリー・サンルームに隣接するファミリークローゼットを設け、1階で洗う・干す・仕舞うが完結する家事ラクな動線です。
家族と並んで使える幅広の洗面カウンターは、混雑時のストレスがなく快適に身支度ができます。
また、回遊できる動線は家事の負担を減らし、永く快適に住み続けられる住まいです。

■山科2丁目AB棟の魅力②
金沢外環状道路にアクセスしやすく、周辺の商業施設も充実しています。
冨樫中央こども園まで徒歩5分以内と、通学も安心です。
大乗寺丘陵公園も近く、お子様と安心して暮らせる人気のエリアです。
現在は外構工事がスタートしており、3月中旬に外構含め完成する予定となっております。
内見の予約もスタートしております!
まだまだ寒い季節にもなりますので、ぜひ内見で物件の暖かさ・高性能住宅の快適さをご体感ください。
↓物件の詳細はこちらから↓
■ その他物件の詳しい情報はこちらから!
【山科2丁目分譲住宅】以外に会員様限定公開の物件も多数ございます!
無料の会員登録をいただけると、弊社の最新情報として
・分譲予定地の先取り情報
・一般公開前の物件情報の閲覧
など、エリアを絞って住まいを検討されている方にうれしい情報が先取りできます!
最新情報は随時更新していますので、ぜひチェックしてみてください!