NEWS
新着情報
【内灘町向陽台1丁目AC棟】工事進捗状況 ※確認前
2026.01.23
こんにちは! 金沢本社です。
いつも弊社HPをご覧いただきありがとうございます。
本日は無事上棟を終えた 【内灘町向陽台分譲住宅AC棟】 の最新情報をお届けします!
(※B棟は商談中、ご契約予定です)
■ 上棟が完了しました!




いよいよ建物の形が現れ、臨場感と迫力を感じます!
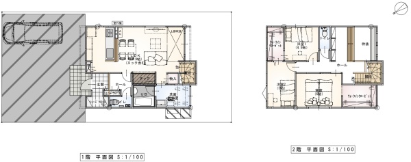
■向陽台AC棟の魅力 ①生活を豊かにする間取り
【A棟】
こぢんまりとした居心地の良い空間”ヌック”をLDK横に設け、読書などの趣味や子供の遊び場などに活きる、魅力的な空間です。
洗面脱衣室を3帖と広く設け、洗濯物が干しやすいレイアウトになっています。
南向きに設けられているため、天気の良い日は室内干しでも洗濯物が乾きやすいです。
また収納スペースも豊富で、玄関に設けたシューズクロークはしっかりとしたスペースを確保し
各所に設けた収納スペースによりライフスタイルに合わせ片付けしやすい住まいとなっております。

【C棟】
LDKをつなぐ長いベンチカウンターはダイニングチェアとして活用したり、読書したりと多用途性が高く
それぞれ好きな場所で好きな時間を過ごせるのが魅力です。
独立した洗面化粧台は来客も使いやすく、家族間でも入浴時に気兼ねなく使えるのが魅力のひとつです。
洗面化粧台はアイカ工業のスマートサニタリーを採用し、ホテルライクなデザインと機能性を兼ね備えています。

■向陽台AC棟の魅力②
のと里山海道にアクセスしやすく、内灘駅まで徒歩圏内の便利なエリアです。
向陽台保育園や清湖小学校まで徒歩5分以内で、向陽台公園も近くお子様と安心して暮らせるエリアです。
北向きの土地でも南側は建物が建つ心配がないので、たっぷりと光を室内に採りこめるのも魅力のひとつです。
現在は大工工事がスタートしており、春ごろ(4月下旬)に建物が完成する予定となっております。
もちろん、完成前のお問合せ(物件情報の詳細の案内や、設備・仕様のご説明など)も大歓迎です!
↓物件の詳細はこちらから↓
■ その他物件の詳しい情報はこちらから!
【内灘町向陽台】以外に会員様限定公開の物件も多数ございます!
無料の会員登録をいただけると、弊社の最新情報として
・分譲予定地の先取り情報
・一般公開前の物件情報の閲覧
など、エリアを絞って住まいを検討されている方にうれしい情報が先取りできます!
最新情報は随時更新していますので、ぜひチェックしてみてください!