MENU close

SEARCH

物件検索

内灘町向陽台1丁目分譲住宅A棟

令和8年5月完成予定(A棟:画像左側)

建築中分譲物件 SUSTAINA
  • (A棟:画像左側)小幅の板を重ね張りしたような意匠の外壁を基調に木目調のアクセントが映える外観デザインです。

    (A棟:画像左側)小幅の板を重ね張りしたような意匠の外壁を基調に木目調のアクセントが映える外観デザインです。

  • LDKは17.9帖で、天井高も2.5mのため圧迫感なく過ごせます。さらに吹抜があることで、帖数以上の開放感を感じられます。

    LDKは17.9帖で、天井高も2.5mのため圧迫感なく過ごせます。さらに吹抜があることで、帖数以上の開放感を感じられます。

  • ヌックとは、スコットランドのイングル・ヌーク(暖炉の側方の腰掛の意)が由来で、こぢんまりした隠れ家のような居心地の良い空間の事です。リビング横にこもれる空間を設計し読書などの趣味を楽しめます♪

    ヌックとは、スコットランドのイングル・ヌーク(暖炉の側方の腰掛の意)が由来で、こぢんまりした隠れ家のような居心地の良い空間の事です。リビング横にこもれる空間を設計し読書などの趣味を楽しめます♪

  • 敷地全体(北東側から撮影)

    敷地全体(北東側から撮影)

  • 敷地全体(北西側から撮影)

    敷地全体(北西側から撮影)

  • A棟予定 敷地全体(北側から撮影)

    A棟予定 敷地全体(北側から撮影)

  • 北側前面道路(東側から撮影)幅員:6.0m

    北側前面道路(東側から撮影)幅員:6.0m

  • 北側前面道路(西側から撮影)幅員:6.0m

    北側前面道路(西側から撮影)幅員:6.0m

  • 敷地全体(南西側から撮影)

    敷地全体(南西側から撮影)

  • 南側歩道(西側から撮影)

    南側歩道(西側から撮影)

  • 南側歩道(東側から撮影)

    南側歩道(東側から撮影)

  • (A棟:画像左側)小幅の板を重ね張りしたような意匠の外壁を基調に木目調のアクセントが映える外観デザインです。
  • LDKは17.9帖で、天井高も2.5mのため圧迫感なく過ごせます。さらに吹抜があることで、帖数以上の開放感を感じられます。
  • ヌックとは、スコットランドのイングル・ヌーク(暖炉の側方の腰掛の意)が由来で、こぢんまりした隠れ家のような居心地の良い空間の事です。リビング横にこもれる空間を設計し読書などの趣味を楽しめます♪
  • 敷地全体(北東側から撮影)
  • 敷地全体(北西側から撮影)
  • A棟予定 敷地全体(北側から撮影)
  • 北側前面道路(東側から撮影)幅員:6.0m
  • 北側前面道路(西側から撮影)幅員:6.0m
  • 敷地全体(南西側から撮影)
  • 南側歩道(西側から撮影)
  • 南側歩道(東側から撮影)

内灘町向陽台1丁目分譲住宅A棟

令和8年5月完成予定(A棟:画像左側)

建築中分譲物件 SUSTAINA
住所 河北郡内灘町字向陽台1丁目240番1
学区 清湖小学校/内灘中学校
アクセス -
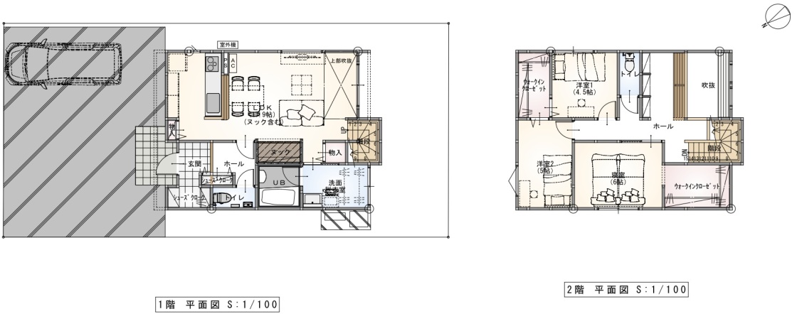
間取り 3LDK+シューズクローク+ウォークインクローゼット+ヌック
駐車スペース 3台
販売価格 3,360万円

POINT POINTポイント

河北郡内灘町字向陽台1丁目に誕生する3棟の分譲住宅。
のと里山海道にアクセスしやすく、内灘駅まで徒歩圏内の便利なエリアです。向陽台保育園や清湖小学校まで徒歩5分以内で、向陽台公園も近くお子様と安心して暮らせるエリアです。
北向きの土地でも南側は建物が建つ心配がないので、たっぷりと光を室内に採りこめるのも魅力のひとつです。

外観デザインは、小幅の板を重ね張りしたような意匠の外壁を基調に、木目調のアクセントが映える上質なデザインです。

間取りは3LDK。17.9帖のLDKは高天井(天井高2.5m)がもたらす伸びやかな空間が魅力で、さらに吹抜設計により帖数以上の広がりと開放感を感じられます。
こぢんまりとした居心地の良い空間”ヌック”をLDK横に設計し、読書などの趣味に興じたりと、こもれる空間でくつろぐのもいいかと思います。
洗面脱衣室を3帖と広く設け、洗濯物が干しやすいレイアウトになっています。さらに南向きに設けられているため、天気の良い日は室内干しでも洗濯物が乾きやすいです。

敷地内は車3台分の駐車スペースを確保しており、2台並列+来客用など柔軟な使い分けが可能です。敷地も47坪とゆったりとた広さがあり、南側にプライベートな庭を作る事もできます。
閑静な街並みと利便性のバランスに優れた立地と、暮らしに寄り添う設計で、家時間がいっそう豊かになる住まいです。

向陽台エリアで注文住宅を建てる場合には、4500万円以上は当然必要です。借入4500万円の場合は月々101,465円(3年固定、金利0.40%の場合)となります。当社の分譲住宅であれば3500万円程になり、借入3500万円の場合は月々78,917円で月々の支払いも抑える事ができます。また、分譲建売住宅の良さは立地条件が良く、将来的に資産として運用しやすいのが大きなメリットです。樹脂サッシ標準採用、ウレタン吹付断熱による高気密・高断熱住宅、ZEH基準の高い省エネ性能、耐震等級3相当の性能も兼ね備え、無理しない価格帯で快適な暮らしをご提供します。

■住宅性能
 断熱性能:等級5(ZEH基準を満たす省エネ仕様)
 耐震性能:等級3相当(建築基準法の1.5倍の耐震性能)

■標準仕様
 LDKエアコン付き、照明器具付き

PLAN

間取図

【3LDK+シューズクローク+ウォークインクローゼット+ヌック】

■ リビング横のこもれる空間で読書などの趣味を楽しめる【小上がりヌック】
■ 吹抜があることで明るく開放的なLDKになり、帖数以上の広がりを感じる【吹抜設計】
■ 樹脂フレームとLow-E複層ガラスで国内最高レベルの断熱性能を実現した【高性能樹脂サッシAPW330】
■ ウィルス、菌、汚れ、匂いを除去するエアーウォッシュ機能付きの【エアーウォッシュフローリング】
■ 大地震が来ても安心して住み続けられる強さと安心を備えた住まいを実現【耐震等級3相当】
■ 玄関ドアのノブに触れるだけで簡単開閉が可能な【ポケットキー】

EQUIPMENT

設備・仕様

  • タカラスタンダード オフェリア

    タカラスタンダード オフェリア

    ・浄水器内蔵タッチレス水栓
    ・食器洗い乾燥機(深型)
    ・2口IHヒーター+1口クイックラジエントヒーター
    ・ホーロークリーンレンジフード

  • タカラスタンダード リラクシアPタイプ

    タカラスタンダード リラクシアPタイプ

    ・1616サイズ
    ・浴室暖房乾燥機
    ・キープクリーンフロア
    ・開きドア仕様
    ・マグネットショートミラー
    (※ミラーはマグネットのため画像には反映されていません)

  • Panasonic 洗面ドレッシング シーライン

    Panasonic 洗面ドレッシング シーライン

    ・ツインラインLED三面鏡
    ・マルチシングルレバーシャワー
    ・フロートオープンタイプのキャビネット

  • Panasonic アラウーノ Z160シリーズ(1Fトイレ)

    Panasonic アラウーノ Z160シリーズ(1Fトイレ)

    ・自動洗浄機能
    ・激落ちバブル洗浄機能
    ・ハネ、タレ、モレのトリプル汚れガード設計

  • Panasonic アラウーノ V(2Fトイレ)

    Panasonic アラウーノ V(2Fトイレ)

    ・ステンレスノズル
    ・スゴピカ素材
    ・手洗い付

  • 高性能樹脂サッシAPW330

    高性能樹脂サッシAPW330

    樹脂フレームとLow-E複層ガラスで国内最高レベルの断熱性を実現しています。熱の出入りを抑え、快適な室内環境を保てます。

  • ポケットキー

    ポケットキー

    ドアノブに触れるだけで簡単開閉が可能です。毎日の事なので非常に便利です♪

  • ウレタンの吹付け断熱

    ウレタンの吹付け断熱

    断熱性能の高さはもちろん、発泡することにより現場の形状にぴったりと密着し気密性が高く、自己接着力により断熱性能を維持します。

ACCESS

立地・アクセス

AROUND

周辺環境

  • 内灘町立清湖小学校

    内灘町立清湖小学校

    350m(徒歩5分)

  • 内灘町立内灘中学校

    内灘町立内灘中学校

    1400m(徒歩18分)

  • 向陽台保育園

    向陽台保育園

    260m(徒歩4分)

  • 誠美幼稚園

    誠美幼稚園

    550m(徒歩7分)

  • ファミリーマート内灘向陽台店

    ファミリーマート内灘向陽台店

    270m(徒歩4分)

  • マルエー内灘店

    マルエー内灘店

    400m(徒歩5分)

  • 内灘町子育て支援センター

    内灘町子育て支援センター

    500m(徒歩7分)

  • 向陽台公園

    向陽台公園

    270m(徒歩4分)

  • SHOPPING買い物施設
    • クスリのアオキ 鶴ケ丘店 …1000m(徒歩13分)
  • HOSPITAL病院
    • 紺井医院 …600m(徒歩8分)
    • 金原皮膚科医院 …850m(徒歩11分)
  • CONVENIENCE生活便利施設
    • 北陸鉄道浅野川線内灘駅 …900m(徒歩12分)

ABOUT

物件概要

住所 河北郡内灘町字向陽台1丁目240番1
交通 -
販売価格 3,360万円(税込) 間取り 3LDK+シューズクローク+ウォークインクローゼット+ヌック
土地面積 155.7㎡(47.09坪) 建物面積 109.91㎡(33.24坪)
建ぺい率 60% 容積率 200%
接道状況 前面道路:(北側)6.0m 間口:8.65m  土地権利 所有権
都市計画 市街化区域 地目 宅地
構造・工法 木造在来工法2階建 用途地域 準住居地域
電気 北陸電力(他の小売電力事業者の選択可能) 屋根 ガルバリウム鋼板
ガス オール電化の為なし 上水道 市営水道
下水道 公共下水道 取引態様 売主
完成時期 令和8年5月 入居時期 令和8年6月
見学可能時期 令和8年5月 建築確認番号 第IKJC25-0672号
小学校区 清湖小学校 中学校区 内灘中学校
その他 上下水道負担金770,000円(税込)別途
情報更新日 2026年03月13日 情報更新予定日 2026年04月13日
住所 河北郡内灘町字向陽台1丁目240番1
交通 -
販売価格 3,360万円(税込)
間取り 3LDK+シューズクローク+ウォークインクローゼット+ヌック
土地面積 155.7㎡(47.09坪)
建物面積 109.91㎡(33.24坪)
建ぺい率 60%
容積率 200%
接道状況 前面道路:(北側)6.0m 間口:8.65m 
土地権利 所有権
都市計画 市街化区域
地目 宅地
構造・工法 木造在来工法2階建
用途地域 準住居地域
電気 北陸電力(他の小売電力事業者の選択可能)
屋根 ガルバリウム鋼板
ガス オール電化の為なし
上水道 市営水道
下水道 公共下水道
取引態様 売主
完成時期 令和8年5月
入居時期 令和8年6月
見学可能
時期
令和8年5月
建築
確認番号
第IKJC25-0672号
小学校区 清湖小学校
中学校区 内灘中学校
その他 上下水道負担金770,000円(税込)別途
情報
更新日
2026年03月13日
情報更新
予定日
2026年04月13日
この物件を見学予約する

お問い合わせフォーム

CONTACT

下記フォームをご入力いただき、
確認するボタンを押してください。

  • 入力

  • 確認

  • 完了

お問い合わせ内容必須
お名前必須
ふりがな必須
ご年齢必須
電話番号必須

※携帯またはご自宅どちらでもかまいません。

メールアドレス必須

※必ず半角英数字でご入力ください。

ご住所必須
来場人数必須

お子様がいらっしゃる
場合、人数と年齢を
教えてください任意
リビングスペースを
どこで知りましたか?必須
来場内容
(ご質問・ご相談等)任意
個人情報について必須

·自動返信メールの後、担当者からのご予約対応のご返信を以って受付完了とさせていただきます。また、弊社定休日や担当者がお休みをいただいている場合は翌営業日以降のご連絡となる場合がございます。
·メールアドレスを登録された方には、自動で確認メールを送信しております。メールアドレスの誤入力、携帯電話のドメイン指定受信の設定などにより確認メールを受信出来ない場合がございます。迷惑メールなどに入っている場合もございますので、再度受信設定をご確認ください。確認メールが届かない場合は、当社からの返信を受信出来ない可能性がございますので、お手数ですが、メール以外の連絡方法を追記の上、再度お問い合わせいただきますようお願い致します。

入力内容を確認する