MENU close

SEARCH

物件検索

河北郡津幡町新築住宅A棟

見学予約受付中【子育てグリーン住宅支援事業対象40万円予約済のため、ご契約者で補助金対象条件に当てはまる方は補助金の交付を受けれます。】※予算上限額に達した場合は終了します。

完成済み分譲物件 SUSTAINA
  • LDKは18.8帖の大空間で、天井高も2.5mのため圧迫感なく過ごせます。さらに吹抜があることで、LDKが明るく開放的な空間になり、帖数以上の開放感を感じられます。

    商談中

    LDKは18.8帖の大空間で、天井高も2.5mのため圧迫感なく過ごせます。さらに吹抜があることで、LDKが明るく開放的な空間になり、帖数以上の開放感を感じられます。

  • リビング入口付近に小上がりのヌックを設計し、こぢんまりとした居心地のいい空間でホッと一息できます。

    商談中

    リビング入口付近に小上がりのヌックを設計し、こぢんまりとした居心地のいい空間でホッと一息できます。

  • 玄関から2つの動線でリビングへ入ることができ、家族が帰宅した際にもリビングを通らずに洗面所へ行くことができる便利な生活動線です♪

    商談中

    玄関から2つの動線でリビングへ入ることができ、家族が帰宅した際にもリビングを通らずに洗面所へ行くことができる便利な生活動線です♪

  • エッジの効いた小幅なストライプのブラックカラーを基調に、正面のグレーの吹付が素材感を感じるクールモダンなデザインです。

    商談中

    エッジの効いた小幅なストライプのブラックカラーを基調に、正面のグレーの吹付が素材感を感じるクールモダンなデザインです。

  • 家族の気配を感じながらも自分の時間を過ごせる、絶妙な距離感で用途は様々な小上がりヌックのある生活はいかがですか♪

    商談中

    家族の気配を感じながらも自分の時間を過ごせる、絶妙な距離感で用途は様々な小上がりヌックのある生活はいかがですか♪

  • 飾る・置く・作業する。暮らしに合わせて使えるダイニングカウンターです♪

    商談中

    飾る・置く・作業する。暮らしに合わせて使えるダイニングカウンターです♪

  • キッチン横にも便利なパントリー収納を完備しています♪

    商談中

    キッチン横にも便利なパントリー収納を完備しています♪

  • 3.25帖の洗面脱衣所には余裕の広さで毎日を整えるワイド洗面と、うれしい大容量の収納スペースがあります♪

    商談中

    3.25帖の洗面脱衣所には余裕の広さで毎日を整えるワイド洗面と、うれしい大容量の収納スペースがあります♪

  • 玄関には大容量のシューズクローゼットを完備しています♪ 可動棚なので高さのある荷物もスッキリ収納できます♪

    商談中

    玄関には大容量のシューズクローゼットを完備しています♪ 可動棚なので高さのある荷物もスッキリ収納できます♪

  • アクセントクロスが映える落ち着いた空間の寝室は6帖で広々した空間です♪

    商談中

    アクセントクロスが映える落ち着いた空間の寝室は6帖で広々した空間です♪

  • 寝室には3帖の大容量のウォークインクローゼットを完備しています♪

    商談中

    寝室には3帖の大容量のウォークインクローゼットを完備しています♪

  • 吹抜の解放感と家族の気配を感じながら使えるカウンタースペース!

    商談中

    吹抜の解放感と家族の気配を感じながら使えるカウンタースペース!

  • 【ZEH水準住宅】40万円の補助金対象物件です!

    商談中

    【ZEH水準住宅】40万円の補助金対象物件です!

  • 断熱性能:等級5(ZEH基準を満たす省エネ仕様)

    商談中

    断熱性能:等級5(ZEH基準を満たす省エネ仕様)

  • 耐震性能:等級3相当(建築基準法の1.5倍の耐震性能)

    商談中

    耐震性能:等級3相当(建築基準法の1.5倍の耐震性能)

  • LDKは18.8帖の大空間で、天井高も2.5mのため圧迫感なく過ごせます。さらに吹抜があることで、LDKが明るく開放的な空間になり、帖数以上の開放感を感じられます。
  • リビング入口付近に小上がりのヌックを設計し、こぢんまりとした居心地のいい空間でホッと一息できます。
  • 玄関から2つの動線でリビングへ入ることができ、家族が帰宅した際にもリビングを通らずに洗面所へ行くことができる便利な生活動線です♪
  • エッジの効いた小幅なストライプのブラックカラーを基調に、正面のグレーの吹付が素材感を感じるクールモダンなデザインです。
  • 家族の気配を感じながらも自分の時間を過ごせる、絶妙な距離感で用途は様々な小上がりヌックのある生活はいかがですか♪
  • 飾る・置く・作業する。暮らしに合わせて使えるダイニングカウンターです♪
  • キッチン横にも便利なパントリー収納を完備しています♪
  • 3.25帖の洗面脱衣所には余裕の広さで毎日を整えるワイド洗面と、うれしい大容量の収納スペースがあります♪
  • 玄関には大容量のシューズクローゼットを完備しています♪ 可動棚なので高さのある荷物もスッキリ収納できます♪
  • アクセントクロスが映える落ち着いた空間の寝室は6帖で広々した空間です♪
  • 寝室には3帖の大容量のウォークインクローゼットを完備しています♪
  • 吹抜の解放感と家族の気配を感じながら使えるカウンタースペース!
  • 【ZEH水準住宅】40万円の補助金対象物件です!
  • 断熱性能:等級5(ZEH基準を満たす省エネ仕様)
  • 耐震性能:等級3相当(建築基準法の1.5倍の耐震性能)

河北郡津幡町新築住宅A棟

見学予約受付中【子育てグリーン住宅支援事業対象40万円予約済のため、ご契約者で補助金対象条件に当てはまる方は補助金の交付を受けれます。】※予算上限額に達した場合は終了します。

完成済み分譲物件 SUSTAINA
住所 河北郡津幡町字津幡ロ5番2
学区 津幡小学校/津幡中学校
アクセス -
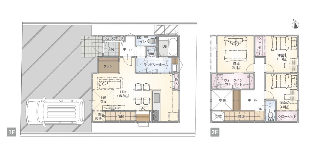
間取り 3LDK+ヌック+シューズクローク+ウォークインクローゼット
駐車スペース 3台
販売価格 3,080万円

POINT POINTポイント

河北郡津幡町に誕生したLDKへ2WAYで入ることができる“ただいま動線”の住まい。

こども園や小学校・中学校が徒歩圏内、子育てに優しいエリア。

外観デザインは、エッジの効いた小幅なストライプのブラックカラーを基調に、正面のグレーの吹付が素材感を感じるクールモダンなデザインです♪

間取りは3LDK。18.8帖のLDKは高天井(天井高2.5m)がもたらす伸びやかな空間が魅力で、さらに吹抜設計により帖数以上の広がりと開放感を感じられます。

リビングに“小上がりヌック”が併設され、小ぢんまりとした隠れ家のような空間で、読書などの趣味に興じたりと普段の生活にほどよい距離感で馴染む、ホッと一息できる空間です。

玄関から2WAYでリビングへ入ることができ、ご家族が帰宅した際にもリビングを通らずに洗面所へ行くことができる便利な生活動線です。帰宅したら洗面台で手を洗い、手洗いうがいが自然と身に付く動線計画です。

間口が9.3mもあり、車3台分の駐車スペースを余裕をもって確保しています。

東側は交通アクセスの良い大通りですが、西側は落ち着いた住宅街に面した2方向道路。

閑静な街並みと利便性のバランスに優れた立地と、暮らしに寄り添う設計で、家時間がいっそう豊かになる住まいです。

金沢市内で注文住宅を建てる場合には、4500万円以上は当然必要です。借入4500万円の場合は月々101,465円(3年固定、金利0.40%の場合)となります。当社の分譲住宅であれば3200万円程になり、借入3200万円の場合は月々72,153円で月々の支払いも抑える事ができます。また、分譲建売住宅の良さは立地条件が良く、将来的に資産として運用しやすいのが大きなメリットです。樹脂サッシ標準採用、ウレタン吹付断熱による高気密・高断熱住宅、ZEH基準の高い省エネ性能、耐震等級3相当の性能も兼ね備え、無理しない価格帯で快適な暮らしをご提供します。

■住宅性能
 断熱性能:等級5(ZEH基準を満たす省エネ仕様)
 耐震性能:等級3相当(建築基準法の1.5倍の耐震性能)

■補助金関連
 国の「子育てエコホーム支援事業」により最大40万円の補助金利用可(ZEH水準住宅)

■標準仕様
 LDKエアコン付き、照明器具付き

PLAN

間取図

帰宅後はそのままLDKへも、一旦洗面所で手洗いをしてからも、2WAYで入ることができる“ただいま動線”の住まいです。また、LDKには小上がりヌックを併設し、同じ空間でも隠れ家のようにホッと一息できる空間。

■交通アクセスの落ち着いた西側に配置し、子育て世帯にも安心な【細心設計】
■帰宅後、洗面台で手洗いうがいが自然と身に付く動線計画【2WAY動線】
■吹抜から自然光が差し込み圧迫感なく過ごせる【LDK+吹抜設計】
■隠れ家のような居心地の良い空間でホッと一息できる【小上がりヌック】
■樹脂フレームとLow-E複層ガラスで国内最高レベルの断熱性能を実現した【高性能樹脂サッシAPW330】
■大地震が来ても安心して住み続けられる強さと安心を備えた住まい【耐震等級3相当】
■玄関ドアのノブに触れるだけで簡単開閉が可能なポケットキー】

VR

バーチャル見学

EQUIPMENT

設備・仕様

  • Panasonic リビングステーションVスタイル

    Panasonic リビングステーションVスタイル

    ・トリプルワイドIH(グリルなし)
    ・浄水器内蔵タッチレス水栓
    ・食器洗い乾燥機(深型)

  • Panasonic オフローラ

    Panasonic オフローラ

    ・1616サイズ
    ・スゴピカ浴槽、スゴピカ水栓
    ・暖房換気乾燥機
    ・フラットラインLED照明

  • Panasonic 洗面ドレッシング シーライン D530タイプ

    Panasonic 洗面ドレッシング シーライン D530タイプ

    ・マルチシングルレバーシャワー水栓
    ・フロートオープンタイプのキャビネット
    ・使いやすくお手入れも楽なカウンター
    ・ヒーターレスでくもりにくいミラー
    ・ツインラインLED3面鏡

  • Panasonic アラウーノ Z160シリーズ(1Fトイレ)

    Panasonic アラウーノ Z160シリーズ(1Fトイレ)

    ・アラウーノ手洗い付
    ・自動洗浄機能
    ・トリプル汚れガードの便器・便座
    ・劇落ちバブルスパイラル水流でキレイ
    ・お掃除が楽なスキマレス設計
    ・汚れにくいステンレスノズル
    ・節電/節水

  • Panasonic アラウーノ V(2Fトイレ)

    Panasonic アラウーノ V(2Fトイレ)

    ・手洗い付き
    ・3Dツイスター水流で節水
    ・お手入れ簡単!スゴピカ素材の便器
    ・温水洗浄便座 NewアラウーノV専用トワレ 

  • ウレタンの吹付け断熱

    ウレタンの吹付け断熱

    断熱性能の高さはもちろん、発泡することにより現場の形状にぴったりと密着し気密性が高く、自己接着力により断熱性能を維持します。

  • 高性能樹脂サッシAPW330

    高性能樹脂サッシAPW330

    樹脂フレームとLow-E複層ガラスで国内最高レベルの断熱性を実現しています。熱の出入りを抑え、快適な室内環境を保てます。

  • ポケットキー

    ポケットキー

    ドアノブに触れるだけで簡単開閉が可能です。毎日の事なので非常に便利です♪

  • 省エネ性能ラベル

    省エネ性能ラベル

    ZEH Oriented仕様
    ・断熱等性能等級5
    ZEH水準の省エネ住宅はエネルギーの使用量を削減でき、日々の光熱費を抑えることができます。

ACCESS

立地・アクセス

AROUND

周辺環境

  • 実生こども園

    実生こども園

    100m(徒歩2分)

  • 津幡町立津幡小学校

    津幡町立津幡小学校

    400m(徒歩5分)

  • 津幡町立津幡中学校

    津幡町立津幡中学校

    650m(徒歩9分)

  • カジマートみなみ店

    カジマートみなみ店

    250m(徒歩4分)

  • ゲンキー横浜店

    ゲンキー横浜店

    700m(徒歩9分)

  • ファミリーマート津幡加賀爪店

    ファミリーマート津幡加賀爪店

    700m(徒歩9分)

  • 公立河北中央病院

    公立河北中央病院

    80m(徒歩1分)

  • 津幡中央公園

    津幡中央公園

    950m(徒歩12分)

  • CONVENIENCE生活便利施設
    • 北鉄バス 津幡中央バス停 …80m(徒歩1分)
    • JR 七尾線 中津幡駅 …550m(徒歩7分)

ABOUT

物件概要

住所 河北郡津幡町字津幡ロ5番2
交通 -
販売価格 3,080万円(税込) 間取り 3LDK+ヌック+シューズクローク+ウォークインクローゼット
土地面積 140.46㎡(42.48坪) 建物面積 105.54㎡(31.92坪)
建ぺい率 60% 容積率 200%
接道状況 前面道路:(東側)12.45m、(西側) 6.88m 土地権利 所有権
都市計画 非線引区域 地目 宅地
構造・工法 木造在来工法2階建 用途地域 第1種住居地域
電気 北陸電力(他の小売電力事業者の選択可能) 屋根 ガルバリウム鋼板
ガス オール電化の為なし 上水道 市営水道
下水道 公共下水道 取引態様 売主
完成時期 令和8年1月 入居時期 即時
見学可能時期 見学予約受付中 建築確認番号 第IKJC25-0268号
小学校区 津幡小学校 中学校区 津幡中学校
その他 -
情報更新日 2026年05月12日 情報更新予定日 2026年06月12日
住所 河北郡津幡町字津幡ロ5番2
交通 -
販売価格 3,080万円(税込)
間取り 3LDK+ヌック+シューズクローク+ウォークインクローゼット
土地面積 140.46㎡(42.48坪)
建物面積 105.54㎡(31.92坪)
建ぺい率 60%
容積率 200%
接道状況 前面道路:(東側)12.45m、(西側) 6.88m
土地権利 所有権
都市計画 非線引区域
地目 宅地
構造・工法 木造在来工法2階建
用途地域 第1種住居地域
電気 北陸電力(他の小売電力事業者の選択可能)
屋根 ガルバリウム鋼板
ガス オール電化の為なし
上水道 市営水道
下水道 公共下水道
取引態様 売主
完成時期 令和8年1月
入居時期 即時
見学可能
時期
見学予約受付中
建築
確認番号
第IKJC25-0268号
小学校区 津幡小学校
中学校区 津幡中学校
その他 -
情報
更新日
2026年05月12日
情報更新
予定日
2026年06月12日

同じエリアの他物件もCHECK! 同じエリアの他物件も
CHECK!

この物件を見学予約する

お問い合わせフォーム

CONTACT

下記フォームをご入力いただき、
確認するボタンを押してください。

  • 入力

  • 確認

  • 完了

お問い合わせ内容必須
お名前必須
ふりがな必須
ご年齢必須
電話番号必須

※携帯またはご自宅どちらでもかまいません。

メールアドレス必須

※必ず半角英数字でご入力ください。

ご住所必須
来場人数必須

お子様がいらっしゃる
場合、人数と年齢を
教えてください任意
リビングスペースを
どこで知りましたか?必須
来場内容
(ご質問・ご相談等)任意
個人情報について必須

·自動返信メールの後、担当者からのご予約対応のご返信を以って受付完了とさせていただきます。また、弊社定休日や担当者がお休みをいただいている場合は翌営業日以降のご連絡となる場合がございます。
·メールアドレスを登録された方には、自動で確認メールを送信しております。メールアドレスの誤入力、携帯電話のドメイン指定受信の設定などにより確認メールを受信出来ない場合がございます。迷惑メールなどに入っている場合もございますので、再度受信設定をご確認ください。確認メールが届かない場合は、当社からの返信を受信出来ない可能性がございますので、お手数ですが、メール以外の連絡方法を追記の上、再度お問い合わせいただきますようお願い致します。

入力内容を確認する