MENU close

SEARCH

物件検索

春江町江留下宇和江A棟

平屋のような快適性×2階建の機能美。生活の中心を1階に集約したデザイン住宅。

建築中分譲物件 SUSTAINA
  • 【完成予想図】ブラックの外壁に石目タイル調のアクセントが映えるスタイリッシュモダンな外観。街並みに溶け込みながらも、存在感を放つ佇まいです。※外構・植栽はイメージです。

    【完成予想図】ブラックの外壁に石目タイル調のアクセントが映えるスタイリッシュモダンな外観。街並みに溶け込みながらも、存在感を放つ佇まいです。※外構・植栽はイメージです。

  • 【完成予想図】LDK・水廻り・主寝室が1階に集約された間取りで、まるで平屋のような暮らしが可能です。

    【完成予想図】LDK・水廻り・主寝室が1階に集約された間取りで、まるで平屋のような暮らしが可能です。

  • 【完成予想図】キッチン・ダイニングの天井を一段下げることで、空間に緩やかな区切りとアクセントが生まれます。

    【完成予想図】キッチン・ダイニングの天井を一段下げることで、空間に緩やかな区切りとアクセントが生まれます。

  • 【完成予想図】内装は、木目やナチュラルカラーで上品に整えました。

    【完成予想図】内装は、木目やナチュラルカラーで上品に整えました。

  • 【完成予想図】キッチン横にはウォークインタイプのパントリーを配置。食品や調理器具などを仕舞うことができ、キッチン周りがすっきりと片付きます。

    【完成予想図】キッチン横にはウォークインタイプのパントリーを配置。食品や調理器具などを仕舞うことができ、キッチン周りがすっきりと片付きます。

  • 建築中写真(2026.3撮影)

    建築中写真(2026.3撮影)

  • 建築中写真(2026.3撮影)

    建築中写真(2026.3撮影)

  • 建築中写真(2026.3撮影)

    建築中写真(2026.3撮影)

  • 前面道路(2025.8撮影)

    前面道路(2025.8撮影)

  • 耐震等級3相当

    耐震等級3相当

  • みらいエコ住宅2026事業 補助金対象

    みらいエコ住宅2026事業 補助金対象

  • 断熱等性能等級5

    断熱等性能等級5

  • 充実の保証内容&アフターサービス

    充実の保証内容&アフターサービス

  • 緊急駆けつけサービス

    緊急駆けつけサービス

  • 【早期ご成約特典】建物完成前のご成約で、ReFa ULTRA FINE BUBBLE SUIGENをお付けします。

    【早期ご成約特典】建物完成前のご成約で、ReFa ULTRA FINE BUBBLE SUIGENをお付けします。

  • 【完成予想図】ブラックの外壁に石目タイル調のアクセントが映えるスタイリッシュモダンな外観。街並みに溶け込みながらも、存在感を放つ佇まいです。※外構・植栽はイメージです。
  • 【完成予想図】LDK・水廻り・主寝室が1階に集約された間取りで、まるで平屋のような暮らしが可能です。
  • 【完成予想図】キッチン・ダイニングの天井を一段下げることで、空間に緩やかな区切りとアクセントが生まれます。
  • 【完成予想図】内装は、木目やナチュラルカラーで上品に整えました。
  • 【完成予想図】キッチン横にはウォークインタイプのパントリーを配置。食品や調理器具などを仕舞うことができ、キッチン周りがすっきりと片付きます。
  • 建築中写真(2026.3撮影)
  • 建築中写真(2026.3撮影)
  • 建築中写真(2026.3撮影)
  • 前面道路(2025.8撮影)
  • 耐震等級3相当
  • みらいエコ住宅2026事業 補助金対象
  • 断熱等性能等級5
  • 充実の保証内容&アフターサービス
  • 緊急駆けつけサービス
  • 【早期ご成約特典】建物完成前のご成約で、ReFa ULTRA FINE BUBBLE SUIGENをお付けします。

春江町江留下宇和江A棟

平屋のような快適性×2階建の機能美。生活の中心を1階に集約したデザイン住宅。

建築中分譲物件 SUSTAINA
住所 坂井市春江町江留下宇和江5番1
学区 春江小学校(550m)/春江中学校(1400m)
アクセス ハピラインふくい春江駅から900m
間取り 3LDK+パントリー・ランドリールーム・WIC
駐車スペース 3台
販売価格 3,250万円

POINT POINTポイント

春江町江留下宇和江に誕生する、モダンなデザイン住宅。
坂井市の中心部にも近く、春江みどり保育園まで約110mと安心の保育環境に加え、コンビニや銀行、クリニックなど、
日々の暮らしに必要な施設が身近にそろう便利な住環境です。
ハピラインふくい春江駅が徒歩圏内で、通勤や通学にも◎。「住環境の良さ」と「生活のしやすさ」が魅力の立地です。

18.8帖のLDKには、一部下がり天井に間接照明をあしらい、ナチュラルデザインが調和する落ち着いた空間に。
主寝室や水廻りを1階に集約した間取りで、まるで平屋のような暮らしが可能になっています。
さらにパントリーやリビング収納、WICなど収納計画も充実しており、暮らしやすさを高めています。

ご家族のライフステージが変わっても、将来にわたって快適に長く過ごすことができる「平屋風二階建て」の住まいで、新しい生活をはじめませんか?

■住宅性能
 断熱性能:等級5(ZEH基準を満たす省エネ仕様)
 耐震性能:等級3相当(建築基準法の1.5倍の耐震性能)

■保証関連
 建物保証:初期20年保証+最長60年まで延長可能
 地盤保証:20年保証
 住宅設備保証:10年保証
 しろあり保証:10年保証

■補助金関連
 国の「みらいエコ住宅2026事業」により最大35万円の補助金利用可(ZEH水準住宅)

■キャンペーン
 エアコン付き
 早期成約特典 ReFa ULTRA FINE BUBBLE SUIGEN

PLAN

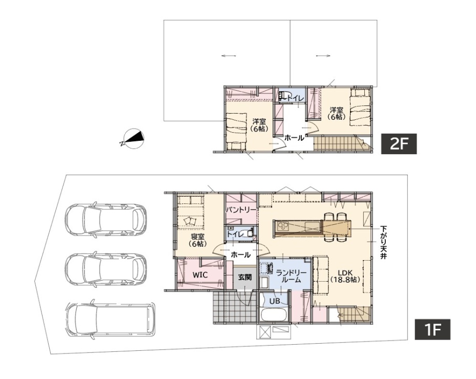
間取図

■ 平屋風の間取り
LDK・水回り・主寝室・クローゼットが1階に集約された間取りで、まるで平屋のような暮らしが可能に。ご家族のライフステージが変わっても、将来にわたって安心して快適に永く過ごすことができます。

■ 下がり天井 × 間接照明
キッチン・ダイニングの天井を一段下げることで、空間に緩やかな区切りとアクセントが生まれます。また、間接照明を仕込むことで、柔らかい光が広がり、スタイリッシュで落ち着いた雰囲気を演出します。

■ 独立パントリー
キッチン横にはウォークインタイプのパントリーを配置。まとめ買いした飲食品や、調理器具や食器なども収納が可能です。キッチンをすっきりと片付けた状態に保つことができ、どこに何があるかも把握しやすくなります。

■ 収納併設のランドリールーム
物干しスペースを備えた大型ランドリールームで洗濯をスムーズに。ランドリールーム内に収納を併設することで、乾いた洗濯物をすぐに仕舞うことができ、家事が最短になります。

EQUIPMENT

設備・仕様

  • PanasonicリビングステーションV-style

    PanasonicリビングステーションV-style

    手前スペース広々!トリプルワイドIH/タッチレス水栓/食器洗い乾燥機(深型タイプ)/お手入れ簡単!スキマレスシンク/静かに閉まるソフトクロージング仕様の収納

  • Panasonic バスルームオフローラ

    Panasonic バスルームオフローラ

    美しいツヤでキレイ長持ち「スゴピカ浴槽」/水垢が残りにくい新素材でできた「スゴピカ水栓」/W水流シャワー/フラットラインLED照明/暖房換気乾燥機

  • Panasonic 洗面ドレッシングシーライン D530タイプ

    Panasonic 洗面ドレッシングシーライン D530タイプ

    マルチシングルレバーシャワー水栓/フロートオープンタイプキャビネット/使いやすくお手入れが楽なカウンター/ヒーターレスでくもりにくいミラー/ツインラインLED3面鏡

  • PanasonicアラウーノZ160シリーズ

    PanasonicアラウーノZ160シリーズ

    アラウーノ手洗い付/自動洗浄機能/トリプル汚れガードの便器・便座/お掃除が楽なスキマレス設計/汚れにくいステンレスノズル/劇落ちスパイラル水流でキレイ

  • PanasonicトイレNewアラウーノV

    PanasonicトイレNewアラウーノV

    手洗い付き/3Dツイスター水流で節水/お手入れ簡単!スゴピカ素材

  • ピタットキー

    ピタットキー

    タグキーを近づけるだけで、サッと施開錠できるから、面倒なカギの操作を省いてスマートに出入りできます。

  • ウレタンの吹き付け断熱

    ウレタンの吹き付け断熱

    断熱性能の高さはもちろん、発泡することにより現場の形状にぴったりと密着し気密性が高く、自己接着力により断熱性能を維持します。

  • 高性能樹脂窓 APW330

    高性能樹脂窓 APW330

    国内最高基準の断熱性で省エネ効果を発揮/樹脂と複層ガラスによるハイレベルな断熱性/熱の出入りを抑え、夏も冬もいつも快適

  • 省エネ性能ラベル

    省エネ性能ラベル

    ZEH水準の省エネ住宅はエネルギーの使用量を削減でき、日々の光熱費を抑えることができます。

ACCESS

立地・アクセス

AROUND

周辺環境

  • 春江みどり保育園

    春江みどり保育園

    110m/徒歩1分

  • 坂井市立春江小学校

    坂井市立春江小学校

    550m/徒歩8分

  • 坂井市立春江中学校

    坂井市立春江中学校

    1400m/徒歩19分

  • セブンイレブン春江町江留下店

    セブンイレブン春江町江留下店

    210m/徒歩3分

  • ゲンキー江留下店

    ゲンキー江留下店

    90m/徒歩1分

  • もとお耳鼻咽喉科クリニック

    もとお耳鼻咽喉科クリニック

    80m/徒歩1分

  • 福井信用金庫春江中央支店

    福井信用金庫春江中央支店

    90m/徒歩1分

  • ハピラインふくい春江駅

    ハピラインふくい春江駅

    900m/徒歩13分

  • SHOPPING買い物施設
    • セブンイレブン春江町江留下店 …210m/徒歩3分
    • ローソン春江江留店 …200m/徒歩3分
    • ゲンキー江留下店 …90m/徒歩1分
    • ビッグベリーマーケット春江 …450m/徒歩6分
    • アルプラザアミ …900m/車3分
  • EDUCATION教育施設
    • 春江みどり保育園 …110m/徒歩1分
    • いと勢会 いと勢保育園 …650m/徒歩9分
    • 坂井市立春江幼保園 …550m/徒歩8分
    • 坂井市立春江小学校 …550m/徒歩8分
    • 坂井市立春江中学校 …1400m/徒歩19分
  • HOSPITAL病院
    • もとお耳鼻咽喉科クリニック …80m/徒歩1分
    • 友田医院 …650m/徒歩9分
    • はつせがわ歯科医院 …650m/徒歩9分
    • 鈴木眼科クリニック …800m/徒歩11分
    • 博俊会春江病院 …1000m/車4分
  • CONVENIENCE生活便利施設
    • エンゼルランドふくい …800m/徒歩12分
    • 坂井市立春江図書館 …1200m/車4分
    • 坂井市春江支所 …950m/徒歩13分
    • 福井信用金庫春江中央支店 …90m/徒歩1分
    • ハピラインふくい春江駅 …900m/徒歩13分

ABOUT

物件概要

住所 坂井市春江町江留下宇和江5番1
交通 ハピラインふくい春江駅から900m
販売価格 3,250万円(税込) 間取り 3LDK+パントリー・ランドリールーム・WIC
土地面積 193.24㎡(58.45坪) 建物面積 101.02㎡(30.55坪)
建ぺい率 60% 容積率 200%
接道状況 【北側】公道幅員5.2m、接面10.33m 土地権利 所有権
都市計画 非線引区域 地目 宅地
構造・工法 木造2階建て(軸組工法) 用途地域 準工業地域
電気 北陸電力 屋根 ガルバリウム鋼板
ガス オール電化の為なし 上水道 公営水道
下水道 本下水 取引態様 売主
完成時期 令和8年6月完成予定 入居時期 建物完成後1カ月
見学可能時期 令和8年6月予定 建築確認番号 第R07確認建築福井住セ00572号
小学校区 春江小学校(550m) 中学校区 春江中学校(1400m)
その他 本物件の内覧予約や住宅ローン・資金計画のご相談はもちろん、新築住宅購入に関するご質問や補助金制度についてもご相談を承っております。住まい探しを始めたばかりの方にも分かりやすくご案内いたしますので、どうぞ安心してお気軽にお問い合わせください。
情報更新日 2026年04月22日 情報更新予定日 2026年05月22日
住所 坂井市春江町江留下宇和江5番1
交通 ハピラインふくい春江駅から900m
販売価格 3,250万円(税込)
間取り 3LDK+パントリー・ランドリールーム・WIC
土地面積 193.24㎡(58.45坪)
建物面積 101.02㎡(30.55坪)
建ぺい率 60%
容積率 200%
接道状況 【北側】公道幅員5.2m、接面10.33m
土地権利 所有権
都市計画 非線引区域
地目 宅地
構造・工法 木造2階建て(軸組工法)
用途地域 準工業地域
電気 北陸電力
屋根 ガルバリウム鋼板
ガス オール電化の為なし
上水道 公営水道
下水道 本下水
取引態様 売主
完成時期 令和8年6月完成予定
入居時期 建物完成後1カ月
見学可能
時期
令和8年6月予定
建築
確認番号
第R07確認建築福井住セ00572号
小学校区 春江小学校(550m)
中学校区 春江中学校(1400m)
その他 本物件の内覧予約や住宅ローン・資金計画のご相談はもちろん、新築住宅購入に関するご質問や補助金制度についてもご相談を承っております。住まい探しを始めたばかりの方にも分かりやすくご案内いたしますので、どうぞ安心してお気軽にお問い合わせください。
情報
更新日
2026年04月22日
情報更新
予定日
2026年05月22日
この物件を見学予約する

お問い合わせフォーム

CONTACT

下記フォームをご入力いただき、
確認するボタンを押してください。

  • 入力

  • 確認

  • 完了

お問い合わせ内容必須
お名前必須
ふりがな必須
ご年齢必須
電話番号必須

※携帯またはご自宅どちらでもかまいません。

メールアドレス必須

※必ず半角英数字でご入力ください。

ご住所必須
来場人数必須

お子様がいらっしゃる
場合、人数と年齢を
教えてください任意
リビングスペースを
どこで知りましたか?必須
来場内容
(ご質問・ご相談等)任意
個人情報について必須

·自動返信メールの後、担当者からのご予約対応のご返信を以って受付完了とさせていただきます。また、弊社定休日や担当者がお休みをいただいている場合は翌営業日以降のご連絡となる場合がございます。
·メールアドレスを登録された方には、自動で確認メールを送信しております。メールアドレスの誤入力、携帯電話のドメイン指定受信の設定などにより確認メールを受信出来ない場合がございます。迷惑メールなどに入っている場合もございますので、再度受信設定をご確認ください。確認メールが届かない場合は、当社からの返信を受信出来ない可能性がございますので、お手数ですが、メール以外の連絡方法を追記の上、再度お問い合わせいただきますようお願い致します。

入力内容を確認する