MENU close

SEARCH

物件検索

坂井市丸岡町宇随 B棟

緑豊かな立地で緩やかに暮らす、快適なナチュラルスタイルの家。

建築中分譲物件 SUSTAINA
  • B棟/右 グレーの外壁にタイル調のアクセントが映えるナチュラルモダンスタイル。

    B棟/右 グレーの外壁にタイル調のアクセントが映えるナチュラルモダンスタイル。

  • B棟/右 グレーの外壁にタイル調のアクセントが映えるナチュラルモダンスタイル。

    B棟/右 グレーの外壁にタイル調のアクセントが映えるナチュラルモダンスタイル。

  • 【内観予想図】下がり天井に間接照明をあしらい、ナチュラルデザインが調和する落ち着いた空間に。

    【内観予想図】下がり天井に間接照明をあしらい、ナチュラルデザインが調和する落ち着いた空間に。

  • 【内観予想図】柔らかい光がリラックス効果を高め、居心地の良い空間を演出します。

    【内観予想図】柔らかい光がリラックス効果を高め、居心地の良い空間を演出します。

  • 【内観予想図】飽きの来ないナチュラルデザインの内装

    【内観予想図】飽きの来ないナチュラルデザインの内装

  • 【内観予想図】南側の掃き出し窓から自然光が入り込み明るい空間に。

    【内観予想図】南側の掃き出し窓から自然光が入り込み明るい空間に。

  • 【内観予想図】LDK・ランドリールーム・ファミリークロークを行き止まりなくぐるっと回れる回遊動線で、毎日の家事がスムーズに。

    【内観予想図】LDK・ランドリールーム・ファミリークロークを行き止まりなくぐるっと回れる回遊動線で、毎日の家事がスムーズに。

  • 工事中写真(2026.2撮影)

    工事中写真(2026.2撮影)

  • AB区画全体 工事中写真(2026.2撮影)

    AB区画全体 工事中写真(2026.2撮影)

  • 南側前面道路

    南側前面道路

  • 南側前面道路 新しいお家が次々と建っているエリアです♪

    南側前面道路 新しいお家が次々と建っているエリアです♪

  • みらいエコ住宅2026事業 補助金対象!

    みらいエコ住宅2026事業 補助金対象!

  • 断熱等性能等級5

    断熱等性能等級5

  • 耐震等級3相当

    耐震等級3相当

  • 充実の保証内容&アフターサービス

    充実の保証内容&アフターサービス

  • 緊急駆けつけサービス

    緊急駆けつけサービス

  • 【早期ご成約特典】 ReFa FINE BUBBLE U+ をプレゼント

    【早期ご成約特典】 ReFa FINE BUBBLE U+ をプレゼント

  • B棟/右 グレーの外壁にタイル調のアクセントが映えるナチュラルモダンスタイル。
  • B棟/右 グレーの外壁にタイル調のアクセントが映えるナチュラルモダンスタイル。
  • 【内観予想図】下がり天井に間接照明をあしらい、ナチュラルデザインが調和する落ち着いた空間に。
  • 【内観予想図】柔らかい光がリラックス効果を高め、居心地の良い空間を演出します。
  • 【内観予想図】飽きの来ないナチュラルデザインの内装
  • 【内観予想図】南側の掃き出し窓から自然光が入り込み明るい空間に。
  • 【内観予想図】LDK・ランドリールーム・ファミリークロークを行き止まりなくぐるっと回れる回遊動線で、毎日の家事がスムーズに。
  • 工事中写真(2026.2撮影)
  • AB区画全体 工事中写真(2026.2撮影)
  • 南側前面道路
  • 南側前面道路 新しいお家が次々と建っているエリアです♪
  • みらいエコ住宅2026事業 補助金対象!
  • 断熱等性能等級5
  • 耐震等級3相当
  • 充実の保証内容&アフターサービス
  • 緊急駆けつけサービス
  • 【早期ご成約特典】 ReFa FINE BUBBLE U+ をプレゼント

坂井市丸岡町宇随 B棟

緑豊かな立地で緩やかに暮らす、快適なナチュラルスタイルの家。

建築中分譲物件 SUSTAINA
住所 坂井市丸岡町宇随2字11番5
学区 磯部小学校(1400m)/丸岡南中学校(1600m)
アクセス 京福バス県立病院丸岡線 「羽崎」バス停から750m
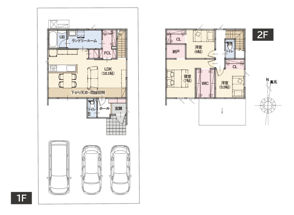
間取り 3LDK+ファミリークローク・ランドリールーム・納戸・WIC
駐車スペース 3台
販売価格 2,950万円
(月々支払い:6.6万円〜)

POINT POINTポイント

坂井市丸岡町宇随の新規造成地に誕生する、南向きの分譲住宅。
周辺には九頭竜川が流れ広大な田園風景が広がる、自然豊かで静かな住環境です。
落ち着いた住宅街が広がる一方、羽崎交差点まで約700mと国道8号線へのアクセスが便利で、通勤や通学にも◎。
保育・買い物・医療施設も近隣に充実しており、生活に便利な立地です。

外観は、グレーの外壁にタイル調のアクセントが映えるナチュラルモダンスタイル。
室内へ踏み込むと、下がり天井×間接照明がおしゃれな18.1帖のLDKがお出迎えをさせていただきます。
水回りを一箇所に集約した間取りで、家事動線がスムーズに。洗濯から片付けまでの動線も短く、毎日の負担が軽減されます。
ファミリークローク・納戸・ウォークインクローゼットなどを備えることで収納力にもこだわりました。

■住宅性能
 断熱性能:等級5(ZEH基準を満たす省エネ仕様)
 耐震性能:等級3相当(建築基準法の1.5倍の耐震性能)

■保証関連
 建物保証:初期20年保証+最長60年まで延長可能
 地盤保証:20年保証
 住宅設備保証:10年保証
 しろあり保証:10年保証

■補助金関連
 国の「みらいエコ住宅2026事業」により最大35万円の補助金利用可(ZEH水準住宅)

■キャンペーン
 エアコン付き
 ReFa FINE BUBBLE U+ をプレゼント

この物件のお支払い例

販売価格 2,950万円(税込)
月々支払 6.6万円~(税込)

※※頭金なし、諸費用別、借入期間40年、2年固定金利、金利0.40%の場合

PLAN

間取図

EQUIPMENT

設備・仕様

  • PanasonicリビングステーションV-style

    PanasonicリビングステーションV-style

    ・手前スペース広々!トリプルワイドIH
    ・タッチレス水栓
    ・食器洗い乾燥機(深型タイプ)
    ・お手入れ簡単!スキマレスシンク
    ・静かに閉まるソフトクロージング仕様の収納

  • Panasonic バスルームオフローラ

    Panasonic バスルームオフローラ

    ・美しいツヤでキレイ長持ち「スゴピカ浴槽」
    ・水垢が残りにくい新素材でできた「スゴピカ水栓」
    ・W水流シャワー
    ・フラットラインLED照明
    ・暖房換気乾燥機

  • Panasonic 洗面ドレッシングシーライン D530タイプ

    Panasonic 洗面ドレッシングシーライン D530タイプ

    ・マルチシングルレバーシャワー水栓
    ・フロートオープンタイプキャビネット
    ・使いやすくお手入れが楽なカウンター
    ・ヒーターレスでくもりにくいミラー
    ・ツインラインLED3面鏡

  • PanasonicアラウーノZ160シリーズ

    PanasonicアラウーノZ160シリーズ

    ・アラウーノ手洗い付
    ・自動洗浄機能
    ・トリプル汚れガードの便器・便座
    ・お掃除が楽なスキマレス設計
    ・汚れにくいステンレスノズル
    ・劇落ちスパイラル水流でキレイ

  • PanasonicトイレNewアラウーノV

    PanasonicトイレNewアラウーノV

    ・手洗い付き
    ・3Dツイスター水流で節水
    ・お手入れ簡単!スゴピカ素材

  • ピタットキー

    ピタットキー

    タグキーを近づけるだけで、サッと施開錠できるから、面倒なカギの操作を省いてスマートに出入りできます。

  • ウレタンの吹き付け断熱

    ウレタンの吹き付け断熱

    断熱性能の高さはもちろん、発泡することにより現場の形状にぴったりと密着し気密性が高く、自己接着力により断熱性能を維持します。

  • 高性能樹脂窓 APW330

    高性能樹脂窓 APW330

    国内最高基準の断熱性で省エネ効果を発揮/樹脂と複層ガラスによるハイレベルな断熱性/熱の出入りを抑え、夏も冬もいつも快適

  • 省エネ性能ラベル

    省エネ性能ラベル

    ・一次エネルギー消費量等級6
    ・断熱等性能等級5
    ZEH水準の省エネ住宅はエネルギーの使用量を削減でき、日々の光熱費を抑えることができます

ACCESS

立地・アクセス

AROUND

周辺環境

  • 城久会よつばこども園

    城久会よつばこども園

    400m/徒歩5分

  • 磯部小学校

    磯部小学校

    1400m/徒歩20分

  • 丸岡南中学校

    丸岡南中学校

    1600m/徒歩22分

  • ローソン丸岡羽崎店

    ローソン丸岡羽崎店

    750m/徒歩11分

  • ホームセンタームサシ丸岡店

    ホームセンタームサシ丸岡店

    750m/徒歩10分

  • ハニー食彩館 丸岡店

    ハニー食彩館 丸岡店

    900m/徒歩13分

  • 8番らーめん羽崎店

    8番らーめん羽崎店

    750m/徒歩11分

  • 医療法人社団茜会 藤田神経内科病院

    医療法人社団茜会 藤田神経内科病院

    230m/徒歩3分

  • SHOPPING買い物施設
    • ハニー食彩館 丸岡店 …900m/徒歩13分
    • ホームセンタームサシ丸岡店 …750m/徒歩10分
    • ローソン丸岡羽崎店 …750m/徒歩11分
    • ファミリーマート丸岡磯部島店 …1200m/徒歩17分
    • ヤスサキワイプラザグルメ館森田店 …2200m/車7分
  • EDUCATION教育施設
    • 城久会 よつばこども園 …400m/徒歩5分
    • 磯部小学校 …1400m/徒歩20分
    • 丸岡南中学校 …1600m/徒歩22分
    • 新九頭竜児童館 …500m/徒歩7分
  • HOSPITAL病院
    • 医療法人社団茜会 藤田神経内科病院 …230m/徒歩3分
    • 西田歯科医院 …550m/徒歩8分
    • くりもり大人こども歯科クリニック …2100m/車5分
    • 福井大学医学部付属病院 …3200m/車7分
  • CONVENIENCE生活便利施設
    • 8番らーめん羽崎店 …750m/徒歩11分
    • 新富(うどん店) …900m/徒歩13分
    • ラブリーパートナーLpa …3300m/車7分
    • ゲンキー丸岡高柳店 …2300m/車6分
    • 丸岡インターチェンジ …4500m/車10分

ABOUT

物件概要

住所 坂井市丸岡町宇随2字11番5
交通 京福バス県立病院丸岡線 「羽崎」バス停から750m
販売価格 2,950万円(税込) 間取り 3LDK+ファミリークローク・ランドリールーム・納戸・WIC
土地面積 167.93㎡(50.79坪) 建物面積 99.35㎡(30.05坪)
建ぺい率 60% 容積率 200%
接道状況 南側【幅員】6m、【間口】9.3m 土地権利 所有権
都市計画 非線引区域 地目 宅地
構造・工法 木造2階建て(軸組工法) 用途地域 指定なし
電気 北陸電力 屋根 ガルバリウム鋼板
ガス オール電化の為なし 上水道 公営水道
下水道 本下水 取引態様 売主
完成時期 令和8年4月完成予定 入居時期 建物完成後1カ月
見学可能時期 令和8年4月予定 建築確認番号 第R07確認建築福井住セ00525号
小学校区 磯部小学校(1400m) 中学校区 丸岡南中学校(1600m)
その他 本物件の問い合わせや住宅ローン・資金計画のご相談はもちろん、新築住宅購入に関するご質問や補助金制度についてもご相談を承っております。住まい探しを始めたばかりの方にも分かりやすくご案内いたしますので、どうぞ安心してお気軽にお問い合わせください。
情報更新日 2026年04月22日 情報更新予定日 2026年05月22日
住所 坂井市丸岡町宇随2字11番5
交通 京福バス県立病院丸岡線 「羽崎」バス停から750m
販売価格 2,950万円(税込)
間取り 3LDK+ファミリークローク・ランドリールーム・納戸・WIC
土地面積 167.93㎡(50.79坪)
建物面積 99.35㎡(30.05坪)
建ぺい率 60%
容積率 200%
接道状況 南側【幅員】6m、【間口】9.3m
土地権利 所有権
都市計画 非線引区域
地目 宅地
構造・工法 木造2階建て(軸組工法)
用途地域 指定なし
電気 北陸電力
屋根 ガルバリウム鋼板
ガス オール電化の為なし
上水道 公営水道
下水道 本下水
取引態様 売主
完成時期 令和8年4月完成予定
入居時期 建物完成後1カ月
見学可能
時期
令和8年4月予定
建築
確認番号
第R07確認建築福井住セ00525号
小学校区 磯部小学校(1400m)
中学校区 丸岡南中学校(1600m)
その他 本物件の問い合わせや住宅ローン・資金計画のご相談はもちろん、新築住宅購入に関するご質問や補助金制度についてもご相談を承っております。住まい探しを始めたばかりの方にも分かりやすくご案内いたしますので、どうぞ安心してお気軽にお問い合わせください。
情報
更新日
2026年04月22日
情報更新
予定日
2026年05月22日
この物件を見学予約する

お問い合わせフォーム

CONTACT

下記フォームをご入力いただき、
確認するボタンを押してください。

  • 入力

  • 確認

  • 完了

お問い合わせ内容必須
お名前必須
ふりがな必須
ご年齢必須
電話番号必須

※携帯またはご自宅どちらでもかまいません。

メールアドレス必須

※必ず半角英数字でご入力ください。

ご住所必須
来場人数必須

お子様がいらっしゃる
場合、人数と年齢を
教えてください任意
リビングスペースを
どこで知りましたか?必須
来場内容
(ご質問・ご相談等)任意
個人情報について必須

·自動返信メールの後、担当者からのご予約対応のご返信を以って受付完了とさせていただきます。また、弊社定休日や担当者がお休みをいただいている場合は翌営業日以降のご連絡となる場合がございます。
·メールアドレスを登録された方には、自動で確認メールを送信しております。メールアドレスの誤入力、携帯電話のドメイン指定受信の設定などにより確認メールを受信出来ない場合がございます。迷惑メールなどに入っている場合もございますので、再度受信設定をご確認ください。確認メールが届かない場合は、当社からの返信を受信出来ない可能性がございますので、お手数ですが、メール以外の連絡方法を追記の上、再度お問い合わせいただきますようお願い致します。

入力内容を確認する