MENU close

SEARCH

物件検索

NEW

小松市吉竹町分譲住宅B棟

見学予約受付中!

建築中分譲物件 SUSTAINA
  • ブラックカラーと明るいグレイッシュの吹付のコントラストにハイサッシがおしゃれに際立つクールモダンなデザイン住宅です♪

    ブラックカラーと明るいグレイッシュの吹付のコントラストにハイサッシがおしゃれに際立つクールモダンなデザイン住宅です♪

  • LDKは19.2帖の大空間で、天井高も2.5mのため圧迫感なく過ごせます。さらに吹抜があることで帖数以上の開放感を感じられます♪

    LDKは19.2帖の大空間で、天井高も2.5mのため圧迫感なく過ごせます。さらに吹抜があることで帖数以上の開放感を感じられます♪

  • ホワイトカラーに木目調の素材感が明るく落ち着いた空間を演出します♪

    ホワイトカラーに木目調の素材感が明るく落ち着いた空間を演出します♪

  • キッチンにはパントリーが確保されているので食品や日用品を安心してストックできます。

    キッチンにはパントリーが確保されているので食品や日用品を安心してストックできます。

  • タイル調の壁紙デザインとヴィンテージメタル柄のキッチン扉が空間をオシャレに演出します♪

    タイル調の壁紙デザインとヴィンテージメタル柄のキッチン扉が空間をオシャレに演出します♪

  • 玄関内に土間続きの収納を確保。ベビーカーや趣味道具などを仕舞えます♪

    玄関内に土間続きの収納を確保。ベビーカーや趣味道具などを仕舞えます♪

  • サンルーム兼脱衣室には可動棚を設け、「洗う・干す・仕舞う」がここで完結します♪

    サンルーム兼脱衣室には可動棚を設け、「洗う・干す・仕舞う」がここで完結します♪

  • 独立型の洗面化粧台は、ご家族同士でもストレスなく使える上に、お客様もご案内しやすいのが魅力です。

    独立型の洗面化粧台は、ご家族同士でもストレスなく使える上に、お客様もご案内しやすいのが魅力です。

  • 木目調の落ち着いた雰囲気の寝室には2帖のウォークインクローゼットを完備しています。

    木目調の落ち着いた雰囲気の寝室には2帖のウォークインクローゼットを完備しています。

  • 2帖のウォークインクローゼットには季節ものなどを仕舞えます♪

    2帖のウォークインクローゼットには季節ものなどを仕舞えます♪

  • 2階のカウンタースペースでは、趣味やワークスペースを共有できます。吹抜の窓も開放感があり、とても明るい空間になります。

    2階のカウンタースペースでは、趣味やワークスペースを共有できます。吹抜の窓も開放感があり、とても明るい空間になります。

  • 南に面したリビングには吹抜からも光を採りこめて、家全体が明るい住まいになります♪

    南に面したリビングには吹抜からも光を採りこめて、家全体が明るい住まいになります♪

  • 断熱性能:等級5(ZEH基準を満たす省エネ仕様)

    断熱性能:等級5(ZEH基準を満たす省エネ仕様)

  • 耐震性能:等級3相当(建築基準法の1.5倍の耐震性能)

    耐震性能:等級3相当(建築基準法の1.5倍の耐震性能)

  • ブラックカラーと明るいグレイッシュの吹付のコントラストにハイサッシがおしゃれに際立つクールモダンなデザイン住宅です♪
  • LDKは19.2帖の大空間で、天井高も2.5mのため圧迫感なく過ごせます。さらに吹抜があることで帖数以上の開放感を感じられます♪
  • ホワイトカラーに木目調の素材感が明るく落ち着いた空間を演出します♪
  • キッチンにはパントリーが確保されているので食品や日用品を安心してストックできます。
  • タイル調の壁紙デザインとヴィンテージメタル柄のキッチン扉が空間をオシャレに演出します♪
  • 玄関内に土間続きの収納を確保。ベビーカーや趣味道具などを仕舞えます♪
  • サンルーム兼脱衣室には可動棚を設け、「洗う・干す・仕舞う」がここで完結します♪
  • 独立型の洗面化粧台は、ご家族同士でもストレスなく使える上に、お客様もご案内しやすいのが魅力です。
  • 木目調の落ち着いた雰囲気の寝室には2帖のウォークインクローゼットを完備しています。
  • 2帖のウォークインクローゼットには季節ものなどを仕舞えます♪
  • 2階のカウンタースペースでは、趣味やワークスペースを共有できます。吹抜の窓も開放感があり、とても明るい空間になります。
  • 南に面したリビングには吹抜からも光を採りこめて、家全体が明るい住まいになります♪
  • 断熱性能:等級5(ZEH基準を満たす省エネ仕様)
  • 耐震性能:等級3相当(建築基準法の1.5倍の耐震性能)
NEW

小松市吉竹町分譲住宅B棟

見学予約受付中!

建築中分譲物件 SUSTAINA
住所 小松市吉竹町6丁目309番2
学区 苗代小学校/松陽中学校
アクセス -
間取り 3LDK+シューズクローク+ウォークインクローゼット
駐車スペース 3台
販売価格 3,090万円

POINT POINTポイント

小松市吉竹町に誕生した前面道路ゆったりの住まい。
イオンモール新小松やヤマダデンキ、ユニクロなどの商業施設が近隣に充実し、国道8号線にも小松バイパスにもアクセスしやすいエリアです。

外観はブラックカラーと明るいグレイッシュの吹付のコントラストにハイサッシがおしゃれに際立つクールモダンなデザインです。

19.2帖の広々としたLDKには南側の大きな吹抜から陽光がたっぷり差し込み、暮らしに心地よい解放感をもたらしてくれます。吹抜の上部には2階の多目的スペースが隣接し家族とのつながりを感じながらも、程よい距離感でリモートワークや読書スペースに活用できます。
洗面台をあえてLDKの独立した場所に設け、脱衣室と分けることで、家族みんなが気兼ねなく使えます。脱衣室兼サンルームを有効活用でき、洗濯物を干していてもゆとりある脱衣スペースを確保できます。

敷地内は車3台分の駐車スペースを確保しており、2台並列+来客用など柔軟な使い分けが可能です。
閑静な街並みと利便性のバランスに優れた立地と、暮らしに寄り添う設計で、家時間がいっそう豊かになる住まいです。

小松市吉竹町エリアで注文住宅を建てる場合には、3800万円以上は当然必要です。借入3800万円の場合は月々85,681円(3年固定、金利0.40%の場合)となります。当社の分譲住宅であれば3100万円程になり、借入3100万円の場合は月々69,898円で月々の支払いも抑える事ができます。また、分譲建売住宅の良さは立地条件が良く、将来的に資産として運用しやすいのが大きなメリットです。樹脂サッシ標準採用、ウレタン吹付断熱による高気密・高断熱住宅、ZEH基準の高い省エネ性能、耐震等級3相当の性能も兼ね備え、無理しない価格帯で快適な暮らしをご提供します。

■住宅性能
 断熱性能:等級5(ZEH基準を満たす省エネ仕様)
 耐震性能:等級3相当(建築基準法の1.5倍の耐震性能)

■標準仕様
 LDKエアコン付き、照明器具付き

PLAN

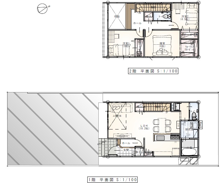
間取図

【3LDK+シューズクローク+ウォークインクローゼット】

■ 吹抜があることで明るく開放的なLDKになり、帖数以上の広がりを感じる【吹抜設計】
■ 洗面台をあえてLDKの独立した空間に設置。家族みんながストレスフリーで使用できる【独立型洗面化粧台】
■ 脱衣室兼サンルームは干す・仕舞うが完結する収納充実型【家事ラク動線】
■ 樹脂フレームとLow-E複層ガラスで国内最高レベルの断熱性能を実現した【高性能樹脂サッシAPW330】
■ ウィルス、菌、汚れ、匂いを除去するエアーウォッシュ機能付きの【エアーウォッシュフローリング】
■ EXハイパーで地震や台風の力を壁全体で受け止め優れた耐震性を発揮【耐震等級3相当】
■ 玄関ドアのノブに触れるだけで簡単開閉が可能な【ポケットキー】

EQUIPMENT

設備・仕様

  • PanasonicリビングステーションV スタイル

    PanasonicリビングステーションV スタイル

    ・3つ横並びで手前スペースもひろびろ使える【トリプルワイドIH(グリルなし)】
    ・ストレスフリーな操作性で節水効果も抜群【浄水器内蔵タッチレス水栓】
    ・ストリーム除菌洗浄で、洗うと同時に除菌もできる【食器洗い乾燥機(深型)】
    ・引き出しを閉める時に静かでスムーズ!調理効率も向上【ソフトクロージング機構】
    ・シンクの排水部分は継ぎ目がない一体成型でお掃除ラクラク【スキマレスシンク】

  • Panasonicオフローラ

    Panasonicオフローラ

    ・暖房に、湿気カビ対策に、一年中大活躍【浴室暖房乾燥機】
    ・断熱材で浴槽を包み高い保温効果を発揮【保温浴槽】
    ・水や汚れをはじきスゴく汚れにくい【スゴピカ浴槽】
    ・水アカが付きにくくお掃除がしやすい【スゴピカ水栓】
    ・空間全体をすっきり美しく照らす【フラットラインLED】

  • Panasonicシーライン

    Panasonicシーライン

    ・ヒーターを使わないから電気代ゼロ【くもりシャット!】
    ・どの高さでもしっかり照らす【ツインラインLED】
    ・魅せる収納でスタイリッシュに【フロートオープンタイプ】

  • Panasonicアラウーノ Z160 シリーズ 1F

    Panasonicアラウーノ Z160 シリーズ 1F

    ・センサーが検知して自動で便器を洗浄【自動洗浄機能】
    ・流すたび泡と水流でしっかりお掃除【激落ちバブル洗浄機能】
    ・汚れが付きにくく落ちやすい【スゴピカ素材】
    ・使いやすくトイレ内を清潔に保てる【独立手洗器】

  • PanasonicアラウーノV 2F

    PanasonicアラウーノV 2F

    ・洗浄力と節水の両立を実現【3D ツイスター水流】
    ・汚れが付きにくく落ちやすい【スゴピカ素材】
    ・手がさっと届く傾斜したボールでスムーズに手洗い【手洗器付き】

  • 耐震等級3相当

    耐震等級3相当

    【EXハイパー】
    地震や台風の力が端部集中するのを壁全体で力を受け止め一部にかかる負担が軽減されます。さらに、せっこうできている無機質系面材のEXハイパーは火に強く、燃えない建材です。

  • 高性能樹脂サッシAPW330

    高性能樹脂サッシAPW330

    樹脂フレームとLow-E複層ガラスで国内最高レベルの断熱性を実現しています。熱の出入りを抑え、快適な室内環境を保てます。

  • ポケットキー

    ポケットキー

    ドアノブに触れるだけで簡単開閉が可能です。毎日の事なので非常に便利です♪

  • ウレタンの吹付け断熱

    ウレタンの吹付け断熱

    断熱性能の高さはもちろん、発泡することにより現場の形状にぴったりと密着し気密性が高く、自己接着力により断熱性能を維持します。

  • 省エネ性能ラベル

    省エネ性能ラベル

    ZEH Oriented仕様
    ・断熱等性能等級5
    ZEH水準の省エネ住宅はエネルギーの使用量を削減でき、日々の光熱費を抑えることができます。

ACCESS

立地・アクセス

AROUND

周辺環境

  • よしたけこども園

    よしたけこども園

    850m(徒歩11分)

  • 小松市立苗代小学校

    小松市立苗代小学校

    1100m(徒歩14分)

  • 小松市立松陽中学校

    小松市立松陽中学校

    2600m(徒歩33分)

  • ウエルシア小松吉竹店

    ウエルシア小松吉竹店

    550m(徒歩7分)

  • イオンモール新小松

    イオンモール新小松

    1100m(徒歩14分)

  • マルエー若杉店

    マルエー若杉店

    1100m(14分)

  • ファミリーマート小松千野店

    ファミリーマート小松千野店

    1200m(徒歩15分)

  • しさきの公園

    しさきの公園

    900m(徒歩12分)

  • HOSPITAL病院
    • 小松ソフィア病院 …1400m徒歩18分
  • CONVENIENCE生活便利施設
    • 小松コミュニティバス 北吉竹バス停 …270m徒歩4分

ABOUT

物件概要

住所 小松市吉竹町6丁目309番2
交通 -
販売価格 3,090万円(税込) 間取り 3LDK+シューズクローク+ウォークインクローゼット
土地面積 157.39㎡(47.61坪) 建物面積 100.98㎡(30.54坪)
建ぺい率 60% 容積率 200%
接道状況 前面道路:(南側)6.0m 間口:7.42m 土地権利 所有権
都市計画 市街化区域 地目 宅地
構造・工法 木造在来工法2階建 用途地域 第1種住居地域
電気 北陸電力(他の小売電力事業者の選択可能) 屋根 ガルバリウム鋼板
ガス オール電化の為なし 上水道 市営水道
下水道 浄化槽 取引態様 売主
完成時期 令和8年1月 入居時期 令和8年2月
見学可能時期 令和8年2月 建築確認番号 第IKJC25-7067号
小学校区 苗代小学校 中学校区 松陽中学校
その他 ※施設負担金660,000円(税込)別途必要です。
情報更新日 2026年04月20日 情報更新予定日 2026年05月20日
住所 小松市吉竹町6丁目309番2
交通 -
販売価格 3,090万円(税込)
間取り 3LDK+シューズクローク+ウォークインクローゼット
土地面積 157.39㎡(47.61坪)
建物面積 100.98㎡(30.54坪)
建ぺい率 60%
容積率 200%
接道状況 前面道路:(南側)6.0m 間口:7.42m
土地権利 所有権
都市計画 市街化区域
地目 宅地
構造・工法 木造在来工法2階建
用途地域 第1種住居地域
電気 北陸電力(他の小売電力事業者の選択可能)
屋根 ガルバリウム鋼板
ガス オール電化の為なし
上水道 市営水道
下水道 浄化槽
取引態様 売主
完成時期 令和8年1月
入居時期 令和8年2月
見学可能
時期
令和8年2月
建築
確認番号
第IKJC25-7067号
小学校区 苗代小学校
中学校区 松陽中学校
その他 ※施設負担金660,000円(税込)別途必要です。
情報
更新日
2026年04月20日
情報更新
予定日
2026年05月20日

同じエリアの他物件もCHECK! 同じエリアの他物件も
CHECK!

この物件を見学予約する

お問い合わせフォーム

CONTACT

下記フォームをご入力いただき、
確認するボタンを押してください。

  • 入力

  • 確認

  • 完了

お問い合わせ内容必須
お名前必須
ふりがな必須
ご年齢必須
電話番号必須

※携帯またはご自宅どちらでもかまいません。

メールアドレス必須

※必ず半角英数字でご入力ください。

ご住所必須
来場人数必須

お子様がいらっしゃる
場合、人数と年齢を
教えてください任意
リビングスペースを
どこで知りましたか?必須
来場内容
(ご質問・ご相談等)任意
個人情報について必須

·自動返信メールの後、担当者からのご予約対応のご返信を以って受付完了とさせていただきます。また、弊社定休日や担当者がお休みをいただいている場合は翌営業日以降のご連絡となる場合がございます。
·メールアドレスを登録された方には、自動で確認メールを送信しております。メールアドレスの誤入力、携帯電話のドメイン指定受信の設定などにより確認メールを受信出来ない場合がございます。迷惑メールなどに入っている場合もございますので、再度受信設定をご確認ください。確認メールが届かない場合は、当社からの返信を受信出来ない可能性がございますので、お手数ですが、メール以外の連絡方法を追記の上、再度お問い合わせいただきますようお願い致します。

入力内容を確認する